

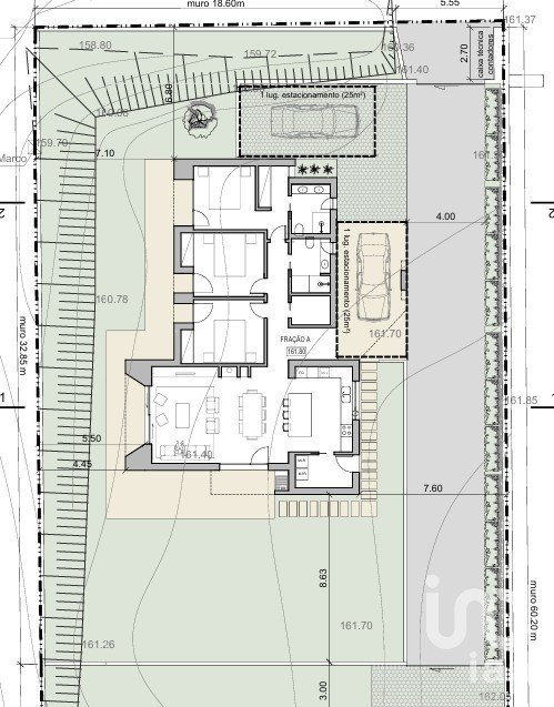
Modern design 3 bedroom house in Bairradas, Rio Maior municipality. Home with a perfect balance between elegance and functionality in an incredible modern style with high quality finishes that offer comfort, sophistication and convenience in every detail.The house offers the possibility of choosing materials to your liking for completion. (approx. 12 months / approved project / There is one already built for you to visit). Single storey house consisting of living room, kitchen, 1 pantry, 1 laundry room, 3 bedrooms, 2 bathrooms, hall and circulation area, totaling 122.00 m2 of useful area and 150.30 m2 of total area with shed for parking with 22.40 m2 of covered area, 12.80 m2 regarding the area of covered porches, the plot where it is implemented has 624 m2.The construction system will consist of thermal brick masonry with thermal insulation from the outside - ETICS system. The structure shown in the photos has foundations with the processes usually used in conventional construction and, as in any other construction, the elements in contact with the outside (or non-useful spaces) are properly thermally insulated and waterproofed. The floor slab, known as the sanitary attic, will consist of a ceramic floor (1 cm thick), a filling layer (10 cm thick), extruded polystyrene (XPS 6 cm thick), a lightened slab (22 cm thick) and a storage space. air approximately 40 cm high. The floors are built in accordance with what is indicated in the stability study and therefore the floors in bathrooms, toilets, pantries, kitchens and other places where infiltration is to be feared, will be laid on rot-proof structures made of waterproof materials, presenting a flat surface, smooth and easily washable. The ETICS construction system is proposed – external thermal insulation system. The external walls are composed of external finishing (2 cm thick), extruded polystyrene (XPS 6 cm), thermal block (25 cm thick), internal coating (2 cm thick). The internal walls are made of simple brick fabric with a painted stucco finish (or plasterboard), the bathrooms and kitchen will be covered with ceramic material. The construction method is strictly what is indicated in the thermal project execution details. Location: Village easily accessible with a motorway entrance 5 minutes away, so the beaches are a short drive away (25 minutes) and you can explore the stunning beaches of Foz do Arelho, Peniche, São Martinho do Porto and Nazaré, you will also have Caldas da Rainha 15 minutes away and Santarém 25 minutes away.Lisbon takes approximately 45 to 50 minutes, making it ideal for work or leisure. The nearest city is Rio Maior where it has excellent urban and sports infrastructure for its population. It is called the City of Sports, because it has invested heavily in sports facilities, having a well-equipped sports park, which includes the modern Training Center and the Olympic Swimming Pool. It also has a Sports University (ESDRM), there is a health center in Rio Maior and several super markets and traditional shops. Come and be happy in Bairradas and create great life projects belonging to this village where the genuineness of its inhabitants is a recognized reality. We help our customers throughout the process, before, during and after the purchase. Financing, investment, and much more. We speak English, French, Spanish, Dutch and Portuguese. For any additional information or scheduling a visit/meeting, I am at your disposal.
Ref: 128557
Similar properties




Nearby towns
Others property types in Landal