Exclusive


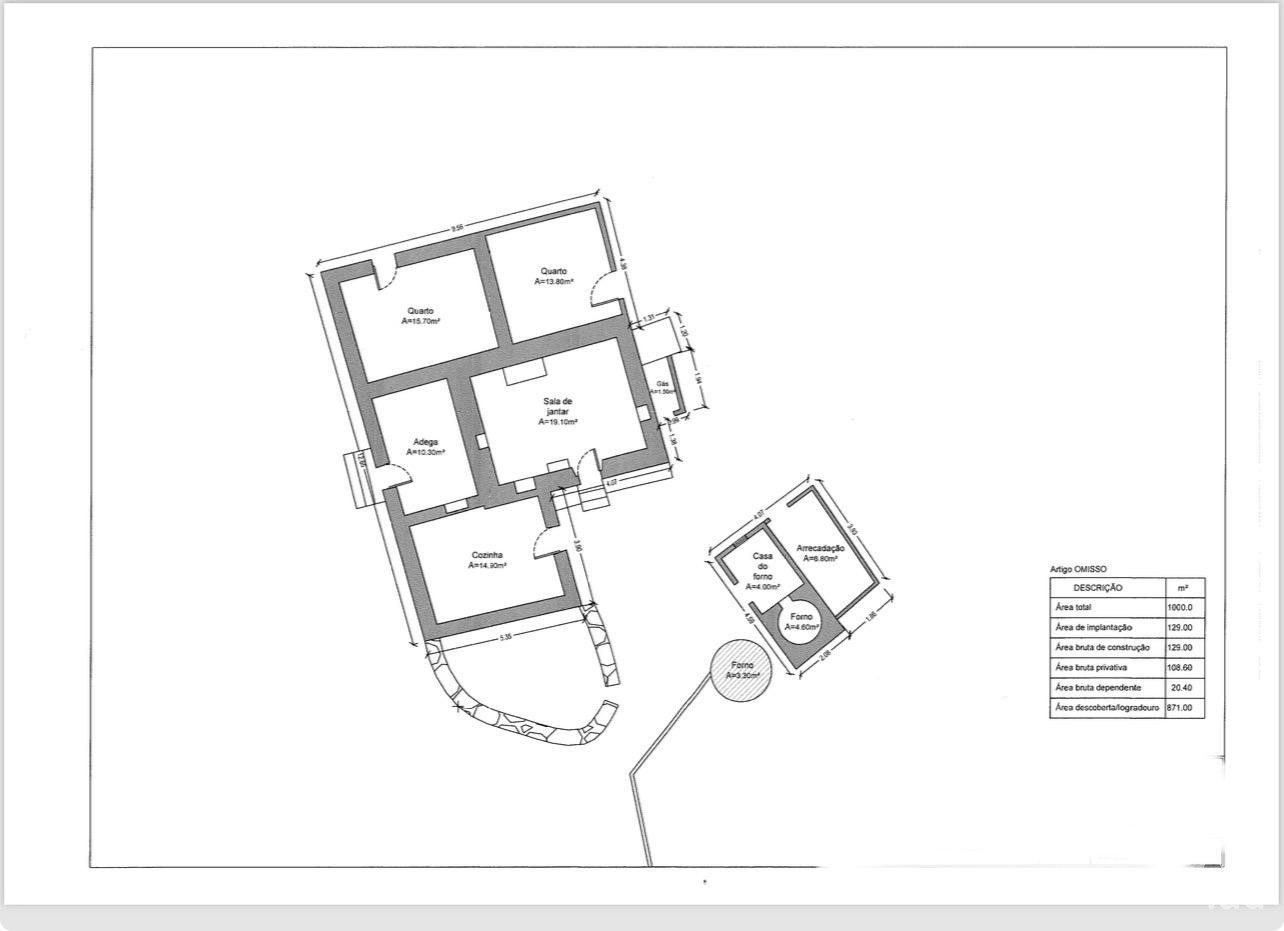
IDEAL FOR FARM PROJECT TO PROFIT 1000 URBAN METERS!!!!!!!! Want to live in peace, this house for renovation located 25 minutes from the center of Tavira, House to recover (ruin) of 129 m2 with annexes located on an urban building plot of 1000 m2. ideal for a beautiful project to monetize or live in an exceptionally quiet area with views of the mountains. This urban land borders on rustic land with the possibility of acquiring 6335 m2 to make a huge property. There is no water or electricity but the possibility of a well and fodder as well as electricity nearby. Ideal for a beautiful guesthouse installation. come find out
Ref: 117148
Similar properties


€1,100,000


€1,200,000

