

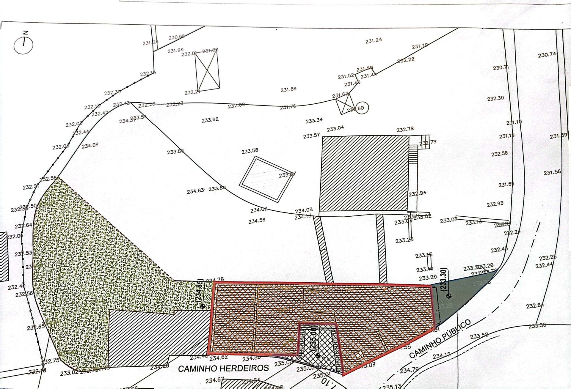
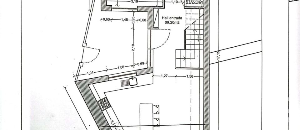
House to rebuild in the parish of Grade, Arcos de Valdevez – Potential to create the home of your dreams! Price: €35,000.00 Location: Parish of Grade, Arcos de Valdevez, Alto Minho, Portugal We present this old house to rebuild in the parish of Grade, in Arcos de Valdevez, an excellent opportunity for those who wish to invest in a reconstruction project and create a personalized home, with the beauty and charm of the traditional landscape. Property Features: - Plot size: 282 m2 - House to rebuild: Existing structure with great renovation potential - Outdoor space: Large area, ideal for a garden, patio or other leisure options - Location: Located in a quiet and rural area, but only 5 minutes from Arcos de Valdevez, with easy access to main roads Property Benefits: - Appreciation potential: By renovating this house, you will have a unique property, with typical features of the area, and the possibility of making it a real refuge, adapted to your needs - Generous outdoor space, ideal for creating a garden, terrace or even installing a swimming pool - Quiet location: Perfect for those who want to live in a quiet and rural environment, but close to the village of Arcos de Valdevez, where you will find all the necessary services and infrastructure - Possibility of customization: Rebuild the house according to your tastes and needs, creating a space entirely adapted to you Why invest in this property? This is the ideal property for those who want to turn a project into reality. With an excellent location and great potential for appreciation, you can rebuild a house with history and give it all the modern features you are looking for. Take the opportunity to create your dream home in a peaceful location, surrounded by the natural beauty of the area. Schedule your visit! Don't miss the opportunity to see this house with great potential for reconstruction. Please contact us for more information or to schedule a visit. Contacts: Phone: +351 968080382 Email: roberto.vidal-passos@iadportugal.pt
Ref: 138773
Similar properties
