Pavilion T0 in Mira of 924 m²
About this house/villa of 0 bedrooms at Mira, Mira
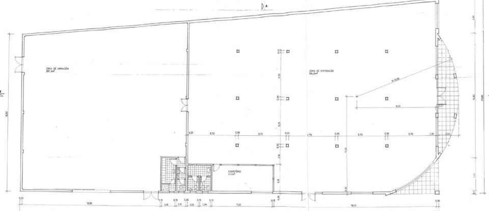
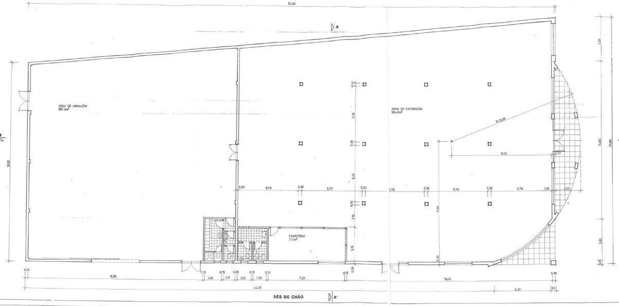
Commercial and Storage Pavilion – Mira (Coimbra)
This unique property, with 942 m² of covered area and set on a 2,004 m² plot, presents an exceptional opportunity for both investors and entrepreneurs looking for a functional, versatile and strategically located space.
Main Features:
Exhibition Area/Showroom: 584 m² open space with excellent ceiling height, plus reception, air-conditioned office and toilets (male and female).
Warehouse Area: 358 m² with industrial flooring, side gate and access gate for heavy vehicles, as well as direct pedestrian access to the showroom and capacity for forklifts and pallet trucks.
Rear Patio: 1,200 m², with 3-metre wide side access, facilitating logistics operations and heavy vehicle parking.
Energy Rating: B.
Value for Investors
Above-average profitability, with a versatile configuration and consistent demand from tenants in the logistics, commerce and storage segments.
Flexible layout, adaptable to different types of businesses and occupancy requirements.
High ceilings and good structural conditions, ensuring longevity and competitiveness.
Value for Direct Use
Immediate operational readiness, with a showroom with ceramic flooring in excellent condition and a fully functional warehouse.
Independent administrative areas (reception and office).
Easy access for large loads and unloading.
Strategic Location
Located in Mira, next to the N109 and N235 roads, this warehouse benefits from excellent road access and proximity to important urban and logistics centres:
Aveiro – 24 km
Coimbra – 35 km
Figueira da Foz – 34 km
Viseu – 74 km
Porto – 80 km
Lisbon – 194 km
Porto Airport (OPO) – 90 km
Lisbon Airport (LIS) – 187 km
Why this warehouse?
Whether you want to maximise your return through long-term leasing or need a logistics hub that is ready to operate, few solutions combine a strategic location, generous size and solid construction features like this property in Mira.
Equipments
Outdoor
Other
Energy efficiency
Energy consumption :
This house is located in Mira.



