Apartment T4 in Olhão of 149 m²
Features
About this apartment of 4 bedrooms at Olhão, Olhão
Apresentamos este magnífico apartamento T4 para venda em Olhão, uma excelente oportunidade para quem procura espaço, conforto e qualidade de vida numa das zonas mais tranquilas e valorizadas do Algarve. Localizado num prédio recente, com construção de 2008, o imóvel encontra-se no 3.º andar servido por elevador, oferecendo todas as comodidades para o dia a dia.
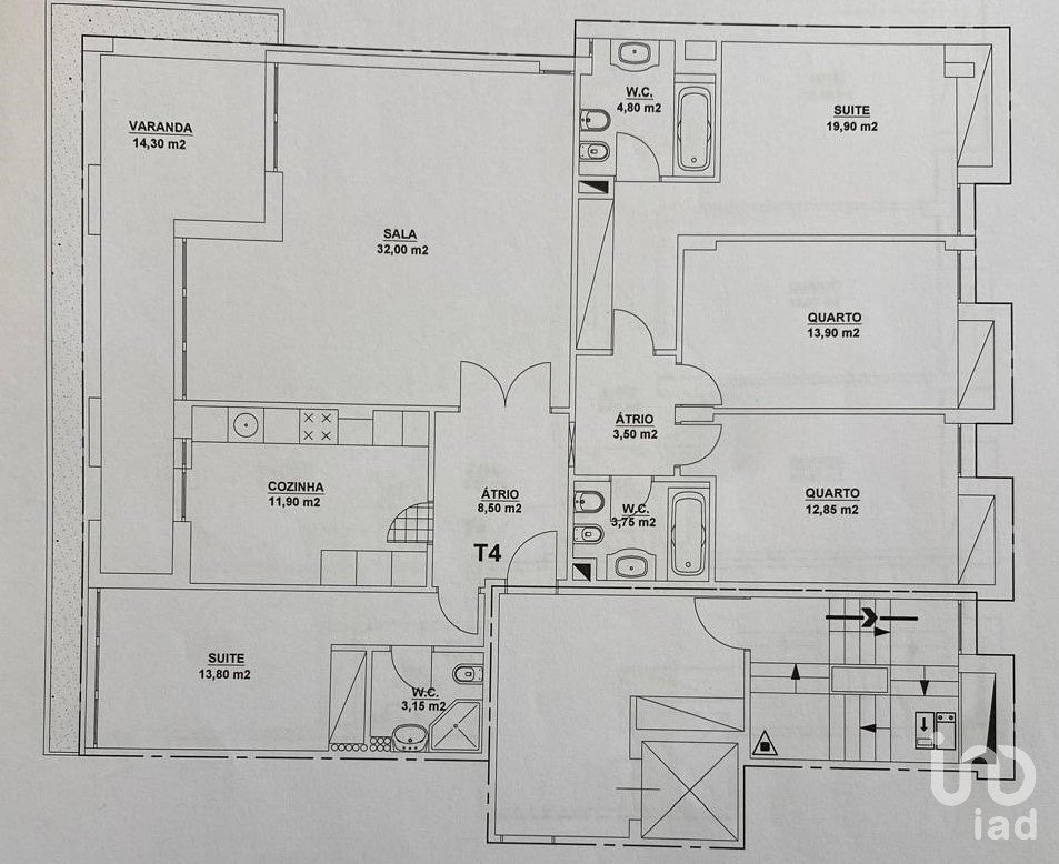
O apartamento é composto por quatro quartos de dimensões generosas, dois deles em suíte, todos com roupeiros embutidos, garantindo assim excelente arrumação. Dispõe de três casas de banho funcionais e modernas, bem distribuídas, o que torna a casa perfeita tanto para famílias maiores como para quem gosta de receber visitas.
A sala de estar, com uns impressionantes 32 m², destaca-se pela sua amplitude e luminosidade natural, proporcionando um ambiente acolhedor e versátil para momentos de convívio em família. Daqui, tem acesso direto a um terraço fechado de 15 m², um espaço muito agradável que pode ser utilizado como zona de lazer, sala de refeições ou simplesmente como refúgio para apreciar a tranquilidade envolvente.
A cozinha encontra-se totalmente equipada e conta igualmente com saída para o terraço, o que facilita a ligação entre os espaços e contribui para uma maior praticidade no dia a dia. O apartamento apresenta ainda acabamentos de qualidade, ar condicionado em várias divisões, vidros duplos e encontra-se muito bem estimado, pronto a habitar sem necessidade de grandes intervenções.
O imóvel inclui ainda um lugar de garagem na cave, oferecendo maior comodidade e segurança. O edifício está inserido numa zona calma e segura, com espaços verdes nas proximidades, ideal para famílias que valorizam bem-estar e tranquilidade.
Do terraço, pode desfrutar de uma vista desafogada sobre o campo e a Ria Formosa, um cenário único que combina natureza e mar e que transforma este apartamento numa verdadeira oportunidade para viver com qualidade.
Se procura um apartamento espaçoso, bem localizado, com excelentes áreas e uma vista inspiradora, este T4 em Olhão é a escolha certa para si.
Equipments
Outdoor
Other
Energy efficiency
Energy consumption :
This apartment is located at Olhão.





