Terreno em Vau de 1 014 m²
Sobre este terreno em Vau, Vau
Terreno urbano 1.014 m2 com projeto para construção de moradia a 1 hora de Lisboa
Localizado no Bom Sucesso Resort, perto da vila medieval de Óbidos, este resort é uma referência a nível nacional e internacional. Com um conceito de excelência, utiliza arquitetos de renome e arquiteturas contemporâneas integrados na natureza com uma envolvência de vegetação única, prolongando uma zona residencial calma e tranquila.
Reconhecido com um Resort 5 Estrelas com uma oferta de qualidade superior aos residentes numa ótica de residência permanente pu para residência secundária /ferias ou investimento/rendimento.
Rodeado de outros Resorts e de campos de golfe como :
- West Cliffs Ocen and Golf Resort
- Praia D`El Rey Marriott Golf & Beach Resort
- Royal Óbidos Spa & Golf Resort
E
- a 1 hora de Lisboa e do Aeroporto
- a 15 minutos para acesso autoestrada A8 (Lisboa / Porto)
- a 20 minutos para a cidade das Caldas da Rainha.
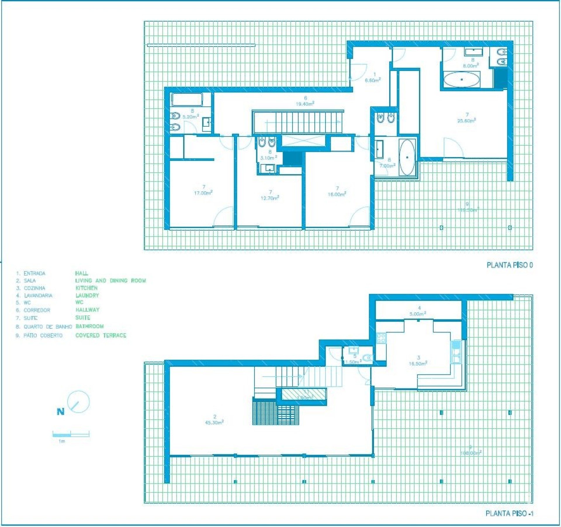
Com 1.014 m2 possui todas as infraestruturas no local (esgotos, eletricidade e água), existindo projeto do Arquiteto Rui Passos para ser implementada uma moradia com 220 m2 de área bruta de construção.
O Projeto do Arquiteto Rui Passos de uma moradia integrada na natureza, rodeada de vegetação, possui:
- Quarto / suite 17 m2 com casa de banho privada
- Quarto / suite 16 m2 com casa de banho privada
- Quarto / suite 13 m2 com casa de banho privada
- Quarto / Master suite 25,60 m2 com casa de banho privada
- Cozinha 16,50 m2
- Sala de estar / jantar com 45 m2
- Casa de banho de visitas com 5 m2
- Acesso direto a um terraço/Páteo coberto com 108 m2 (projeto nas fotos).
Este lote de terreno está integrado num Resort de qualidade e beleza inquestionáveis, num conceito de excelência, fundindo a arquitetura moderna com a Natureza, rodeada de belos campos, bem como um campo de Golfe PGA 18 buracos que pertence ao Campeonato de Golfe mundial desenhado por Donald Steel.
Dispõe de Receção, Club House, Hotel 5 Estrelas, 4 courts de Ténis, 2 Padel Courts, um grande Parque Infantil, 24 horas de segurança, etc.
Sabia que o Castelo de Óbidos está completamente restaurado, sendo este um dos mais belos castelos em atividade e hoje um verdadeiro símbolo histórico de Portugal.
O Castelo de Óbidos está localizado no distrito de Leiria, numa vila que detém o mesmo nome, a vila de Óbidos.
Venha verificar a tranquilidade e a calma existente nesta região, que lhe permite viver no campo e ao mesmo tempo estar perto da cidade de Lisboa e do seu Aeroporto
Não hesite e venha visitar!
José Cancela
IAD Portugal
Equipamentos
Exterior
Outros
Este terreno está localizada em Vau.








