Terreno urbano em Lagos (São Sebastião e Santa Maria) de 1 613 m²
Sobre este terreno em Lagos (São Sebastião e Santa Maria), Lagos (São Sebastião e Santa Maria)
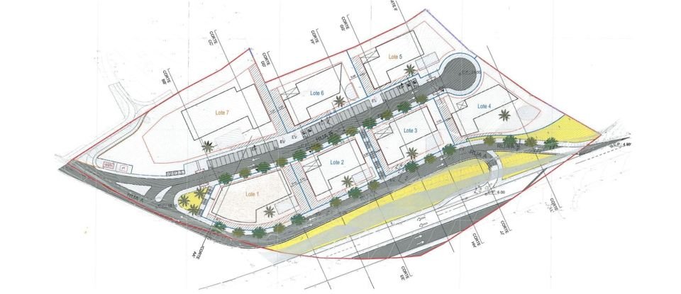
Oportunidade Única para Investir em Lagos, Algarve - Terreno Parcelado em Sete Lotes!
Descubra o potencial deste terreno estrategicamente parcelado em sete lotes, disponível para venda em Lagos, Algarve. Cada lote oferece uma incrível oportunidade de construção entre nove a quinze blocos, projetados para apartamentos T2, T3 e inclusivamente lugares de estacionamento.
Características do Investimento:
Lotes Flexíveis para Construção
Blocos para Apartamentos T2 e T3
Espaço Designado para Estacionamento
Detalhes do Terreno:
Consulte-nos para obter informações detalhadas sobre cada lote, incluindo permissões de construção, áreas específicas e todas as possibilidades que este investimento oferece.
Localização Estratégica:
O terreno encontra-se na deslumbrante Fonte Coberta em Lagos, uma localização que oferece conveniência e beleza:
Próximo a Todos os Serviços e Comodidades
Facilidade de Acesso às Belas Praias de Lagos.
Não Perca Esta Oportunidade de Investimento!
Entre em contacto connosco para obter mais detalhes e começar a transformar este terreno em uma realidade de sucesso.
Agende uma visita agora e leve o seu projeto para o próximo nível!
Porquê escolher um consultor imobiliário iad?
Escolha um consultor iad e beneficie do apoio da maior rede de consultores imobiliários independentes em Portugal.
Criada em França em 2008, a iad nasce de um modelo inovador que vem romper com o conceito tradicional de agência imobiliária, promovendo uma relação de proximidade entre o consultor e o cliente. O sucesso do grupo iad reflete-se em milhares de consultores, imóveis online e negócios concretizados.
Equipamentos
Exterior
Este terreno está localizada em Lagos (São Sebastião e Santa Maria).







