Terreno urbano em Ferreira do Zêzere de 1 560 m²
Sobre este terreno em Ferreira do Zêzere, Ferreira do Zêzere
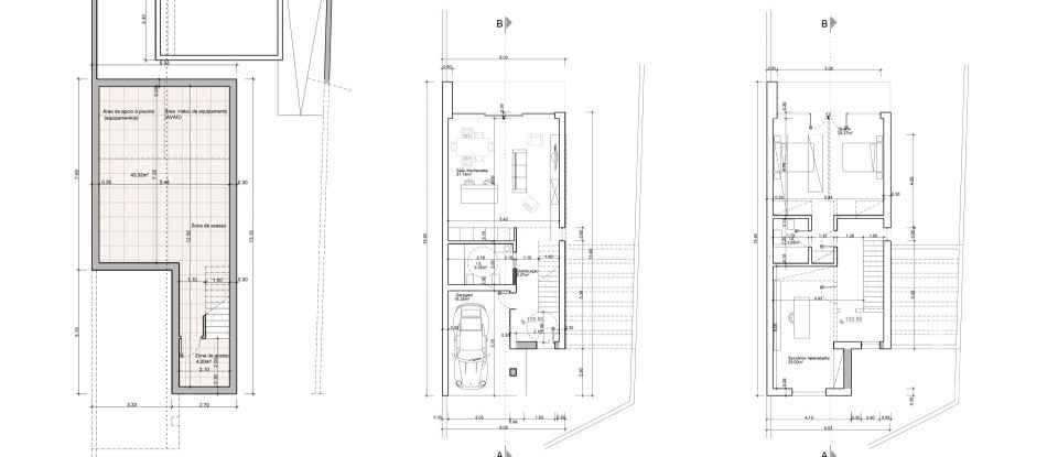
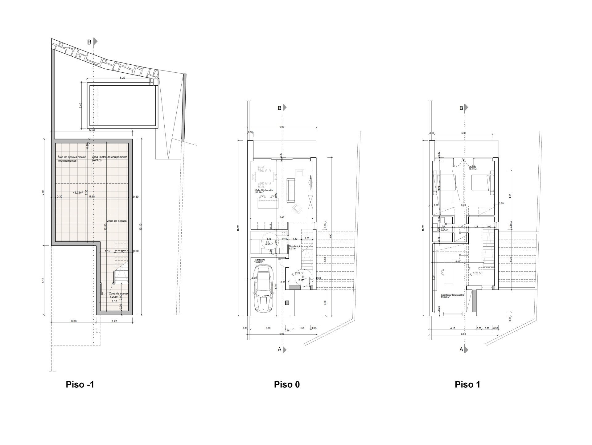
Propriedade paradisíaca com 1560 m2 com ACESSO DIRETO à água e com vista magnífica sobre a Albufeira de Castelo de Bode. A Propriedade já possui tem a licença de construção para Villa com 158 m2 de área de construção mais cerca de 120 m2 de área de cave. A Villa fica a 50 metros da linha de água e permite a colocação de uma plataforma flutuante na água, uma vez que ter acesso direto à Albufeira de Castelo de Bode. As propriedades que confinam com estas propriedade não têm casas nem é possível a construção de casas ou outras estruturas porque atualmente já não é permitida a construção a 50 metros da linha de água - os próximos projetos de construção que sejam submetidos a aprovação só poderão ser aprovados se as casas se encontrarem a 500 metros da linha de água - Assim, esta é uma excelente oportunidade de ter uma casa tão perto do acesso direto à Albufeira de Castelo de Bode. Encontramos nesta excelente propriedade vários sobreiros, um poço de água e um acesso direto à Albufeira de Castelo de Bode muito fácil (o terreno é praticamente plano, inclusivamente no acesso à água). Localiza-se a cerca de a 17 minutos do centro da cidade de Tomar, a 10 minutos da Vila de Ferreira do Zêzere e a cerca de 1H20 do aeroporto e Lisboa.
Equipamentos
Exterior
Este terreno está localizada em Ferreira do Zêzere.












