Favorito Prestige
Terreno em Faro (Sé e São Pedro) de 45 400 m²
18 500 000 €
-/m²
45 400 m² de terreno
Sobre este terreno em Faro (Sé e São Pedro), Faro (Sé e São Pedro)
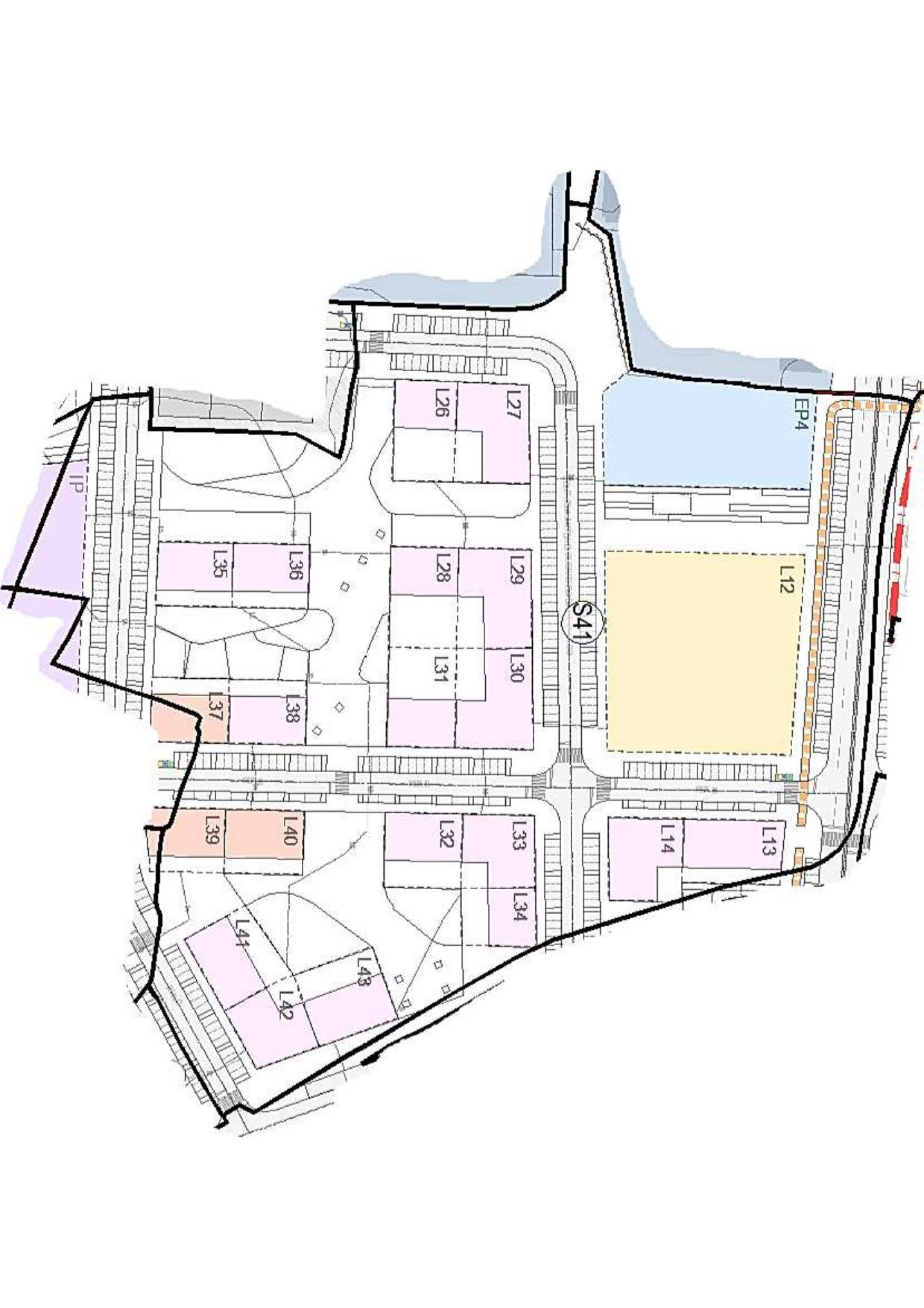
Terreno com 45.400m2 com viabilidade de construção de vários prédios em altura com mais de 70.000m2 de construção no total entre 6 a 8 pisos, e 1 unidade hoteleira de turismo com mais de 10.000m2 de construção e 8 pisos.
O terreno tem projeto aprovado para construção de operação de loteamento, nomeadamente de 18 lotes.
Encontra-se integrado em solo urbano, em que o uso dominante na intervenção do PP é a habitação.
Marque já a sua visita.
Referência: 85506
Equipamentos
Exterior
Área do terreno : 45 400 m²
Outros
Ano de construção: 2022
Onde está localizado o imóvel?
Este terreno está localizada em Faro (Sé e São Pedro).
Anúncio apresentado por
Propriedades semelhantes
Popover 1
Popover 2
Popover 3
Popover 4









