Terreno em Esgueira de 550 m²
Sobre este terreno em Esgueira, Esgueira
Terreno Urbano com Projeto Aprovado e Licença de Construção – Agras do Norte, Aveiro
Apresentamos-lhe uma excelente oportunidade de investimento numa das zonas residenciais mais procuradas de Aveiro!
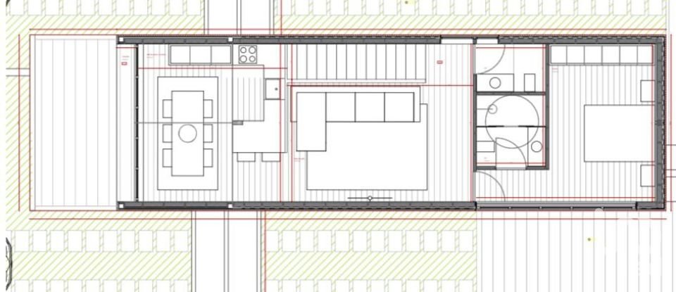
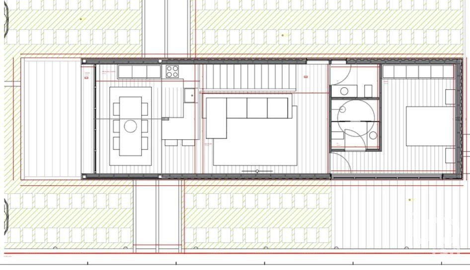
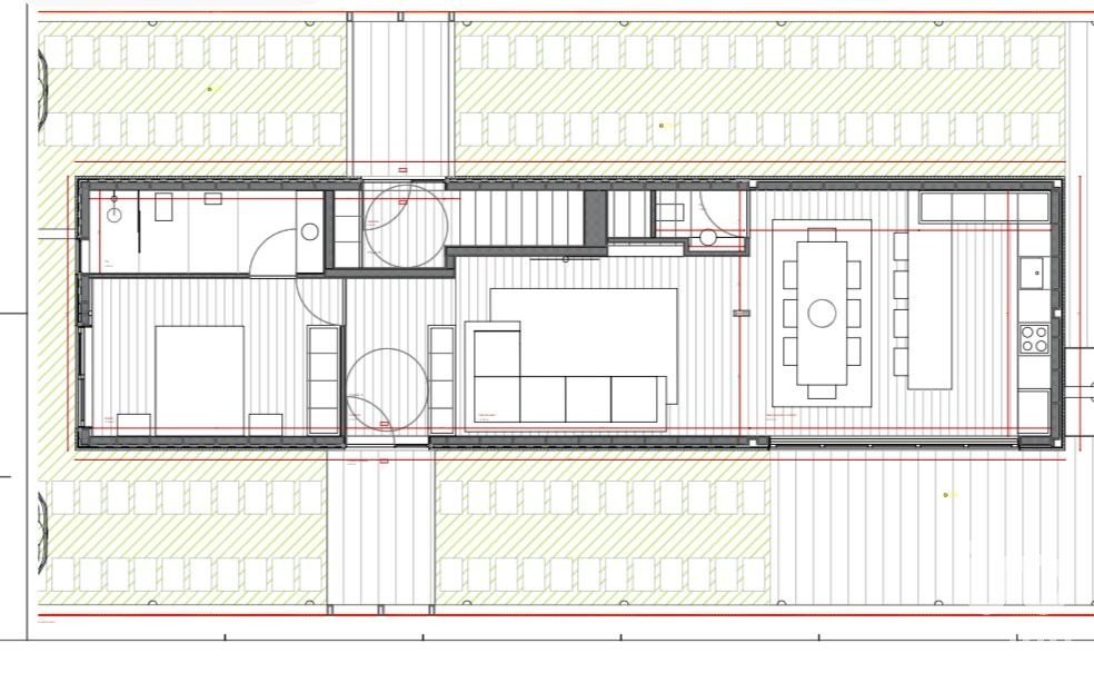
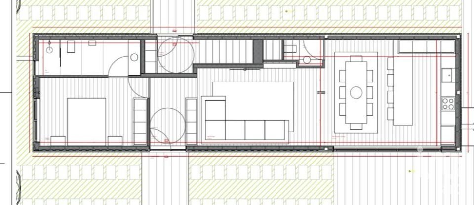
Este terreno urbano já possui projeto aprovado e licença de construção, estando totalmente preparado para iniciar de imediato a construção de duas moradias bi familiares. Cada habitação será composta por dois pisos, com 90 m², um quarto, sala de estar e jantar, cozinha em open space, duas casas de banho, área de churrasqueira e garagem.
Localização privilegiada nas Agras do Norte, zona conhecida pela tranquilidade, excelente acessibilidade e proximidade a escolas, comércio e serviços.
Pronto a construir – sem burocracias nem atrasos!
Ideal para:
Investidores à procura de um ativo seguro e com excelente rentabilidade
Famílias ou promotores interessados em construir duas habitações independentes
Quem valoriza qualidade de vida, boa localização e potencial de valorização
Características do Terreno:
Área total: 550 m² (11 m de frente x 50 m de profundidade)
Área de implantação: 105 m²
Área bruta de construção: 193,69 m²
Não perca esta oportunidade única de investir ou construir em Aveiro.
Entre em contacto e saiba mais!
Equipamentos
Exterior
Outros
Este terreno está localizada em Esgueira.



