Terreno urbano em Azueira e Sobral da Abelheira de 301 m²
Sobre este terreno em Azueira e Sobral da Abelheira, Azueira e Sobral da Abelheira
RUíNA PARA RECUPERAR NO LIVRAMENTO - AZUEIRA
Se procura um terreno para construir na zona oeste, seja para o projeto da sua nova casa, ou até para investimento este Terreno é uma boa oportunidade e permite, pois, tem uma ruína que pode ser recuperada e desenvolver uma moradia unifamiliar.
Por outro lado pode decidir por usar um projeto já aprovado para construção de um prédio multifamiliar com 5 apartamentos.
O terreno tem 301m2 e está localizado no coração do Livramento, este terreno está numa área estratégica, perto de comércio, restaurantes e serviços, e com fácil acesso à Estrada Nacional, garantindo rápida conexão com Torres Vedras, Malveira, Venda do Pinheiro, Mafra e Ericeira e até Lisboa, servida por várias carreiras de autocarros.
Para recuperação desta ruína temos uma caderneta predial com afetação de habitação com um piso e 3 divisões, o que equivale a uma moradia V2.
A área de implantação de 167.400m2 e uma área bruta de 167.400, uma área dependente de 19m2 e uma área bruta privativa de 148.400m2.
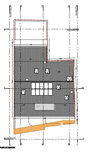
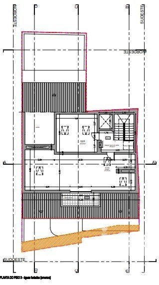
Para o prédio referido, existe e já aprovado um projeto composto por 4 pisos acima do solo, águas-furtadas e um piso abaixo do solo destinado a garagem.
A implantação do edifício será de 262m², com um volume total de construção de 2292m², distribuídos por 5 pisos, sendo que o -1 é para a garagem com 5 lugares de estacionamento, e o 5º piso com as águas-furtadas.
O projeto prevê a construção de apartamentos de tipologias T1 e T2, oferecendo ótimas possibilidades para diferentes perfis de clientes.
A licença de construção já está aprovada e a pagamento, permitindo que o início da obra aconteça rapidamente.
O Livramento é uma localidade situada na freguesia de Azueira e Sobral da Abelheira, no concelho de Mafra, é uma zona em crescimento, onde que os preços para investimento ainda apresentam preços muito razoáveis, é uma boa oportunidade de investimento com uma localização muito central, com alguma história e tradições.
A localidade conta com o Centro Social Paroquial de Nossa Senhora do Livramento, que desempenha um papel importante no apoio social e comunitário, oferecendo diversos serviços à população local.
Para informações mais detalhadas, entre em contato e agende uma visita ao terreno , onde poderemos fazer um breve passeio pela zona envolvente, para poder compreender o potencial da propriedade que vai adquirir.
Equipamentos
Exterior
Outros
Este terreno está localizada em Azueira e Sobral da Abelheira.












