Moradia T4 em Carvalhal de 235 m²
Características
Sobre esta casa / moradia de 4 quartos em Carvalhal, Carvalhal
Procura uma moradia única, com privacidade e requinte? Então esta é a escolha certa!
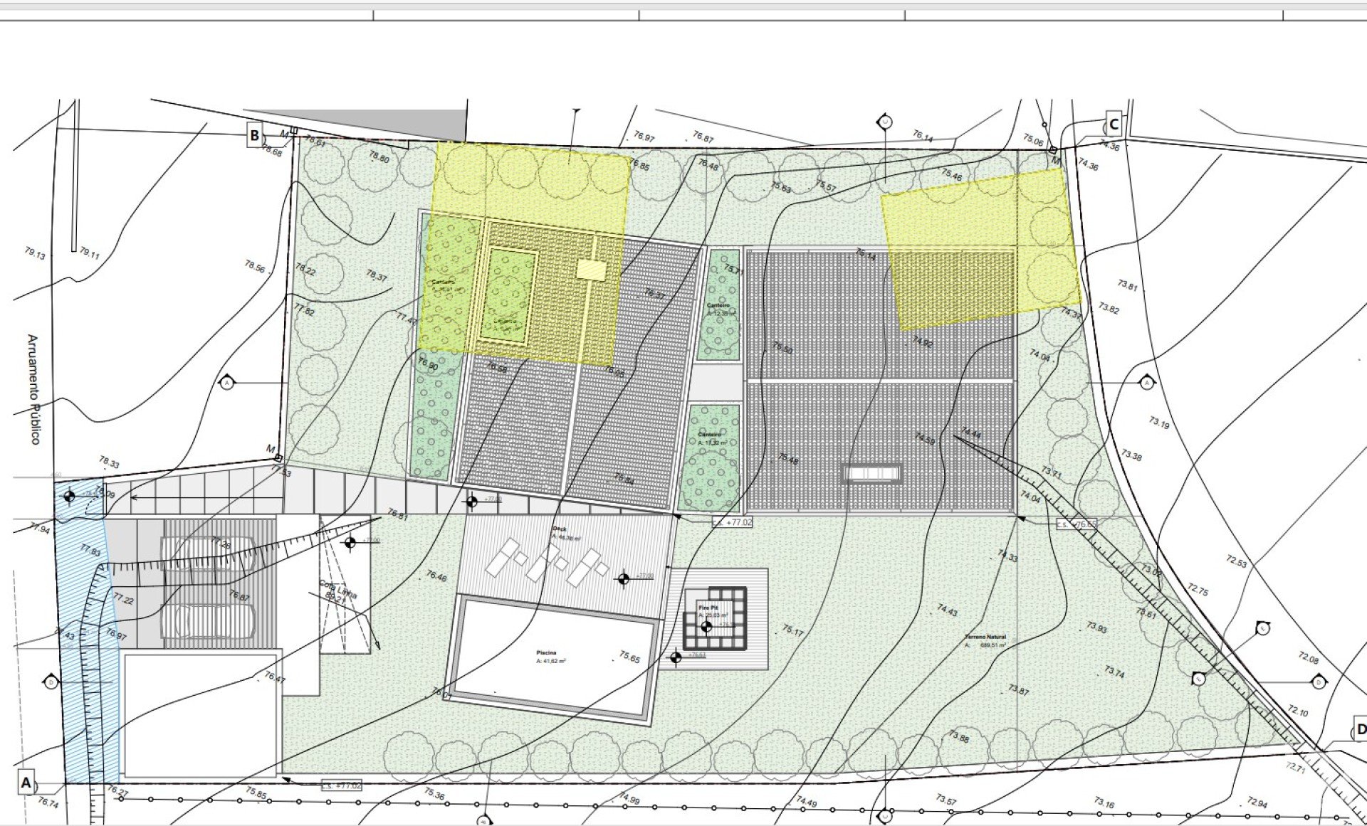
Fantástica Moradia de Luxo, em fase de construção, inserida num terreno de 2 360m2.
Com cada detalhe pensado ao pormenor, para lhe proporcionar a máxima qualidade e conforto na sua casa, esta moradia é composta por:
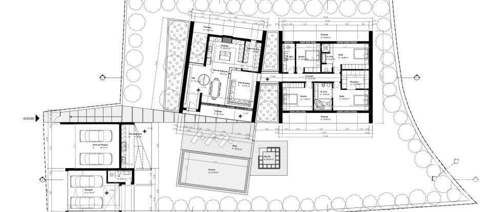
- 4 Quartos da seguinte forma:
-- 1 Quarto Suite- Masterbedroom- ( casa de banho com dois lavatórios) + closet , com area total de 37.66m2;
-- 1 Quarto Suite de 26.18m2 com roupeiro embutido;
-- 1 Quarto com roupeiro embutido de 17.40m2 ;
-- 1 Quarto com roupeiro embutido de 14.63m2:
Todos os quartos têm acesso a uma varanda de 18.60m2.
- Casa de banho de 7.47m2
Passando para a área social temos:
- Cozinha em open space com a sala de refeições, sala de estar e hall de entrada, tendo uma área total de 75.89m2, com acesso direto ao jardim, com promenores de luxo que pode ver no projeto.
- Zona das Máquinas ( 9.47m2)
A zona exterior tem uma garagem (41m2) para dois carros e ainda uma pérgola a cobrir uma zona de 34.74m2 com lugar para mais dois carros. Ao lado da garagem tem uma casa de banho ( 5.93m2) para dar apoio a piscina.
No espaço de lazer tem um maravilhoso jardim, com zona de churrasqueira, acompanhado de uma piscina de 41m2 com uma área de deck de 46.38m2 e ainda para desfrutar do sunset tem uma Fire Pit de 25.03m2 perfeita para relaxar.
Caracteristicas:
- Estrutura do edificio antissísmica, de betão armado;
- Fachada com parede dupla com caixa de ar e isolamento térmico;
- Pavimento interior será todo ele em flutuante vinílico, exepto nas casas de banho que será revestimento cerâmico;
- Tectos em soalho de madeira de casquinha tratada com barrotes a vista ou em gesso cartonado com isolamento térmico e acústico;
- Janelas em PVC de cor de madeira no exterior e cor branca no interior;
- Estores eletricos;
- Ar Condicionado
- Sistema de ventilação AVAC
- Cozinha equipada
-Vídeo porteiro com monitor a cores
- Paineis Solares
- Certificado Energético A
-Mais informações no mapa de acabamentos
A obra é concluida no práximo máximo de 16 meses após a reserva. Entregue chave na mão. Pode sempre alterar alguns materiais e caracteristicas, tendo de acordar com o construtor.
Já imaginou viver no meio do campo, numa casa com todo o conforto possivel e imaginário ? E a poucos minutos de todo o comércio? Esta é a casa perfeita para si! Com uma mistura de moderno com toques de madeira, e tudo pensado ao pormenor.
Situada numa aldeia histórica, tranquila a poucos minutos da Vila do Bombarral onde pode encontrar todo o tipo de comercio e serviços. A 5 minutos da A8 e a 50 minutos de Lisboa.
Contacte-me para mais informações.
Equipamentos
Exterior
Outros
Consumo de energia
Classe energética :
Esta casa / vila está localizada em Carvalhal.





