
550 000 €
Casa de campo em Salvaterra de Magos e Foros de Salvaterra
- T4
- 5000 m² área bruta
- 5000 m² área terreno


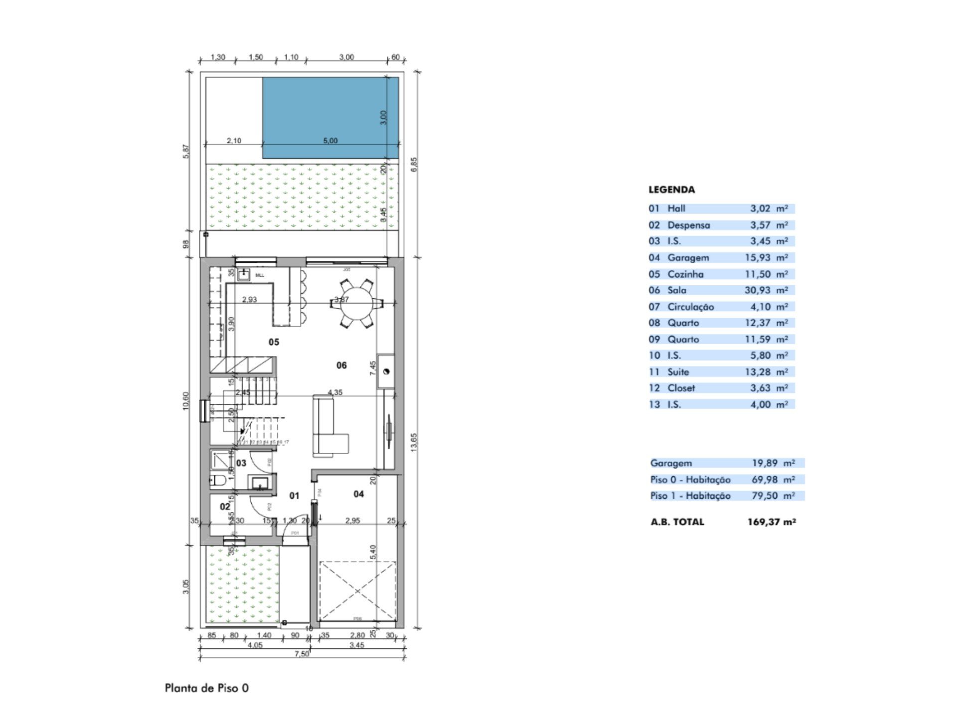
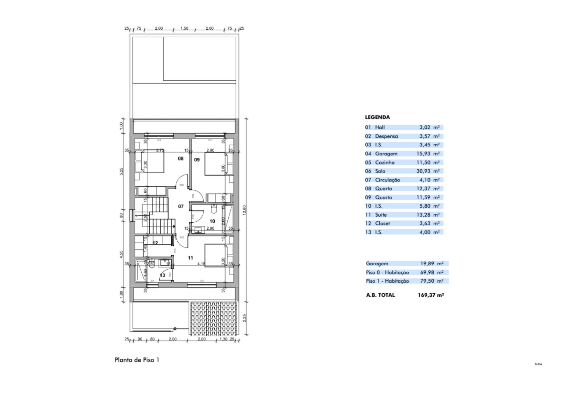
Moradia Nova T3+1 com Piscina | Salvaterra de Magos – Urbanização Vila Magos Apresentamos esta futura moradia unifamiliar de dois andares, com início de construção previsto brevemente e conclusão estimada em 1 ano, inserida num lote de 153 m² e com área de implantação de 105 m². Localizada na Urbanização Vila Magos, em Salvaterra de Magos, esta é uma excelente oportunidade para quem procura uma casa moderna, funcional e inserida num ambiente familiar e seguro. O rés do chão contará com uma ampla zona social em open space, integrando sala e cozinha, ideal para o dia-a-dia e momentos de convívio. Terá ainda uma casa de banho completa e uma divisão versátil que poderá funcionar como escritório, arrumos ou quarto adicional. O piso superior será composto por dois quartos com roupeiros embutidos, uma casa de banho comum, e uma espaçosa suíte com casa de banho privativa e walk-in closet. A moradia incluirá garagem privativa e piscina, ambas já contempladas no valor final. Do lado esquerdo do imóvel ficará um lote vazio, com projeto camarário aprovado para a criação de um parque público, reforçando a tranquilidade e a atratividade para famílias. - Localização & Envolvente A urbanização conta com minimercado, cafés e farmácia nas imediações. Nas proximidades, a poucos minutos de carro, encontrará supermercados. O acesso à autoestrada é rápido e conveniente: a A13 está a cerca de 5 km, com ligação direta à A10 e A1. Lisboa situa-se a aproximadamente 40 minutos (63 km) e Santarém a menos de 30 minutos (25 km). - Educação e Serviços para Famílias A moradia está inserida numa zona com boa oferta educativa. A cerca de 5 minutos localiza-se o Centro Escolar de Salvaterra de Magos (ensino pré-escolar e 1.º ciclo), bem como a Escola Básica 2,3 de Salvaterra de Magos. O Agrupamento de Escolas de Salvaterra de Magos abrange também o ensino secundário, assegurando todo o percurso escolar até ao 12.º ano, o que torna esta zona ideal para famílias com crianças e jovens em idade escolar. Salvaterra de Magos é uma vila em crescimento, muito procurada por famílias que valorizam segurança, tranquilidade e qualidade de vida. Inserida num ambiente acolhedor e tradicional, oferece o equilíbrio ideal entre a calma do campo e a proximidade dos grandes centros urbanos. A futura construção de um parque público junto à moradia reforça o carácter familiar da zona, tornando-a perfeita para quem deseja viver com conforto e espaço, num local onde as crianças ainda brincam na rua.
Referência: 145475
Imóveis semelhantes

550 000 €
