
- Novo anúncio
129 000 €
Casa/Moradia em Castelo Brando
- 126 m² área bruta
- 126 m² área terreno


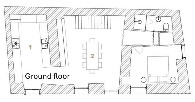
Beleza histórica, reinventada para a vida moderna No coração de Pedrógão Pequeno, a Casa Adelina combina o caráter do século XIX com os confortos atuais. Totalmente renovada com cuidado, esta casa de três quartos e três casas de banho oferece espaços elegantes, uma sala de estar acolhedora com detalhes em madeira e um terraço ensolarado com vista panorâmica para o campo. Os detalhes originais em pedra, as persianas e um raro santuário revestido a azulejos de 1865 ligam a casa ao seu passado, enquanto as modernizações — telhado novo, isolamento, vidros duplos, aquecimento eficiente — garantem conforto durante todo o ano. O único toque final que falta? A cozinha, que pode projetar ao seu gosto antes da conclusão. Características principais: • 196 m² distribuídos por dois andares, totalmente remodelados com telhado novo, instalação elétrica, canalização, isolamento, janelas com vidros duplos, piso de madeira e portas. • Três quartos espaçosos e três casas de banho elegantes com acessórios de alta qualidade. • Aquecimento central através de radiadores de ferro fundido, alimentados por uma bomba de calor eficiente que também fornece água quente. • Terraço no telhado com bancada em pedra, lavatório vintage feito à mão e tomadas elétricas — ideal para refeições ao ar livre com vistas panorâmicas sobre a praça e o campo. • Adega única sob a sala de estar para arrumação ou vinho. • Oportunidade para o comprador personalizar o design e o equipamento da cozinha antes da conclusão, garantindo que corresponda perfeitamente ao seu gosto pessoal. • Excelente localização central com comodidades nas proximidades, perto do rio Zêzere e da albufeira de Cabril • Lisboa/Porto a menos de 2 horas, Coimbra a 45 minutos Uma oportunidade rara de possuir uma propriedade histórica intemporal — ideal para uma residência permanente, um refúgio elegante ou um aluguer boutique.
Referência: 120248
Classe energética
Imóveis semelhantes

129 000 €



106 500 €

