Casa T0 em A dos Cunhados e Maceira de 56 m²
Características
Sobre esta casa / moradia de 0 quartos em A dos Cunhados e Maceira, A dos Cunhados e Maceira
Moradia com potencial de renovação a poucos minutos da praia de Porto Novo – Maceira, Torres Vedras
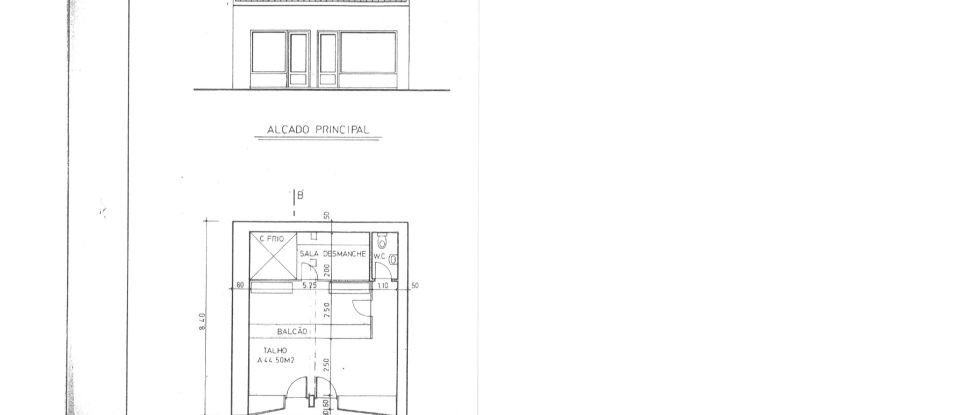
Descubra esta moradia localizada na tranquila localidade da Maceira, a escassos minutos da Praia de Porto Novo. O imóvel, anteriormente utilizado como talho, apresenta uma estrutura com quatro divisões na caderneta e licença de habitação, uma casa de banho e um espaço frontal tipo varanda, ideal para um pequeno jardim ou zona de lazer.
Com potencial para ser transformada numa acolhedora casa de férias, habitação permanente ou até num espaço comercial com habitação, esta propriedade oferece uma excelente oportunidade de investimento numa zona em crescimento, próxima do mar e de todas as comodidades.
Características principais:
Moradia térrea
4 divisões( de momento esta ampla)
1 casa de banho
Espaço exterior frontal
Estado usado, a necessitar de renovação
Localização sossegada, com boa exposição solar
A poucos minutos das praias de Porto Novo e Santa Rita
Equipamentos
Exterior
Outros
Esta casa / vila está localizada em A dos Cunhados e Maceira.











