Terrain agricole à Eira Vedra de 5 300 m²
À propos de ce terrain à Eira Vedra, Eira Vedra
Oportunidade Única de Investimento em Terreno para Construção em Vieira do Minho - Lote de 5300m²!
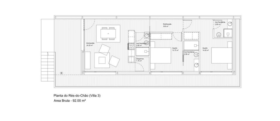
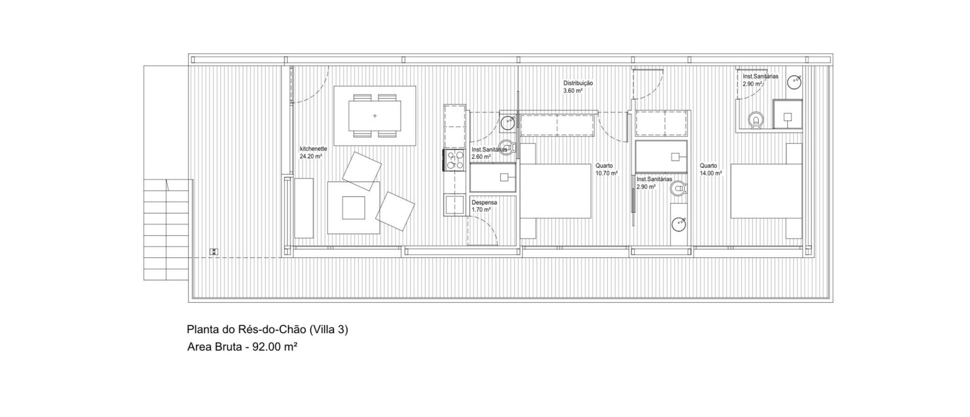
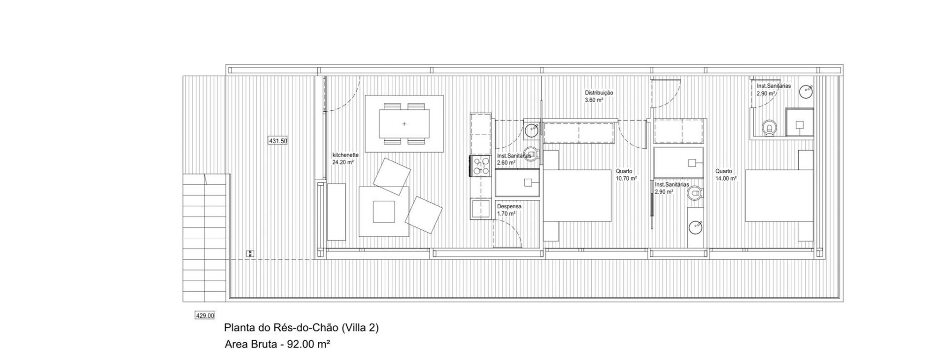
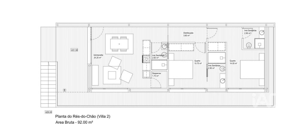
Com projeto aprovado e pago para 3 moradias com piscina.
Este terreno para construção oferece-lhe a possibilidade de dar vida ao seu projeto de sonho numa localização privilegiada em Eira Vedra - Vieira do Minho , Braga.
Com uma área total de 5300m², este terreno proporciona um vasto espaço para desenvolver um projeto residencial à sua medida.
Características do Terreno:
- Área Total: 5300m²
- Uso: Terreno para Construção
- Aptidão para Construção: Residencial
- Potencial Construtivo: Diversas Possibilidades de Edificação
- Localização: Eira Vedra, Vieira do Minho, uma zona com grande potencial de valorização
- Viabilidade de Construção: A possibilidade de concretizar o seu projeto segundo as suas necessidades
Destaques do Terreno:
- Localização Estratégica: Situado numa área de crescente valorização e fácil acesso a serviços e comércio local
- Espaço Amplo: Com uma área generosa, este terreno oferece inúmeras potencialidades de desenvolvimento
- Possibilidade de Rentabilização: Excelente oportunidade de investimento com potencial de retorno
Este terreno para construção é o local perfeito para materializar a sua visão arquitetónica e criar um projeto único e personalizado. A sua localização estratégica em Eira Vedra, Vieira do Minho, aliada ao amplo espaço disponível, tornam-no numa oportunidade imperdível para investidores ou promotores imobiliários.
Não perca a oportunidade de dar vida ao seu projeto de sonho! Entre em contacto para mais informações e agende a sua visita a este terreno único em Eira Vedra, Vieira do Minho.
Équipements
Extérieur
Ce terrain est située à Eira Vedra.








