Immeuble à Alcântara de 403 m²
Atouts
À propos de cet immeuble à Ajuda, Lisboa
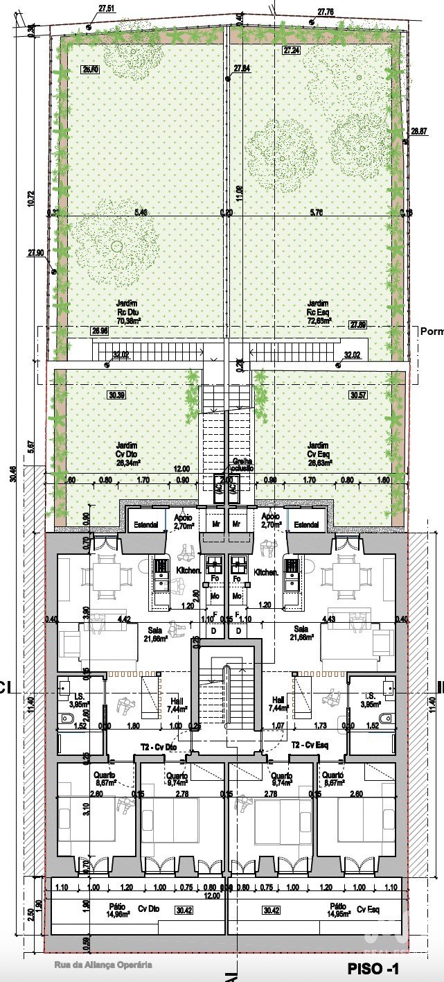
🏗️ Immeuble avec projet approuvé – 8 appartements (dont 4 avec jardin) – Opportunité unique à Ajuda, Lisbonne
Excellente opportunité d’investissement au cœur du quartier historique d’Ajuda, l’un des secteurs de Lisbonne connaissant la plus forte dynamique de rénovation et de valorisation.
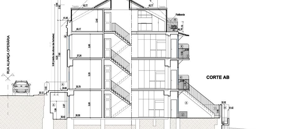
Cet immeuble, situé Rua Aliança Operária nº 34, est vendu avec un projet d’agrandissement et de réhabilitation approuvé par la Mairie de Lisbonne (CML), actuellement au stade de “licence de construction à paiement”, permettant de démarrer immédiatement la phase de travaux.
Le projet prévoit :
La rénovation complète des étages existants et la construction d’un étage supplémentaire ;
La création de 8 appartements, dont 4 avec jardin privatif ;
Surface totale de construction : 560,5 m² ;
Surface habitable : 520 m² ;
Surface de jardin : 197 m².
Le propriétaire dispose de plusieurs devis détaillés pour la phase de construction, facilitant la planification financière et permettant une mise en œuvre rapide et transparente.
Situé dans une zone en pleine requalification urbaine, entre Ajuda et Alcântara, le bien bénéficie d’une excellente localisation :
À proximité de la LX Factory (900 m), de la Tapada da Ajuda (650 m) et du Palais National d’Ajuda (1 km) ;
Très bien desservi par les transports publics : bus, tramway 18E et gare Alcântara-Mar à moins d’1 km.
Une opportunité rare pour les investisseurs à la recherche d’un projet prêt à démarrer, avec un fort potentiel de valorisation et de rentabilité, idéal pour un projet de rénovation et revente, ou pour de la location résidentielle dans un quartier en plein essor.
📞 Contactez-moi pour organiser une visite.
Je parle français, anglais, portugais, italien et ai quelques notions de chinois.
IAD est une agence immobilière digitale présente au Portugal, en France, en Italie, en Espagne, en Allemagne, au Mexique, aux États-Unis et au Royaume-Uni, accompagnant ses clients dans leurs projets immobiliers à travers le monde.
Équipements
Extérieur
Autre
Bilan énergétique
Consommation énergétique :
Ce batiment est situé à Ajuda.


















