Appartement T4 à Estrela de 266 m²
À propos de cet appartement de 4 chambres à Estrela, Estrela
T4 Duplex | 266 m² | 2 Suites | 3 salles de bains + 1 toilette | 2 Terrasses (46 m²) | 2 places de garage | Stockage | Ascenseur | Piscine | Jardin | Gymnase
Extraordinaire appartement en duplex de 4 chambres, inséré dans une copropriété de référence au cœur de Lapa, résultant de la conversion d'un ancien palais, achevé en 2015.
Une propriété unique, qui se distingue par ses surfaces généreuses, son élégance architecturale, son excellente luminosité et ses deux grandes terrasses avec vue imprenable sur Lisbonne et la basilique da Estrela.
________________________________________
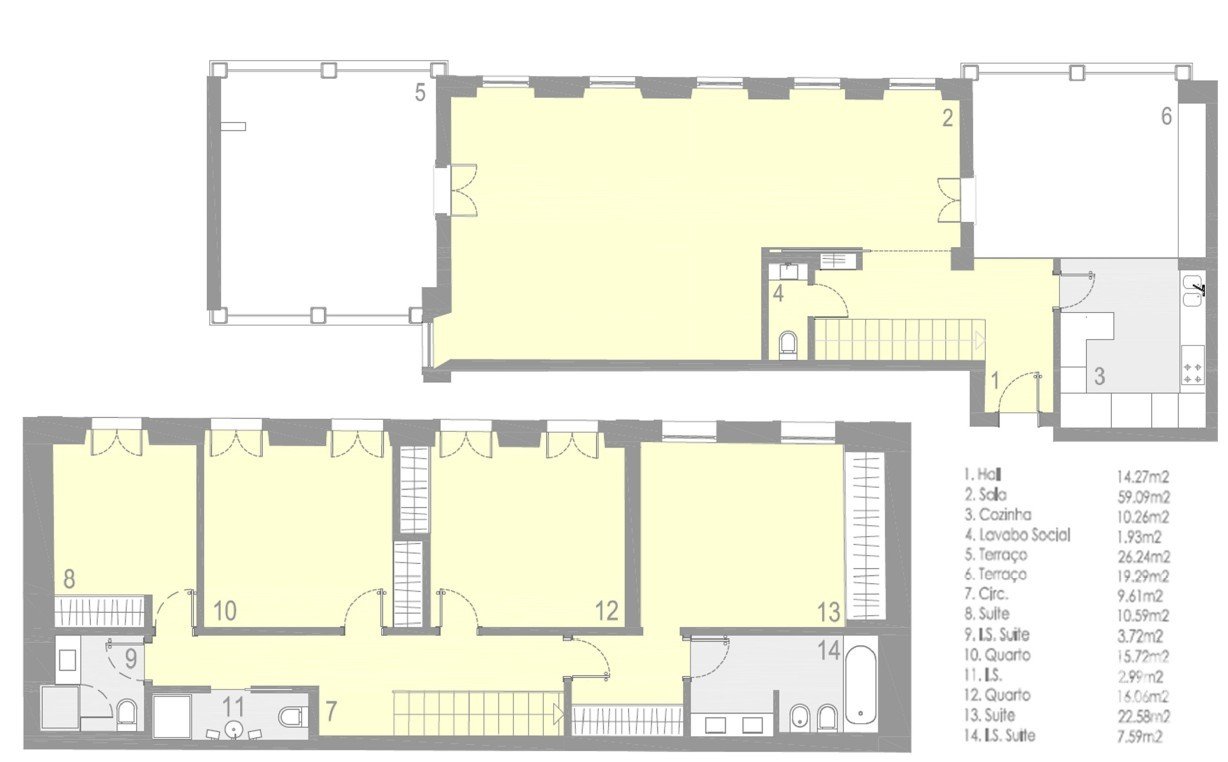
Rez-de-chaussée
L'espace social a été conçu pour offrir confort, espace et lumière naturelle à tout moment de la journée. La chambre de 59 m², avec trois façades et une orientation sud, dispose de huit fenêtres, dont trois balcon avec accès direct aux terrasses. Son exposition exceptionnelle au soleil garantit un ensoleillement tout au long de la journée, rendant l'espace particulièrement accueillant et lumineux.
L'environnement est naturellement divisé en un espace de vie et une salle à manger, tous deux reliés à l'extérieur :
•Terrasse 1 (19 m²) - à côté de la salle à manger et de la cuisine, idéale pour les repas en plein air.
•Terrasse 2 (26 m²) - à côté de l'espace de vie, parfait comme espace de repos et de socialisation, avec vue sur le jardin de la copropriété et la ville.
Les deux terrasses sont dotées d'un sol en bois et de balustrades en verre qui leur confèrent une sensation de légèreté, de modernité et d'ouverture.
La cuisine, moderne et entièrement équipée, dispose d'un grand mur vitré et d'un accès direct à la terrasse. À cet étage, il y a aussi des toilettes pour les invités.
________________________________________
Étage inférieur
L'espace privé, totalment séparé avec privacité et calme, comprend deux suites, deux chambres et deux salles de bains complètes. Toutes les chambres ont des placards intégrés. L'escalier intérieur, avec protection en verre et éclairage LED intégré, ajoute une touche contemporaine et sophistiquée.
________________________________________
Finitions et détails
•Parquet
•Cadres de fenêtres doubles blancs
•Climatisation
•Terrasse en bois sur les terrasses
Zones principales :
•Salon : 59 m²
•Cuisine : 10.3 m²
•Terrasses : 26,3 m² + 19,3 m²
•Suites : 22,6 m² et 10,6 m²
•Chambres : 15.7 m² et 16 m²
L'appartement a bénéficié de rénovations et d'innovations dans l'immeuble, garantissant un état impeccable.
Location vide, non meublé, pour une durée minimale de 1 an.
________________________________________
Copropriété et immeuble
L'appartement fait partie d'une copropriété privée exclusive, résultant de la réhabilitation d'un palais historique qui a conservé la façade d'origine et des éléments architecturaux nobles, tels que le sol en marbre et les arches en pierre dans le hall d'entrée.
La copropriété offre également un magnifique jardin, une piscine extérieure entourée de verdure et une salle de sport entièrement équipée, à l'usage exclusif des propriétaires de la copropriété - une véritable oasis de tranquillité dans le centre de Lisbonne.
L'appartement dispose de deux places de parking, avec accès direct par une rampe, et d'un débarras.
________________________________________
Emplacement
Située dans l'un des quartiers résidentiels les plus prestigieux de la ville, Lapa, cette propriété bénéficie d'un environnement calme et élégant, proche de tout. Il vous permet de vous rendre à pied au jardin et à la basilique d'Estrela, à Santos et au Campo de Ourique. Une zone bien desservie par les transports en commun, avec une future station de métro à seulement 5 minutes, et à proximité de toutes sortes de commerces et de services, y compris un supermarché Pingo Doce à distance de marche.
________________________________________
Un appartement avec de l'âme, de la lumière et de la distinction - au cœur de Lapa.
Équipements
Autre
Cet appartement est situé à Estrela.







