Shop / premises commercial in Loulé (São Sebastião) of 18 m²
About this shop/premises commercial at Loulé (São Sebastião), Loulé (São Sebastião)
Commercial Building for Sale in the Center of Loulé
A unique opportunity in the historic area of Loulé! This building is located in a privileged area, with easy access.
Currently licensed for commerce/industry, it also has an approved project for conversion into housing, with the construction of a 1-bedroom apartment spread over 3 floors.
Features:
Location in the historic area of Loulé
License for commerce/industry
Approved project for housing (1-bedroom apartment with 3 floors)
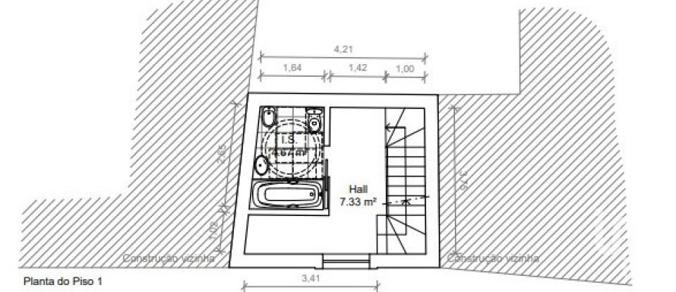
Ground floor: Kitchen and living room
1st floor: WC
2nd floor: Bedroom
Terrace
Potential for appreciation in the ARU (Urban Rehabilitation Area) area, with tax benefits and incentives for rehabilitation
Possibility for the owner to build the 1-bedroom apartment (price to be negotiated)
This property offers countless possibilities, whether it can continue to function as a commercial/industrial property or be transformed into a charming residence in the historic center of Loulé.
For more information or to schedule a visit, get in touch!
Equipments
Outdoor
Other
This shop/premises commercial is located at Loulé (São Sebastião).




