Warehouse in Benedita of 342 m²
About this shop/premises commercial at Benedita, Benedita
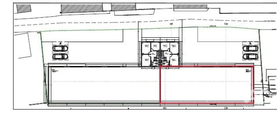
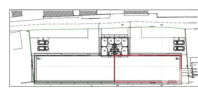
Unique Opportunity – Warehouse under Construction in Moita do Gavião (342 m²) - Warehouse on the right side.
We present a warehouse under construction with 342 m², located in the quiet and valued area of Moita do Gavião, Benedita. This space stands out for its versatility, being ideal for general storage, small commercial activities, creative studios, or light logistics support. The spacious and functional layout allows the property to be adapted to different types of businesses, ensuring practicality and efficiency in daily use.
The location is one of the property's main strengths. Moita do Gavião offers a calm, organized environment with excellent access to the main roads in the region, allowing quick trips to Alcobaça, Caldas da Rainha, Nazaré, and other locations in the west. The surroundings provide good exposure, easy parking, and a pleasant setting, ideal for those looking to work away from the hustle and bustle of the city without losing accessibility.
The construction follows current standards, using quality materials and solutions that ensure thermal comfort, good natural light, and efficiency in everyday life.
There is also the possibility of acquiring an office with a showroom and three offices, also under construction, which allows you to combine the two spaces into a single activity.
If you are looking for a modern, functional, and well-located warehouse, this is an opportunity to consider. There is also the option to rent.
Contact us for more information or to schedule a visit.
Equipments
Other
This shop/premises commercial is located at Benedita.




