

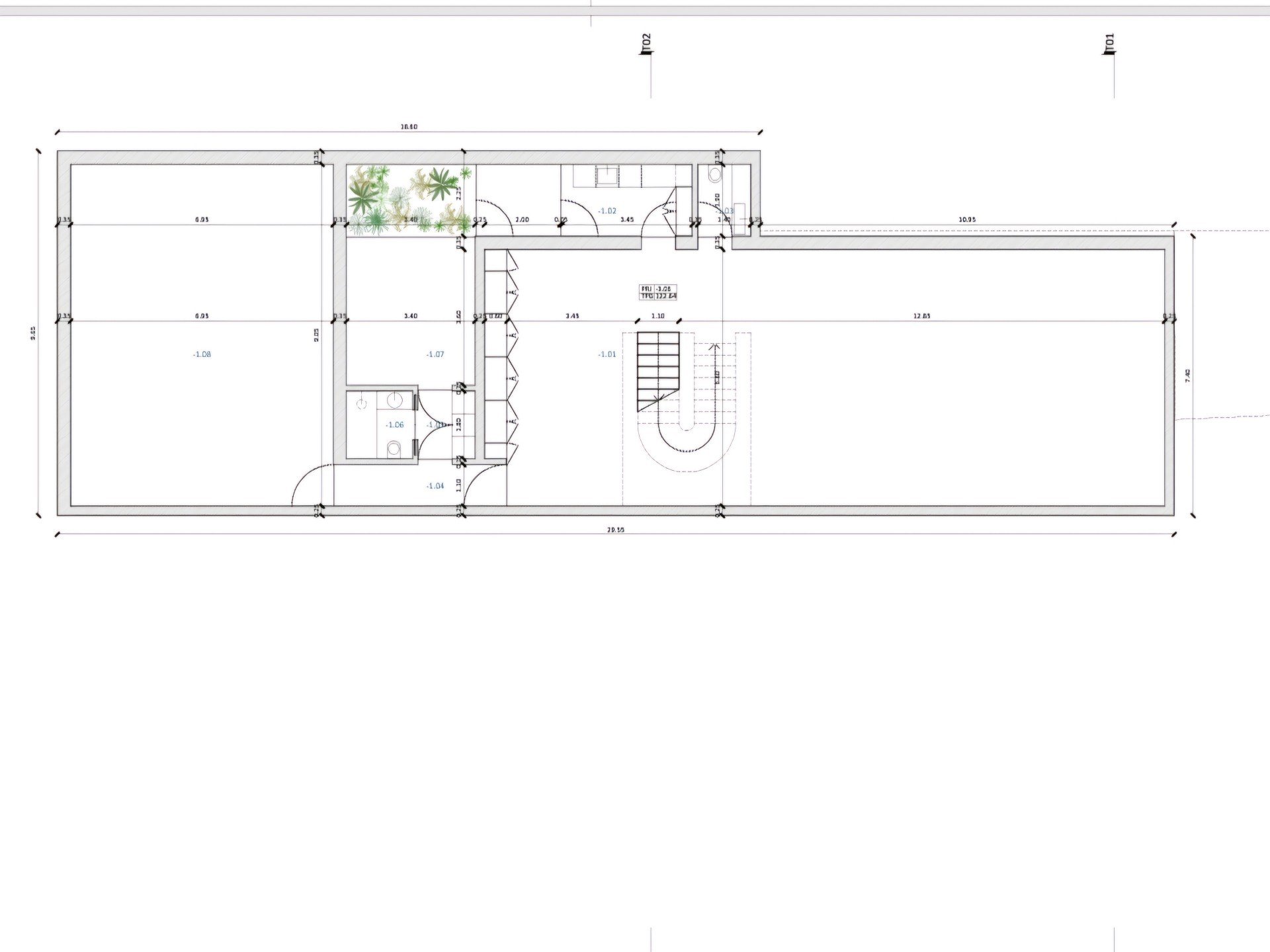
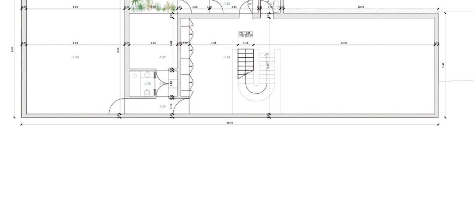
This plot of land seems to be an excellent opportunity for those looking to build a luxury villa in a privileged area of the Algarve. With the project already approved by the Loulé City Council, it is ready to move forward with the construction of a 5-bedroom villa on a 11167m2 plot, where you can let your imagination run wild. Villa with 5 suites, distributed between first floor (RC) and basement. The implantation area of around 300 m² offers generous space, while the total construction area of approximately 450 m² guarantees plenty of room for a spacious and comfortable design. The location near Vilamoura, known for its beaches, golf courses and marina, adds even more value, offering a combination of tranquillity and proximity to all the region's services and amenities. Useful area Ground floor : Porch 28,07m2 Storage 3,88m2 Entrance / Circulation 16,37m2 Closet / Circulation 2,74m2 Circulation 12,00m2 Sanitary installation 3,19m2 Kitchen / Living Room 60,99m2 Bedroom 12,34m2 Circulation 12,67m2 Closet / Circulation 2,74m2 Social Bathroom 2,73m2 Sanitary Installation 3,19m2 Bedroom 12,34m2 Closet / Circulation 2,74m2 Sanitary installation 3,19m2 Bedroom 12,34m2 Closet 8,22m2 Sanitary installation 9,65m2 Outdoor patio 2,20m2 Bedroom 16,65m2 Storage room 25,39m2 Useful Area Basement : Multipurpose space 121,91m2 Laundry room 10,83m2 Sanitary installation 2,66m2 Circulation 5,07m2 Closet / Circulation 2,75m2 Sanitary installation 3,19m2 Bedroom 13,36m2 Machine room / technical area 62,90m2 If you need more information or would like to discuss specific details of the project, I'm happy to help!
Ref: 125827
Similar properties


