

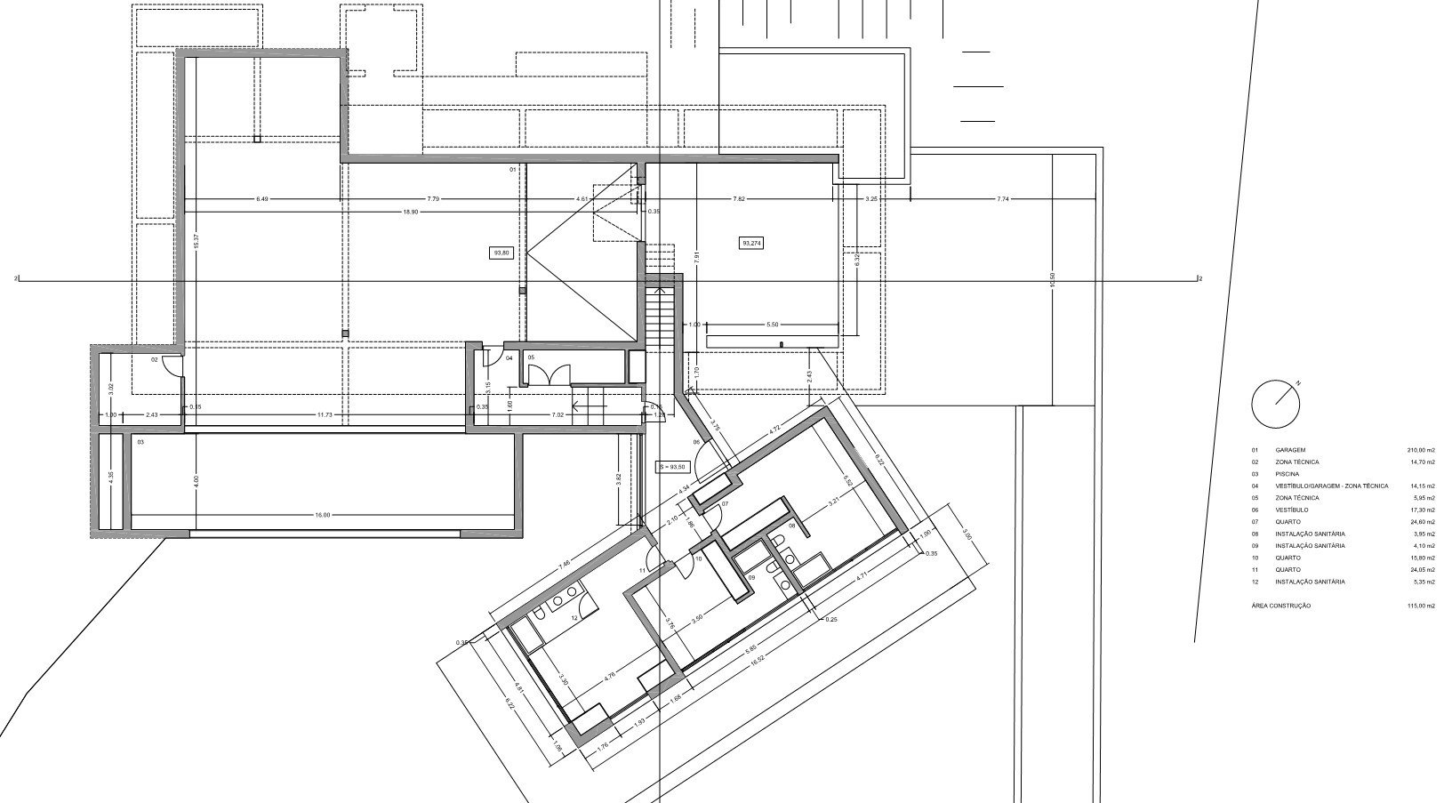
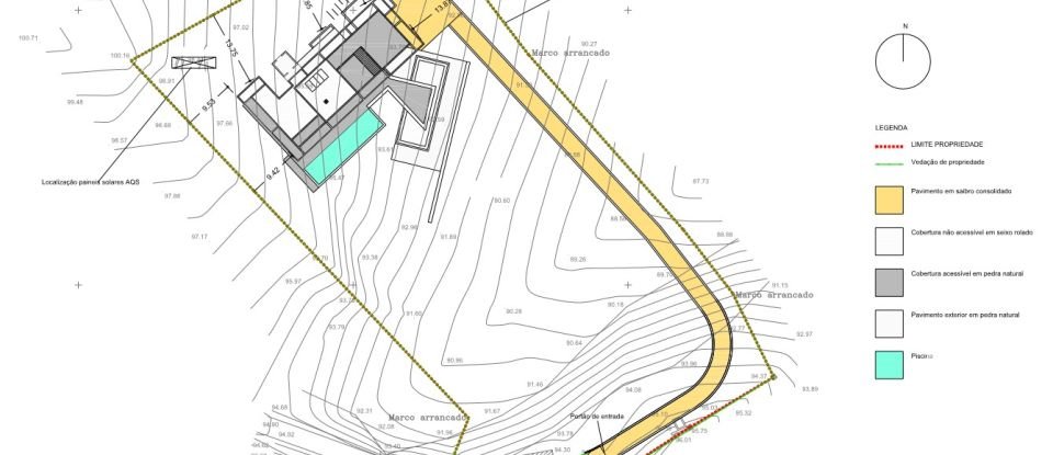
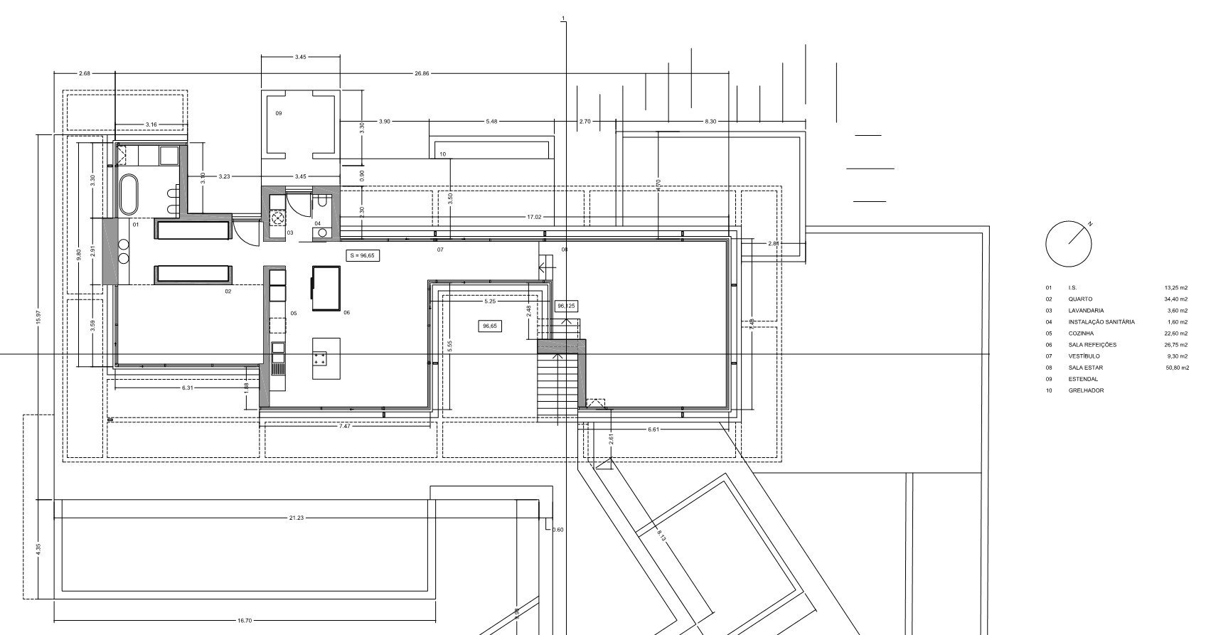
PORTUGAL - ALGARVE - LAGOS. Rare plot of 6000 m² with project approved for the construction of a contemporary T4 villa with 300 m² of gross area, garage and swimming pool. Located in Atalaia, Lagos, a privileged area synonym of luxury and exclusivity. The land is next to the Boavista Golf & Spa, a challenging course for players which offers views of rare beauty over the bay of Lagos and the mountains of Monchique. The project takes advantage of the gentle slope of the land to integrate the construction in its environment, providing a modern villa of 4 bedrooms en suite on two levels. On the groundfloor, you will find a huge garage of 210 m² and 3 bedrooms en suite (25 m², 25 m², 15 m²). On the 1st floor, you will find a master bedroom en suite of 35 m² with open dressing, a 50 m² open plan kitchen and dining room, and a 50 m² living room. The pool is accessible from this level, extending over a large and sunny terrace. The villa also has an accessible rooftop where you will enjoy panoramic views, tirelessly. Imagine building your dream home in this extraordinary landscape, high on the cliffs of Lagos, with stunning views of the Algarvian countryside. A perfectly quiet environment, with the historic center at less than 5 minutes by car. Lagos is one of the regions of the Algarve that offers the best quality of life with its culture, gastronomy, and spectacular nature. 60 minutes from Faro International Airport. NOTE 1 : the illustration of the villa was generated by AI and does not illustrate strictly the project as it was designed. NOTE 2 : construction cost estimated 1.400.000 € Contact us for more information about this exceptional project ! IAD’s reliability in Portugal, as a subsidiary of an international group with operations in France, Spain, Italy, Germany, UK, Mexico and the United States, guarantees you a high quality service and a wide range of services to realize your project.
Ref: 117314
Similar properties



