Land in Santa Maria, São Pedro E Matacães of 54,712 m²
About this land at Santa Maria, São Pedro E Matacães, Santa Maria, São Pedro E Matacães
Panoramic views over the city, the castle and the Church of Santa Maria.
This plot is part of a large farm with a total area of 54,712 m2, on the hillside on the west side of the city.
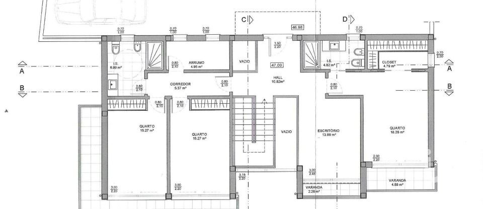
With one part rustic and the other urban, it is part of the perimeter of the city covered by the Torres Vedras Urbanization Plan (PUTV) and already has an approved project for the construction of a two-storey house with a gross area of 273 m2.
After construction, this sophisticated villa will have absolutely spectacular panoramic views over the city, the castle and the Church of Santa Maria, and the urban indices will allow higher density solutions to be proposed for possible future projects.
It currently has a public road, to the west, in Bairro das Alminhas (requiring improvement), to the east by a ramp next to the N8 ring road (behind Aldi), and the main entrance at the bend in the road in Bairro de S. António, thus guaranteeing quick access.
This property is called "Penúrias e Morgadinho", which once had a large area occupied by vineyards (60%).
Located at one of the entrances to the city of Torres Vedras, it has quick access to all kinds of shops, services, schools, clinics, hospitals (Público, CUF and Soerad), banks, pharmacies and Arenashoping.
You also have at your disposal some of the large shopping centers such as Continente, Auchan, Lidl, and literally at your feet, Aldi and Mercadona.
With access to the A8 at your doorstep, you can reach Lisbon in 45 minutes and if you want to smell the sea, you'll be in Santa Cruz in 20 minutes.
This is a project full of history, refinement and beauty, where you can enjoy extraordinary views.
Come and see it and be dazzled!
Equipments
Outdoor
This land is located at Santa Maria, São Pedro E Matacães.












