Building plot in Calvão of 1,300 m²
About this land at Calvão, Calvão
🏡 Plot for Construction - Choca do Mar, Calvão – Vagos
An excellent opportunity to build your dream home in a peaceful area with great access and excellent sun exposure!
📍 Location: Calvão, Vagos
📐 Total Area: 1,300 m²
📏 Frontage: 16 metres
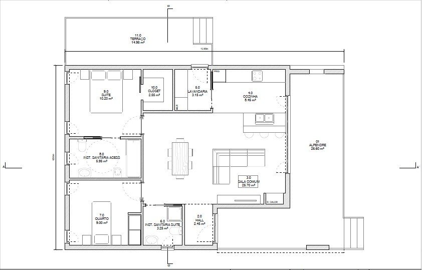
🏗️ Type 2 Building Feasibility
✅ Previously approved project by Vagos City Council
🔁 The building permit has expired and requires a new application
🛣️ Approximate distances:
• Praia de Mira – 13 km
• Praia do Areão – 13 km
• Vagos – 9 km
• Aveiro – 24 km
• A17 motorway access – 3 km
🎯 Highlights:
• Quiet and residential area
• Excellent sun exposure
• Partnership with an architectural firm to support your new project
• Easy access to main roads and nearby towns
👨💼 About me:
As an independent property consultant with IAD Portugal, my mission is to find the best solutions for my clients, whether they are buying or selling.
I work with a broad network of specialists and partners, offering a complete and secure service. I also collaborate with licensed agencies and consultants, ensuring everyone benefits.
I’m available to support you at every stage of the property process, providing peace of mind, confidence and professionalism.
📞 Feel free to contact me for more information or to schedule a visit.
Equipments
Outdoor
This land is located at Calvão.







