Building plot in Almancil of 840 m²
About this land at Almancil, Almancil
Fantastic plot of urban land in the center of Almancil, in the Algarve, with an area of 840m2 and 990m2 of construction area.
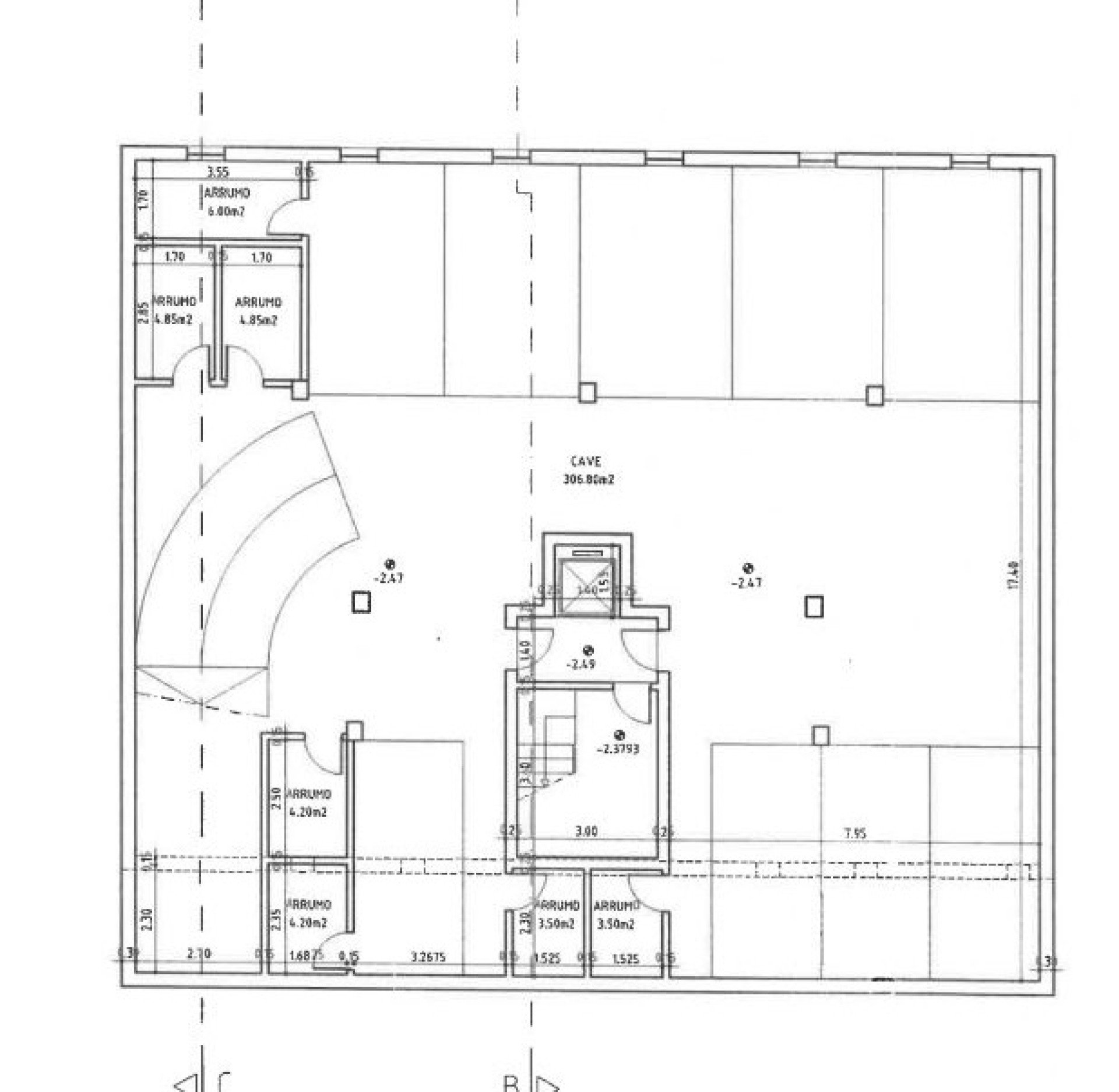
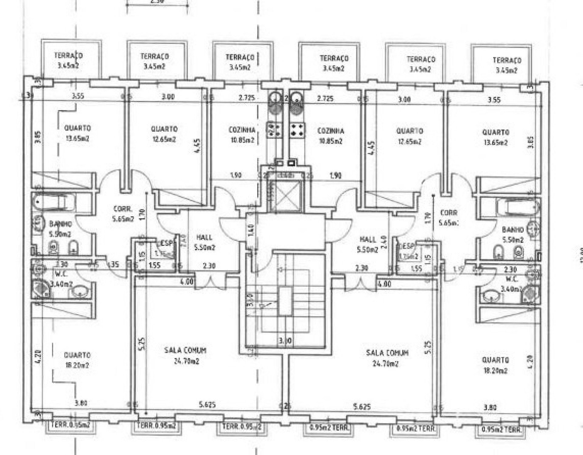
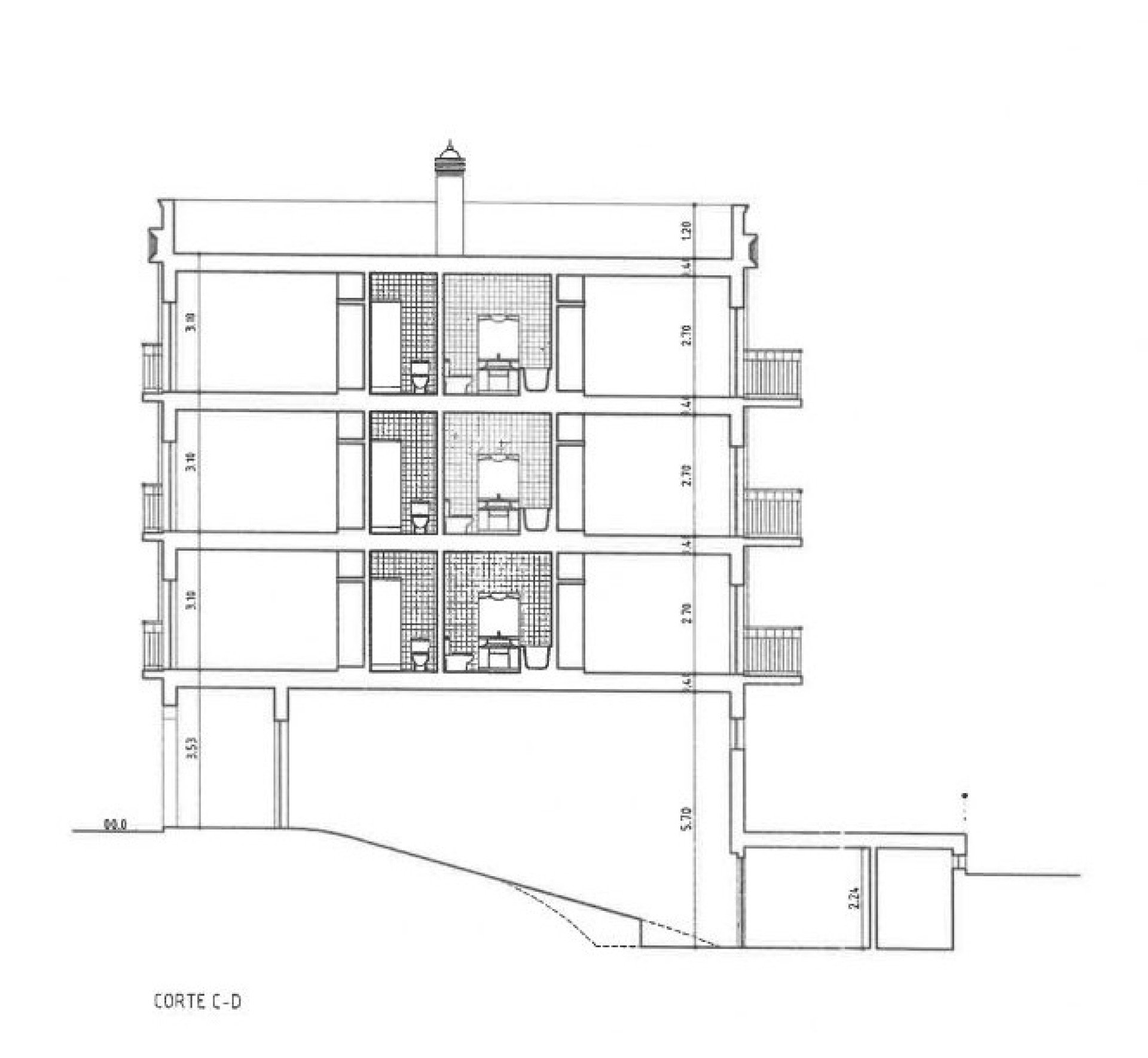
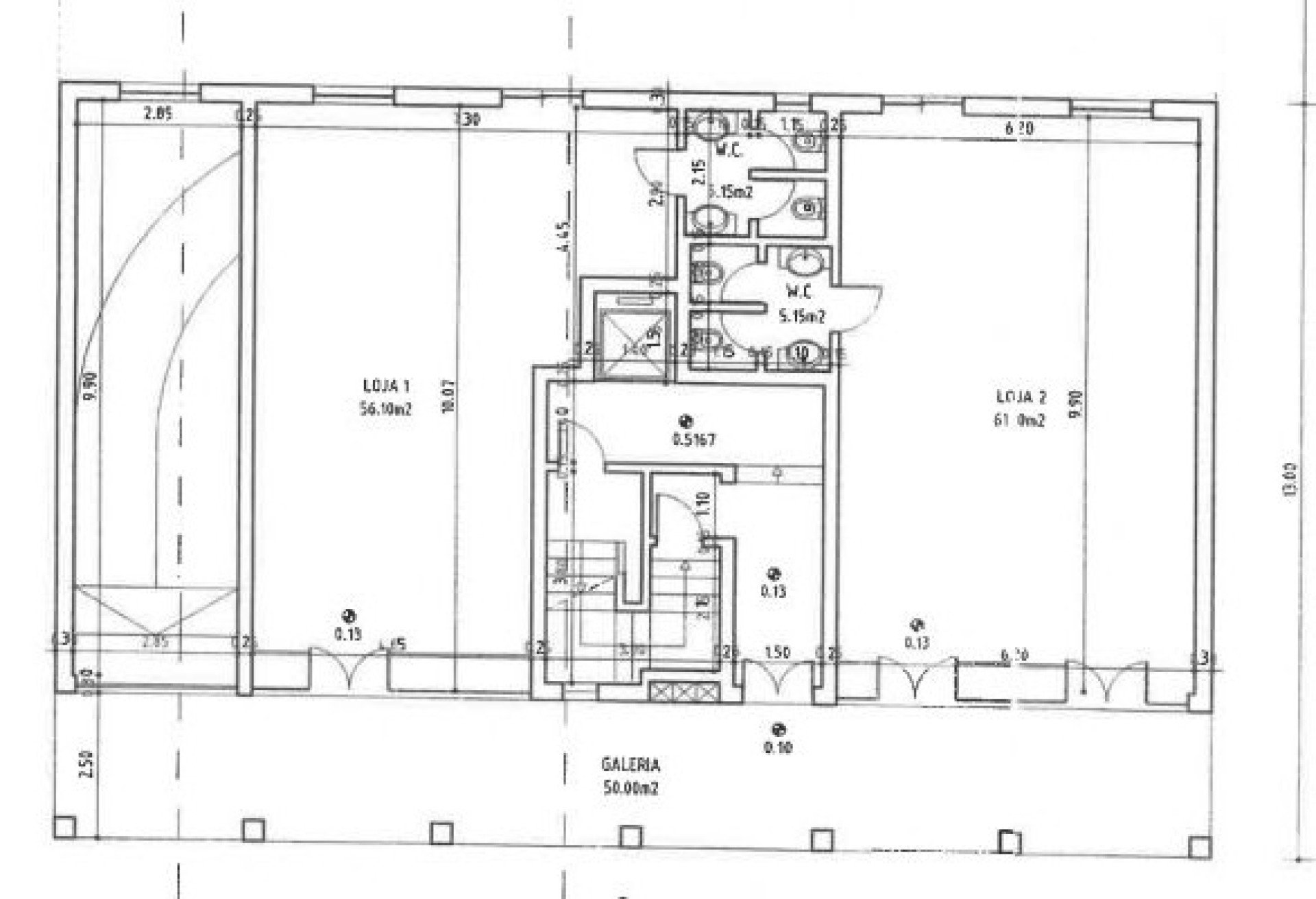
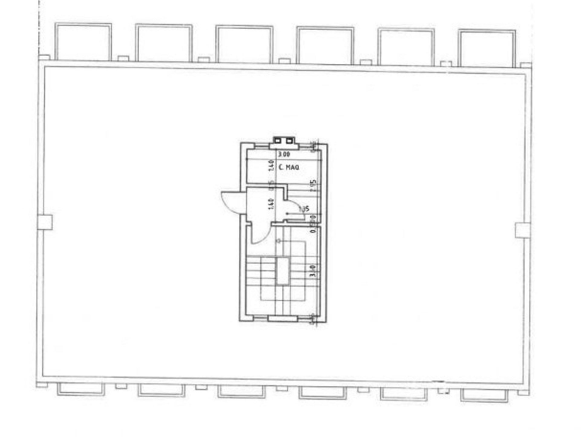
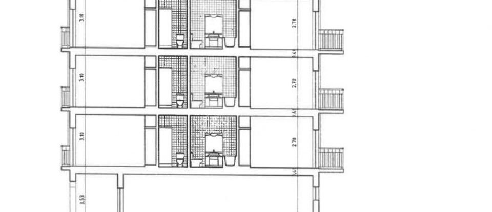
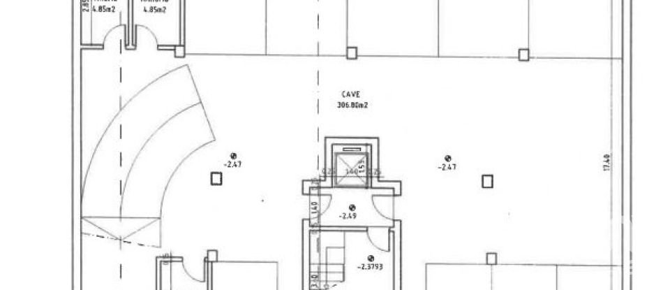
Located in an area of consolidated construction, it has an existing but expired project for a 4-storey building, consisting of:
-Parking and storage in the basement
-2 stores on the ground floor
-2 T3 apartments on the 1st, 2nd and 3rd floors, totaling 6 T3 apartments.
Almancil is a town in the municipality of Loulé, in the Algarve region of southern Portugal. It is located in the district of Faro and is known for its proximity to the popular tourist destinations of Quinta do Lago and Vale do Lobo, luxury areas with golf courses, hotels and sophisticated amenities.
In addition to its proximity to the airport (just 14km away), it is also close to the cities of Quarteira / Vilamoura, Loulé and Faro.
The Algarve, in general, is a tourist destination known for its beautiful beaches, golf courses and pleasant Mediterranean climate. Almancil, being in a central area, benefits from its proximity to these attractions and serves as an entry point for visitors exploring the region.
The town continues to grow at a good pace and investing in Almancil becomes a safe and profitable investment.
Excellent investment opportunity in the center of Almancil.
Don't miss out on this unique opportunity to invest in the town of Almancil, in the Algarve's famous golden triangle.
For more information about the project or to arrange a visit, please contact us.
iad, doing real estate right for 15 years.
Equipments
Outdoor
This land is located at Almancil.














