
- New build
€1,130,000
House in Pontinha e Famões
- 5 bedrooms
- 514 m² gross area
- 383 m² of land


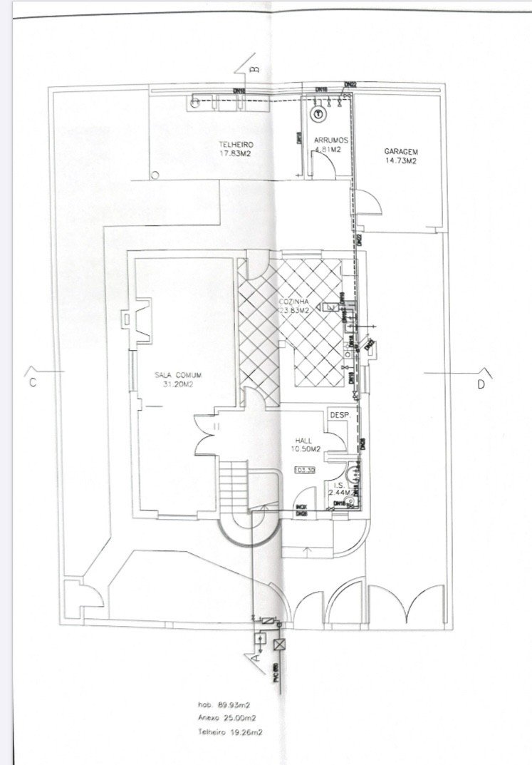
🏡 Unfinished Rustic House — Unique Opportunity in a Quiet and Prestigious Neighborhood. We present this magnificent detached house, in a rustic style, with 218 m² of built area, located on a plot of approximately 300 m². A project designed for those who value the comfort, space, and charm of traditional homes — lacking only the finishing touches to become the perfect home. 🏠 Main Features • Built area: 218 m² • Land: 300 m² (approx.) • Two floors • Rustic style, with wood and worked marble finishes Ground Floor Upon entering, you are greeted by a spacious hall, with an ideal area for an internal garden, creating a cozy environment full of natural light. The living and dining room, measuring 31.2 m², is perfect for family moments, highlighting the fireplace in worked marble with a heat recovery system, which reinforces the rustic style and comfort on cold days. The spacious and fully equipped kitchen was designed for family gatherings. It features custom-made solid wood cabinets, abundant storage space, and a functional and elegant layout. On the same floor, there is also a pantry and a guest bathroom. — Upper Floor The first floor offers 4 spacious bedrooms, 3 of which have built-in wardrobes. The master suite is a true haven, equipped with a shower base and quality finishes. The shared bathroom includes a bathtub and a large window, ensuring natural ventilation and abundant light — an ideal solution to avoid dampness and condensation. All windows have double glazing and blinds, providing thermal and acoustic comfort. — Exterior The property features a laundry room, garage, and even space prepared for an additional outdoor bathroom, offering versatility to complete the project to your liking. — 🌳 Location Situated in a quiet, safe, and prestigious neighborhood, this detached house combines tranquility and privacy with excellent sun exposure and great access. — ✨ Ideal for those seeking a home with soul, space, and potential to personalize it to their style. Transform this unfinished rustic house into the home of your dreams!
Ref: 129538
Energy performance diagnosis
Similar properties

€1,130,000
