
€1,499,000
Farm in Luz de Tavira e Santo Estêvão
- 6 bedrooms
- 418 m² gross area
- 15,000 m² of land


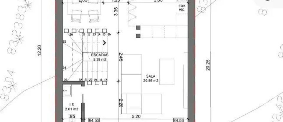
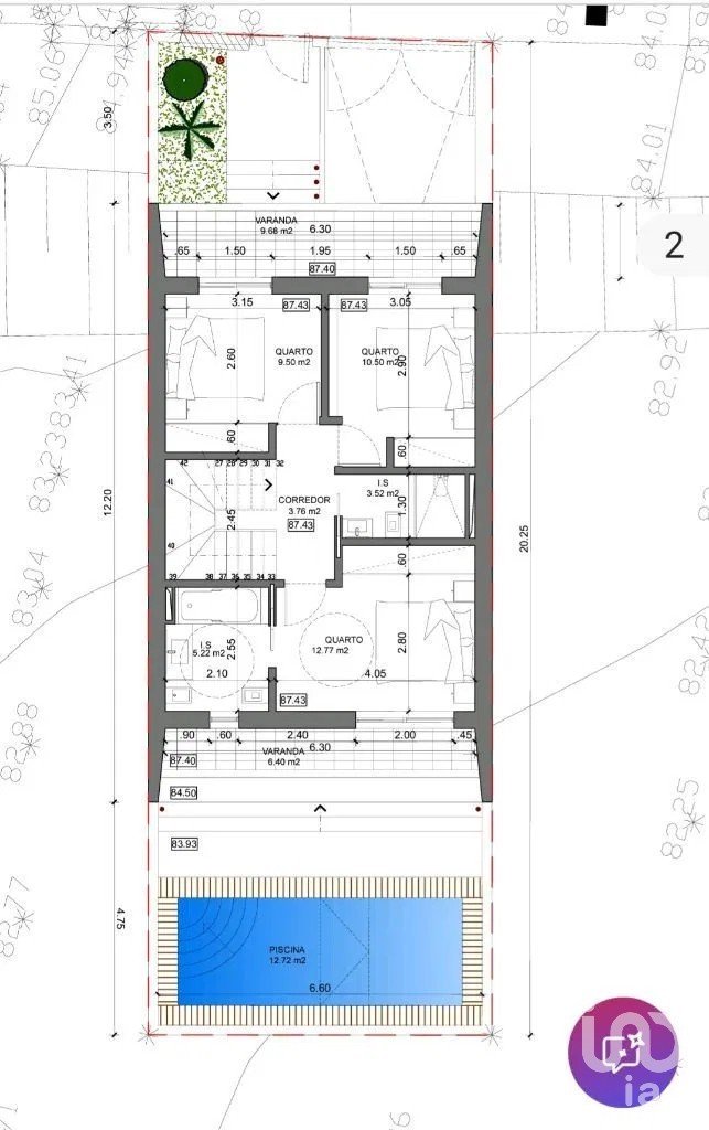
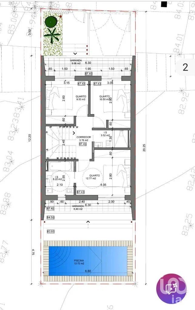
3 bedroom house with SEA VIEW, SOLD FINISHED. The house is contemporary and has modern finishes and details that make all the difference. Property Features: Large rooms with lots of light: On the ground floor: Modern open-space kitchen with large living room, whose windows guarantee natural light throughout the day, dining room and a bathroom. Outside there is a private space with a swimming pool, perfect for gathering friends and family during leisure moments. Large garage for greater convenience. 1st Floor: Three bedrooms, one of which is a suite, two bathrooms with high quality finishes, providing privacy and tranquility. Each room has been carefully planned to create a relaxing and welcoming space. On the top floor you have access to a terrace with a privileged view over the Oliva development and the surrounding green blocks, ideal for enjoying the sunset. The house is expected to be completed in October 2025. It is sold fully finished. The finishes are top quality: fully equipped kitchen, pre-installation of air conditioning and solar panels. Located in a quiet area, with easy access to schools, shops, services and main roads. Ideal for families and professionals looking for quality of life in the Algarve. Santo Estevão is a transitional area between the sea and the countryside that promises a unique lifestyle, the beach is just a 10-minute drive away. Come and see this beautiful house, where charm and quality are unique and you can purchase your new residence!
Ref: 142194
Energy performance diagnosis
Similar properties

€1,499,000


€575,000


€540,000


€945,000
