House T3 in Lamas e Cercal of 150 m²
About this house/villa of 3 bedrooms at Lamas e Cercal, Lamas e Cercal
This fantastic 150-square-meter house is ideally located in a residential area close to a kindergarten/elementary school, cafes, grocery stores, and gas stations.
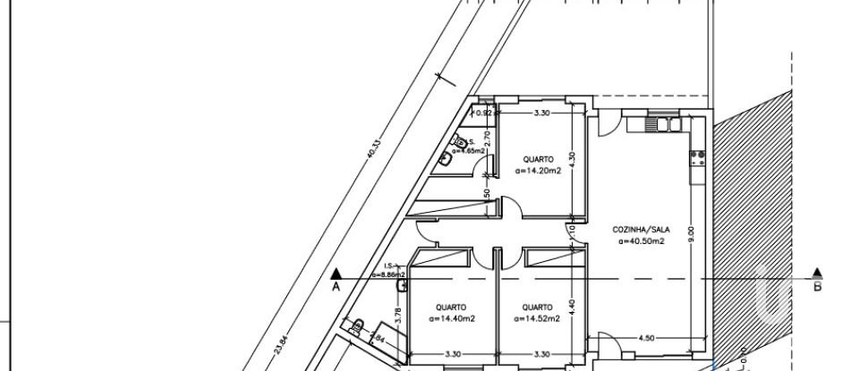
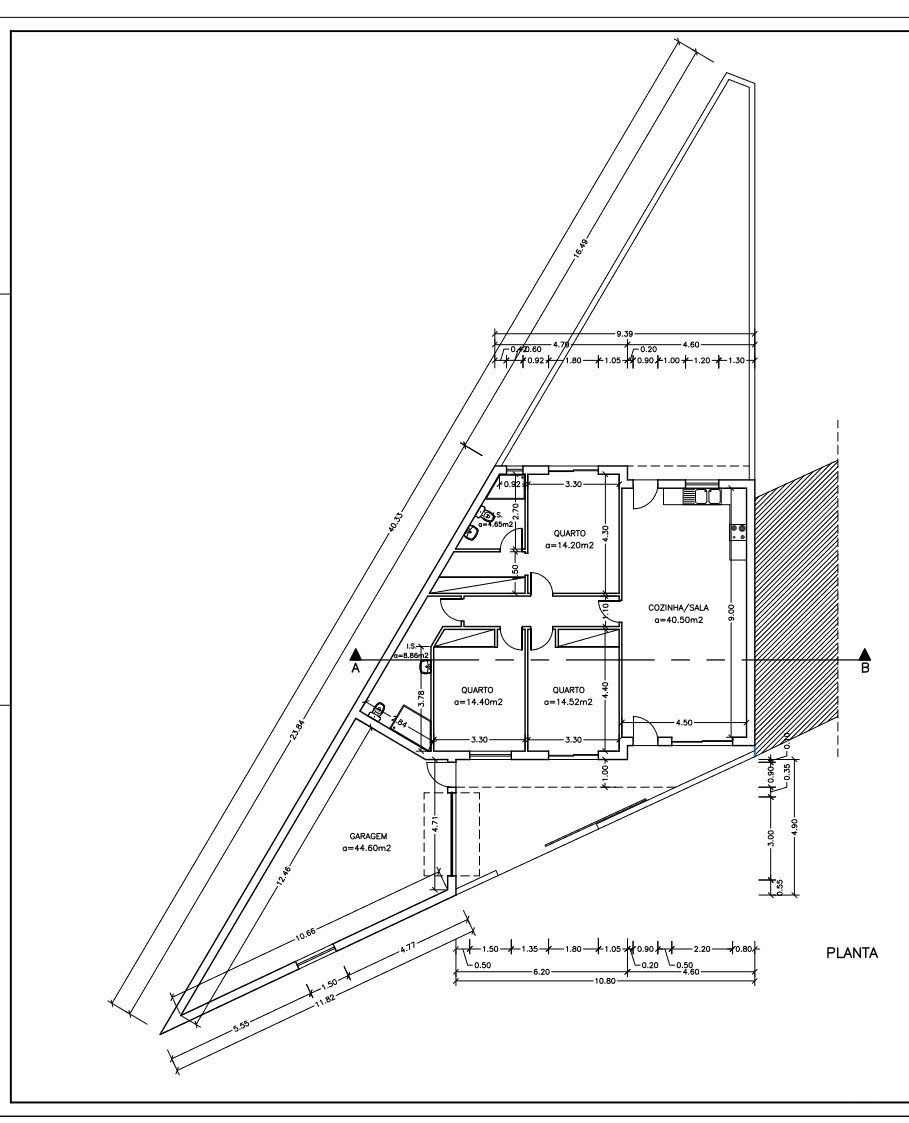
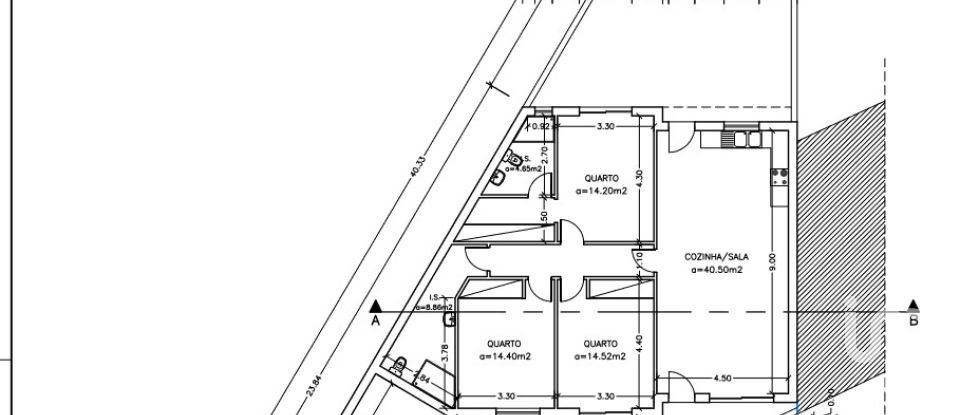
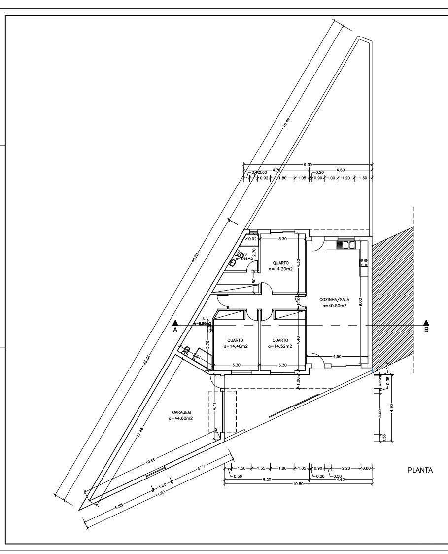
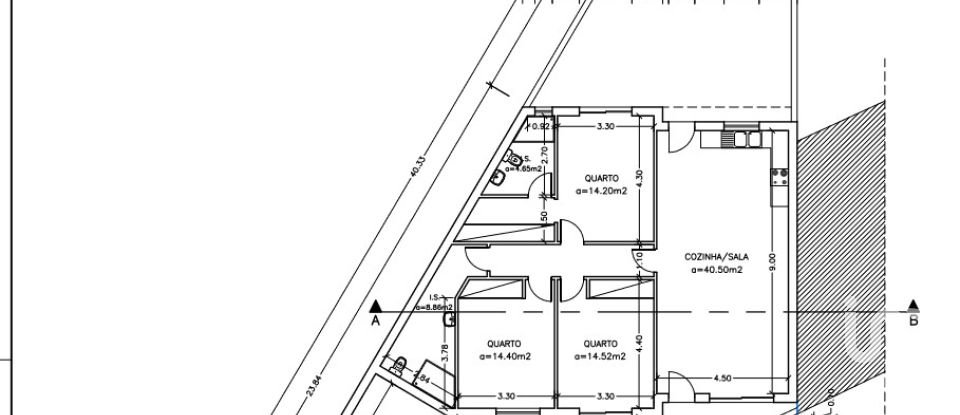
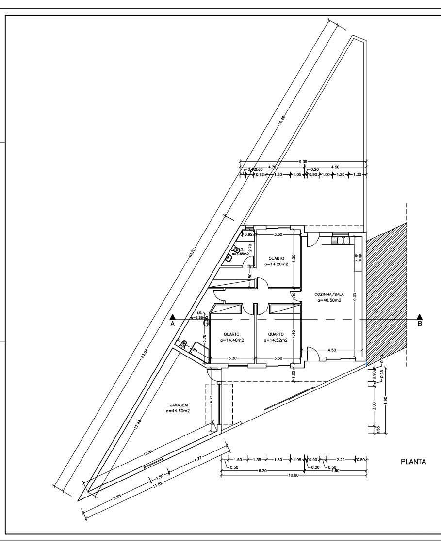
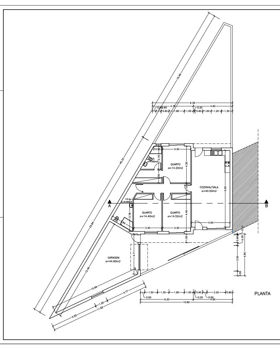
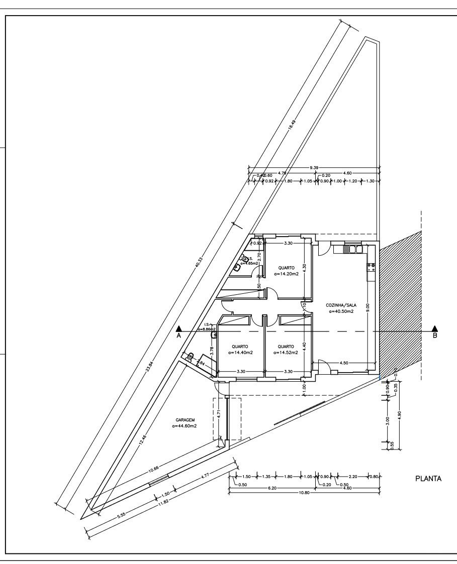
It is a single-story house with 3 bedrooms.
All architectural/specialty design costs and municipal permits are included. Turnkey delivery upon agreement!
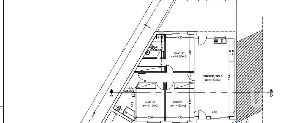
Comprising:
- Open-plan kitchen and living room (40.50 square meters);
- 1 bathroom (8.86 square meters);
- 2 bedrooms with built-in closets (14.40 and 14.52 square meters);
- 1 suite with walk-in closet and private bathroom (28.02 square meters);
- Very spacious garage (44.60 square meters).
The exterior features a fully paved patio and barbecue area, with the option of building a pool (optional). The property will be fully walled.
It faces East/South/West, thus enjoying plenty of sun exposure.
Features:
- PVC windows with double glazing and thermal break;
- Electric blinds;
- Floating floor;
- Solar panels;
- Air conditioning preheating system without appliances;
- Unequipped kitchen, allowing you to choose your appliances.
A 2-minute drive from Cadaval, the town center, where you can find other essential shops and services, is also 10 minutes away. Access to the A8 highway is also 20-30 minutes away, allowing you to enjoy several beaches on the Silver Coast. You can also take the A1 highway, reaching Lisbon in 45-50 minutes.
Contact me! I'd be happy to schedule your visit!
Equipments
Outdoor
Other
This house is located in Lamas e Cercal.







