Lodge T3 in Famalicão of 328 m²
Features
About this house/villa of 3 bedrooms at Famalicão, Famalicão
INDEPENDENT HOUSE WITH SEA VIEW, NAZARÉ
THE LOCALIZATION:
Located 4km from the sea line, 170 m above sea level, on a 1500m2 plot, it has a very privileged location, as it is located within the urban limit defined by the PDM of NAZARÉ, in the village of RAPOSOS. Lots of privacy and a stunning view of the green fields that stretch to the infinite blue of the NAZARÉ sea.
THE HOUSE:
Project in MODERN style with straight lines that favors natural light and the fluid relationship between the outdoor space with a vast garden, swimming pool, terraces, and porches and the indoor space with maximum comfort and privacy, resting and social areas, a magnificent office/library for work and study, and a spacious underground basement with space for a wine cellar, as well as space for several cars and a warehouse.
This house will be delivered COMPLETELY FINISHED: including the garden, fence, and the exterior street with public walkway, and all infrastructures.
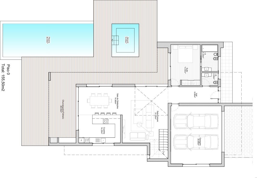
*SEE PLANTS*
FLOOR -1:
Garage;
General collection;
Storage;
Technical installations;
WC.
FLOOR 0:
Equipped kitchen;
Living room;
Meal room;
Circulation hall;
Dispensation;
Social bathroom;
Bedroom 1;
Bedroom 2 with bathroom and closet.
FLOOR 1:
Master Suite with closet and bathroom with bathtub and shower;
Balcony;
Office and Living Room;
Two magnificent terraces overlooking the sea.
EXTERIOR:
Garden;
Pool;
Front porch;
deck;
Barbecue;
TECHNICAL EQUIPMENT:
Underfloor heating;
Pre-installation of air conditioning;
Pre-installation of solar panels;
Cistern for using rainwater;
PROJECT READY TO PROCEED TO CONSTRUCTION
Equipments
Outdoor
Other
This house is located in Famalicão.



