House T3 in Cadaval e Pêro Moniz of 160 m²
About this house/villa of 3 bedrooms at Cadaval e Pêro Moniz, Cadaval e Pêro Moniz
Come and discover this fantastic plot of land located very close to the access to the highway A8, allowing you to quickly travel to the capital or to the fantastic beaches of the Silver Coast. You can also enjoy the wonderful view of the mountain "Serra do Montejunto."
The purchase includes the land with the construction of a single-storey 3 bedroom house. Turnkey! However, this project can be adapted to your ideas or budget.
Construction will begin after the reservation and approval of the city hall project, with delivery expected within 12 months.
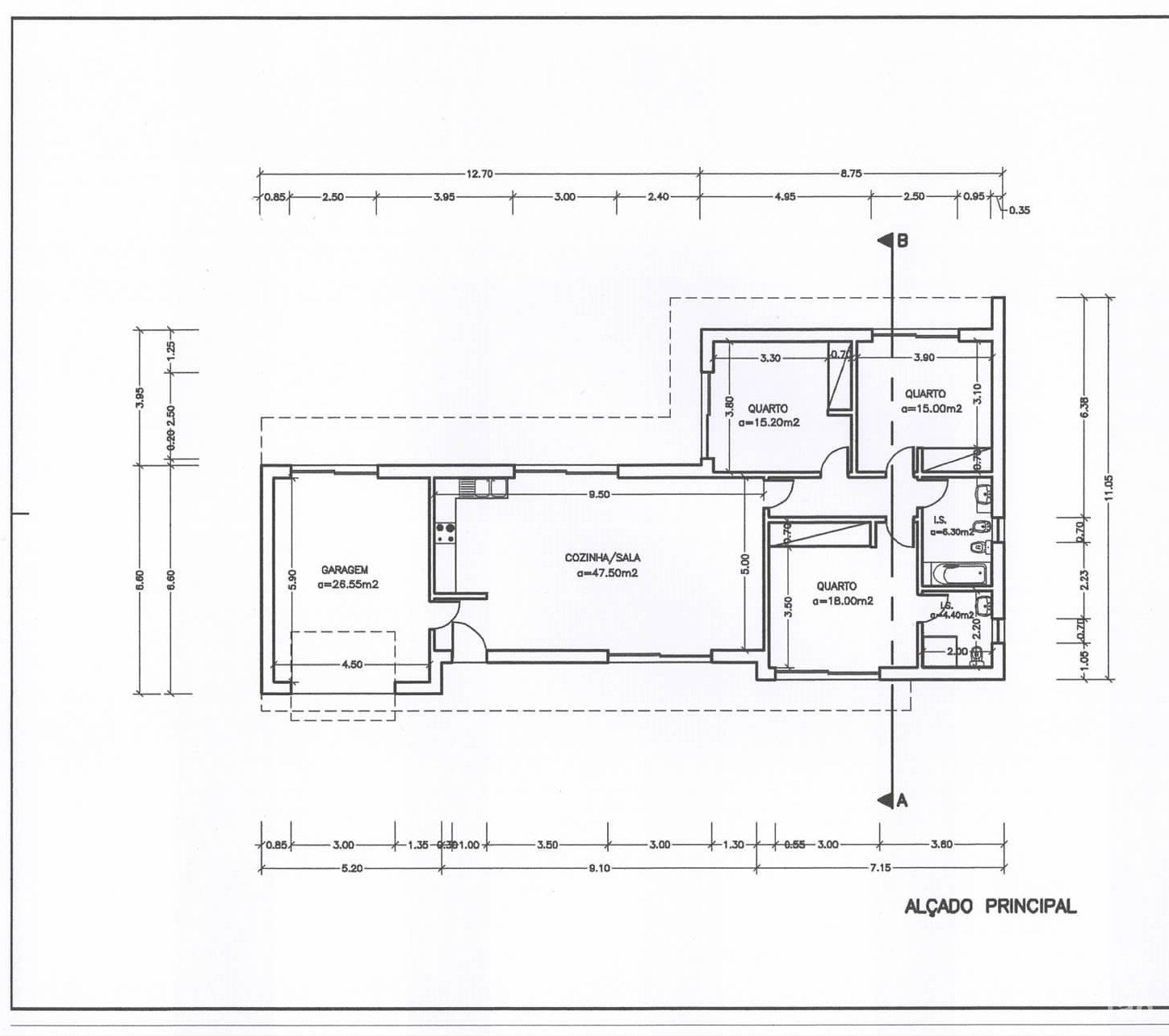
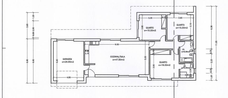
It consists of: - Open space living room and kitchen (47.50m2);
- 2 bedrooms with built-in wardrobes (15m2/each);
- 1 Suite Bedroom with built-in wardrobe (22.40m2);
- Social bathroom (6.30m2);
- Garage (28.55m2) for 2 vehicles.
The features are: - PVC windows with double glazing and thermal break;
- Floating floor;
- Electric blinds;
- Solar panels;
- Preheating of air conditioning without appliances;
- Unequipped kitchen;
- Swimming pool (optional).
Plot Area: approximately 700 m2 It is a 5-minute drive from Vila do Cadaval where you can find banks, pharmacies, schools, gas stations and all types of shops and services.
It is also: 15 minutes from Budha Eden Garden;
10 minutes from the A8;
20 minutes from Torres Vedras;
25 minutes from Caldas da Rainha;
30 minutes from the A1;
50 minutes from Lisbon;
Close to the beaches of the West: Peniche, Baleal, Areia Branca, Foz do Arelho, Santa Cruz.
Book your visit now and start planning your dream home here!
Equipments
Outdoor
Other
This house is located in Cadaval e Pêro Moniz.





