House T2 in Caldas da Rainha - Nossa Senhora do Pópulo, Coto e São Gregório of 166 m²
Features
About this house/villa of 2 bedrooms at "Caldas da Rainha - Nossa Senhora do Pópulo, São Gregório
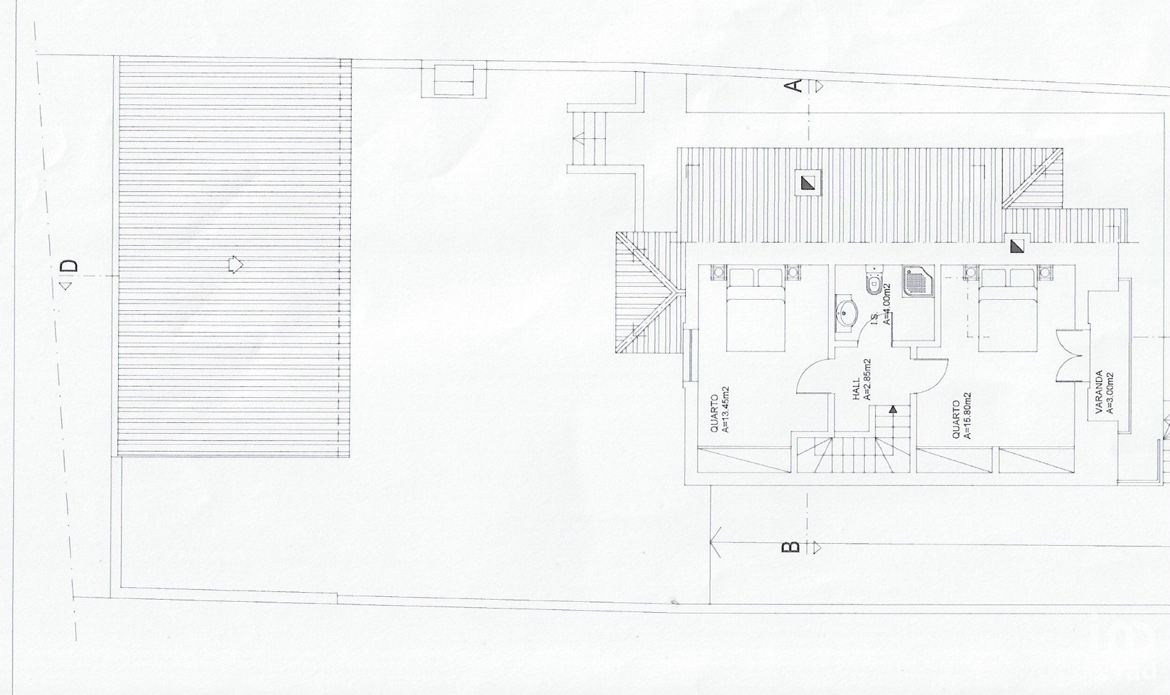
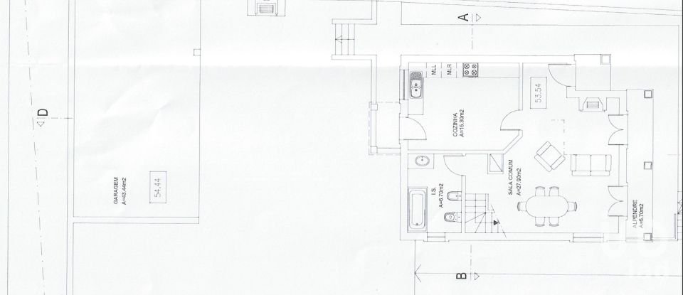
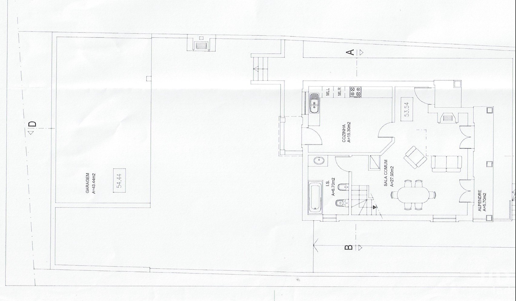
Moradia T2 renovada em 2024, com Anexo de 50m², 2 casas de banho, ampla sala com lareira, cozinha equipada e aquecimento central.
Com uma área de construção de 225m² e terreno generoso de 900m², esta propriedade oferece espaço e potencial para quem procura qualidade de vida e possibilidades de aproveitamento exterior.
Localizada em São Gregório, Caldas da Rainha. Conta com dois pisos e anexo independente para garagem e arrumos, oferecendo conforto e funcionalidade para o dia a dia.
Situada numa zona tranquila, com fácil acesso a transporte público, escola e parque infantil. Apenas 15 minutos do centro de Caldas da Rainha e 25 minutos das belas praias do Oeste.
Ideal para quem deseja viver perto da natureza, mas com a comodidade de estar próximo da cidade. Venha conhecer o seu próximo lar! Agende uma visita.
Parcerias, partilhamos 50/50, com todas as empresas!
Equipments
Indoor
Outdoor
Other
Energy efficiency
Energy consumption :
This house is located in "Caldas da Rainha - Nossa Senhora do Pópulo.







