Apartment T3 in Antas e Abade de Vermoim of 125 m²
About this apartment of 3 bedrooms at Antas e Abade de Vermoim, Antas e Abade de Vermoim
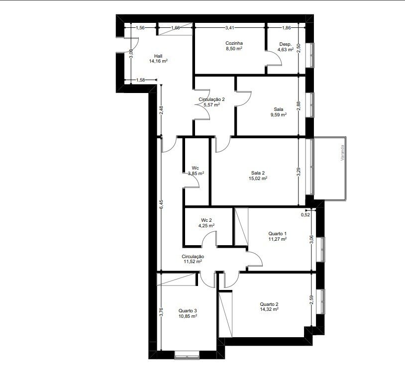
Apartamento T3 em Antas - Vila Nova de Famalicão
com 125.00 m2 de área Bruta
Localizado Próximo ao Centro de Famalicão.
* Com 2 Frentes - Em Excelentes Condições.
Onde Proporciona um Ambiente Bastante Acolhedor.
Com Vistas Desafogadas e uma Excelente Exposição solar, sendo que Desfrutará de uma ótima luz Natural ao longo do dia.
Também, a Localização Privilegiada deste Apartamento Garante bons Acessos bem como todos os serviços ao Redor.
Trata-se de um 4º Andar Com 2 Elevadores.
Prédio com R/C - 1º-2º- 3º- 4º e 5º Andar
Bem Como Muitos Estacionamentos no Exterior.
Neste Apartamento vai Encontrar:
Um hall de Entrada Bastante espaçoso que Permite o Acesso á Cozinha Totalmente Equipada com Despensa, Com excelentes Vistas.
De seguida tem uma zona de Circulação com acesso a Uma Sala com cerca de 10 m2 á sua Esquerda.
na mesma Ligação encontrará outra Sala com 15 m2
( POSSIBLIDADE de Converter em uma só SALA )
Sala com Varanda, ideal para momentos de Convívio com Familiares e amigos.
( Boa Exposição Solar e Vistas Desafogadas) com Lareira
De seguida encontra o Corredor de Circulação com cerca de 9 metros.
Entrando no Corredor á sua Esquerda Encontra uma Casa de Banho de Serviço.
Continuando a Circular no Corredor, mais ao Fundo vai encontrar a Zona dos Quartos.
Entre os 3 Quartos terá uma Casa de Banho Completa.
De Salientar:
Caixilharia em alumínio Vidro Duplo, Video Porteiro sendo que também oferece bastante Privacidade e conforto para toda a família.
Água com ligação á rede Publica.
Pré Instalação de Aquecimento Central
Aqui Ainda vai Encontrar uma Lugar de GARAGEM por Baixo do Prédio com Portão Automatizado
Fenomenal Oportunidlade de adquirir este Magnífico Apartamento, que oferece o Equilíbrio Perfeito entre Tranquilidade e estilo de vida Urbano.
Se procura um imóvel com estas Características, não hesite em Contactar-me.
Se tenciona Vender ou fazer Permuta da sua casa, posso igualmente ajudar, dando-lhe uma estimativa de valor e Divulgando o seu imóvel em mais de 200 portais imobiliários em todo o mundo de forma Gratuita.
Se é consultor imobiliário, na Iad Partilhamos Negócios com todas as imobiliárias, com Licença AMI, num sistema de 50%.
Equipments
Other
Energy efficiency
Energy consumption :
This apartment is located at Antas e Abade de Vermoim.


