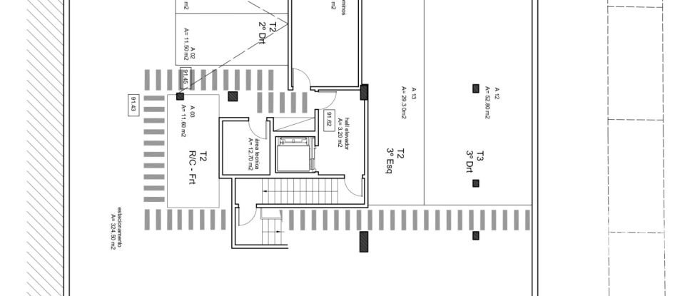
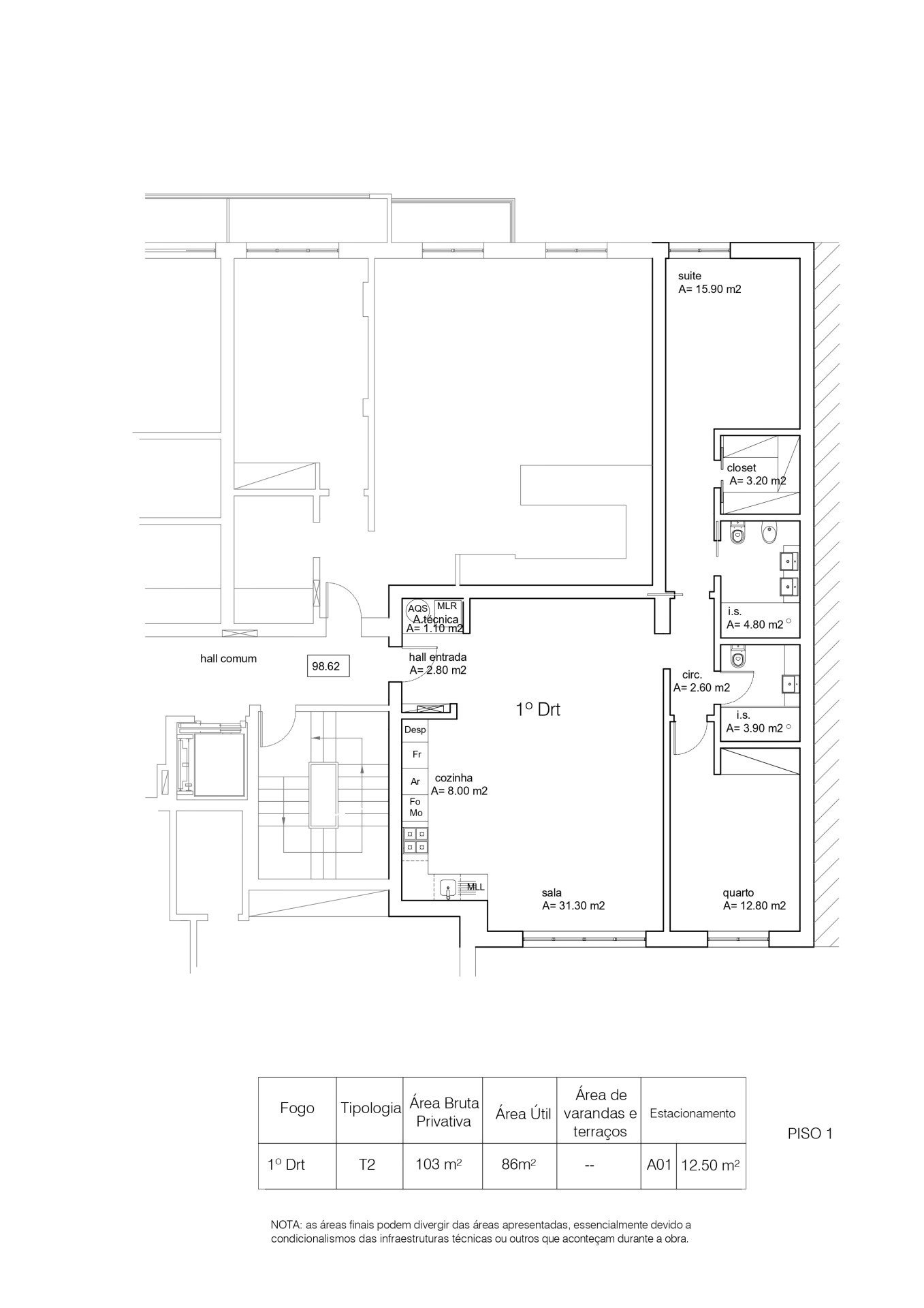
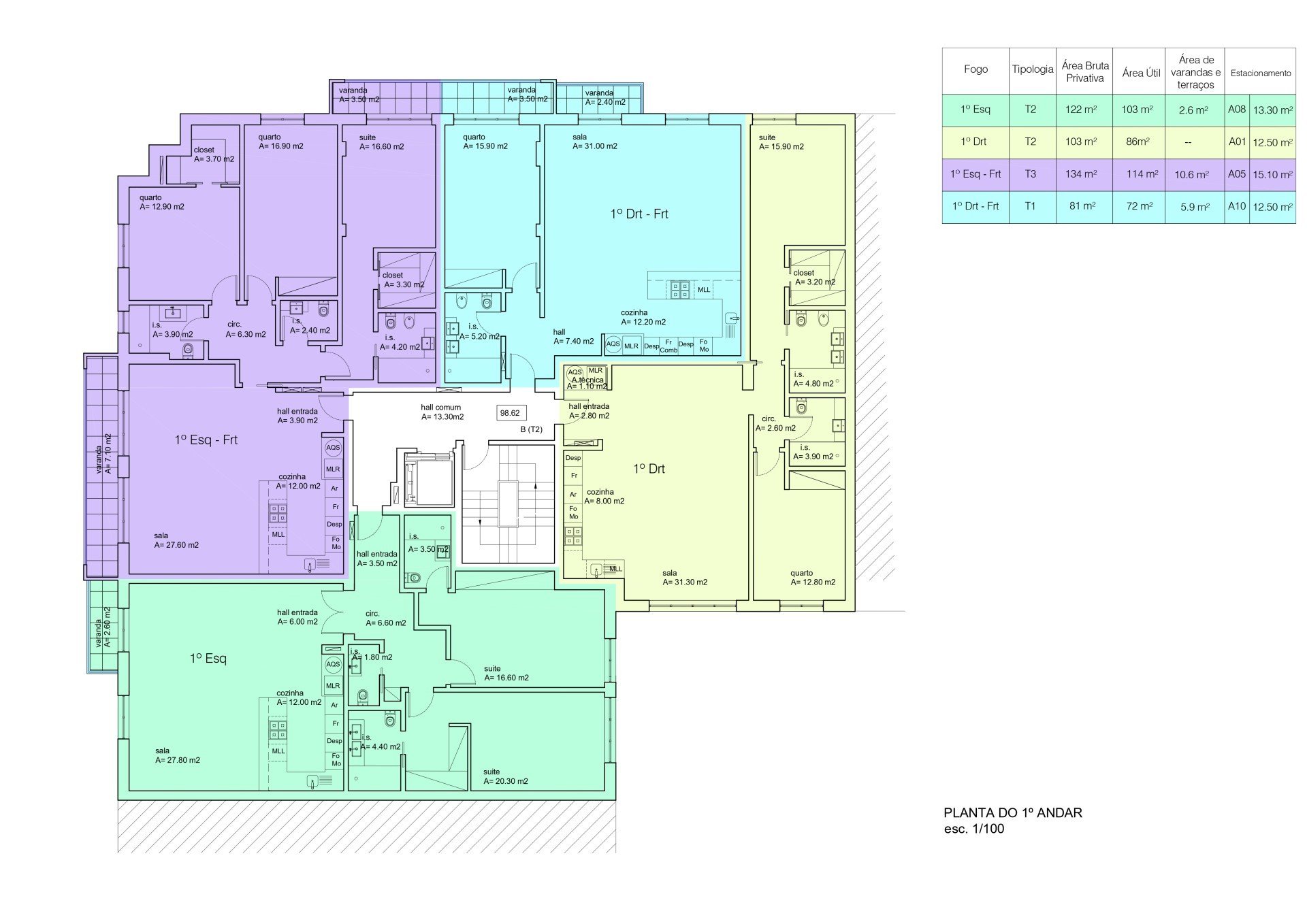
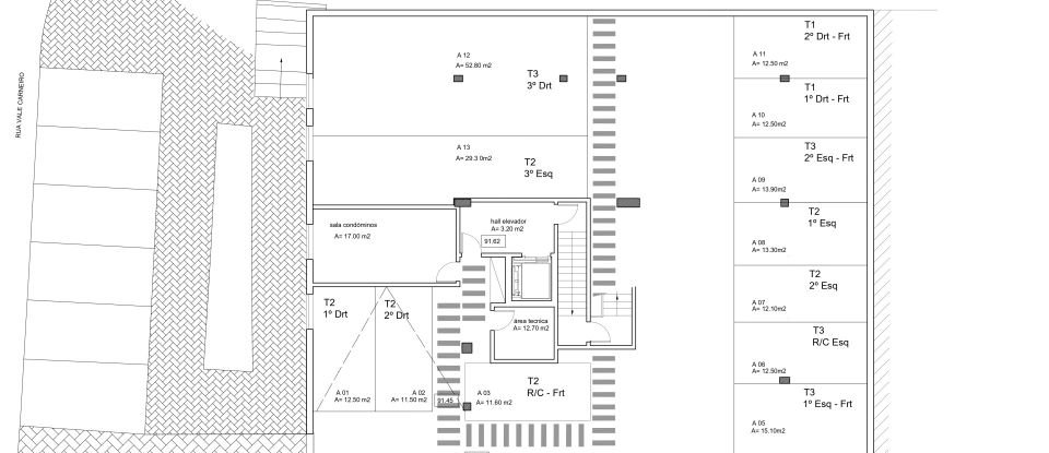
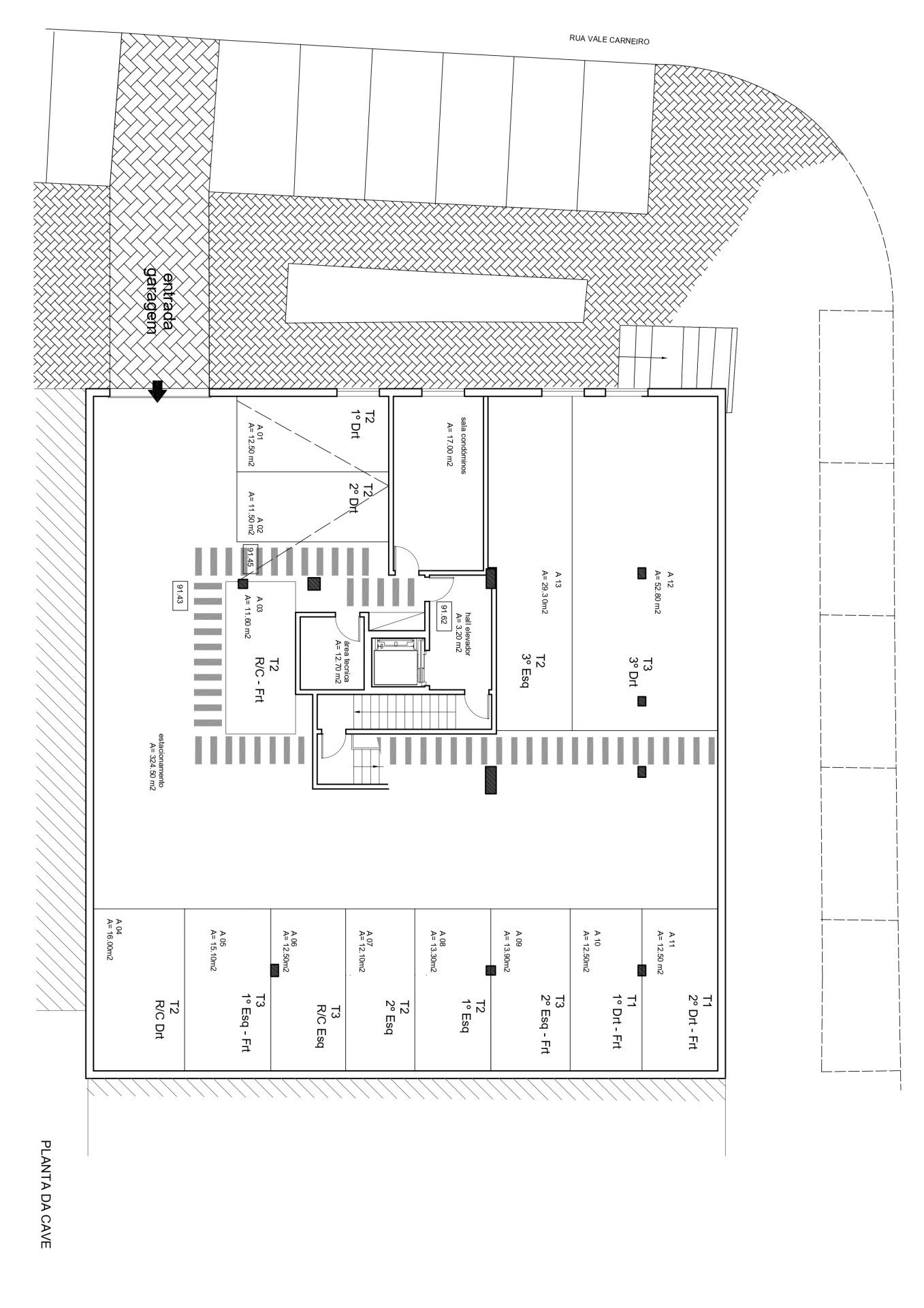
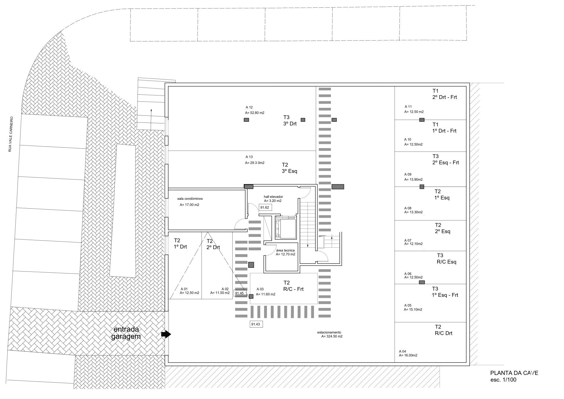
Apartment T2 in Ericeira of 103 m²
About this apartment of 2 bedrooms at Ericeira, Ericeira
2 bedroom flat in Ericeira in a prestigious building!
‘Ericeira: Surf Paradise and Tradition by the Sea’
Enjoy the serenity and beauty of Ericeira with this stunning flat close to the town centre.
Located in an urbanisation close to shops, beaches, bars, restaurants this property offers a truly exceptional living experience.
Flat features:
- Type: T2 - 1st floor
- Gross Area: 103 m2
- 1 parking space
Internal Distribution:
1. entrance: 2.80m2
2. bathroom: 3.90 m2
3. suite + bathroom: 19.10 m2
4. suite + bathroom: 26.20 m2
5. kitchen/lounge: 39.30m2
6. Car park: 12.50 m2
MAP OF FINISHES
Hall
- High security entrance door with digit code at the entrance to the flats;
- Colour and IP video intercom system;
- Knx domo:ca system for lighting and blinds;
- Walls covered in projected stucco and painted in :nta ace:nada
white colour;
- White lacquered skirting board, finished with matt varnish;
- Floating quickstep floor.
- Indirect ceiling light and square spotlights in brushed stainless steel;
Living room
- Walls covered in projected stucco and painted in white;
- White lacquered skirting board, matt varnish finish;
- False ceiling in plasterboard with indirect light moulding and square brushed stainless steel spotlights.
in brushed stainless steel;
- Quickstep floating floor.
- Daikin air conditioning;
- Surround sound system with digital remote control and Bluetooth;
Bedrooms
- Walls covered in projected stucco and painted in :nta ace:nada in white;
- White lacquered skirting board, matt varnish finish;
- Melanin wardrobe (interior Cancun line);
- White lacquered wooden frames, doors and trim;
- Quickstep floating floor.
- Daikin air conditioning;
- Surround sound system with digital remote control and Bluetooth;
Sanitary installations
- Ceramic flooring;
- Walls covered in ceramic tiles;
- False plasterboard ceiling with built-in lighting and painted in
white fungicide satin paint;
- Suspended unit with pedestal washbasin;
- Mirror with lighting;
- Wall-hung WC;
- Chrome single lever taps;
- White lacquered wooden frames, doors and fittings;
- Black acrylic resin shower tray with glass enclosure;
- Underfloor heating with digital control.
- Surround sound system with digital control and Bluetooth;
Kitchen
- High-gloss white lacquered furniture
- Fully equipped kitchen with Whirlpool built-in appliances;
- Elica ceiling extractor fan.
- Worktop covered in Silestone;
- LED lighting in the kitchen units and worktop.
- Surround sound system with digital remote control and Bluetooth;
Balconies
- Ceramic deck flooring;
- Outdoor lighting;
- Power socket.
General Finishes
- Central vacuum system;
- Telephone distribution system (sockets in the hall, living room and bedrooms);
- ITED III (telecommunications and fibre optic);
- LED lighting;
- Electric shutters;
- Interior doors 2.20 metres high, lacquered in white;
- Schindler lift with garage access code;
- CIN brand paint;
- Thermal cut window frames and thermal double glazing;
- Solar panels for water heating;
- Thermal and acoustic insulation;
- Minimum energy cer:fication: A;
- Box garages or car parking;
- Automatic gates;
- Garden.
Equipments
Other
Energy efficiency
Energy consumption :
This apartment is located at Ericeira.













