Terreno em São Marcos da Serra de 28 440 m²
Sobre este terreno em São Marcos da Serra, São Marcos da Serra
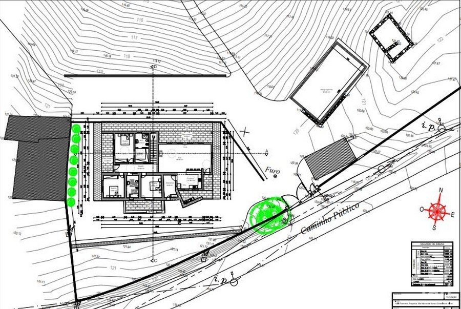
Terreno de 28.440 m² com uma ruina geminada de um lado, com projeto de construção de moradia de 292 m² de Implantação, em fase de aprovação.
Localizado no Vale Pereirinho, da freguesia de São Marcos da Serra, a apenas 25 minutos das lindissimas praias de Albufeira, 30 minutos da mitica cidade de Silves e 45 minutos do Aeroporto de Faro.
O terreno tem algum declive, o que lhe proporciona um charme bucólico e vistas maravilhosas para a montanha, com boa disposição para construção de uma moradia de 3 quartos e cave, na parte superior do mesmo.
Aproveitando o lote de forma arrojada e criativa, foram feitas rampas e patamares, acompanhando o modelo arquitetónico do espaço.
Todas as infraestruturas de rede de agua e luz já estão preparadas e o projeto encontra-se na Câmara para aprovação.
Existe um furo e barragem, pelo que tem agua com abundância.
A zona é muito sossegada de envolvência de espaços verdes.
São Marcos da Serra é uma freguesia portuguesa do município de Silves, no Algarve, com 154,90 km² de área e 1 352 habitantes (2011). A sua densidade populacional é de 8,7 hab/km².
Tendo como Patrimonio :
Igreja Paroquial de São Marcos
Casa com chaminé algarvia do século XVII
Local das aparições de Nossa Senhora da Bondade
Palácio do Trigo - Edifício histórico e um restaurante na localidade
A iad é uma sociedade de mediação imobiliária que não tem lojas físicas, o que me permite ir ao seu encontro e prestar-lhe o melhor serviço onde quer que esteja, com base no profissionalismo e na transparência.
Enquanto consultor imobiliário independente, tenho autonomia para gerir os meus horários e para negociar consigo a minha comissão, garantindo-lhe um acompanhamento personalizado em todas as etapas do processo e um serviço de qualidade ao melhor preço.
Na IAD damos um acompanhamento personalizado aos nossos clientes durante todo o processo de aquisição ou venda de um imóvel.
Se necessita de financiamento, temos protocolos com financeiras que poderão encontrar a solução mais económica para si.
Equipamentos
Exterior
Este terreno está localizada em São Marcos da Serra.




