Terreno urbano em Guarda de 417 m²
Sobre este terreno em Guarda, Guarda
LOTE DE TERRENO URBANO PARA CONSTRUÇÃO MORADIA ISOLADA, GUARDA
Lote de terreno para construção de moradia T3 com projeto em fase de elaboração, localizada em zona tranquila, a 3 minutos do hospital e centro da cidade da Guarda.
Imóvel em projeto inserido num terreno de 417 m², composto por 2 pisos, dispõe de uma ótima exposição solar.
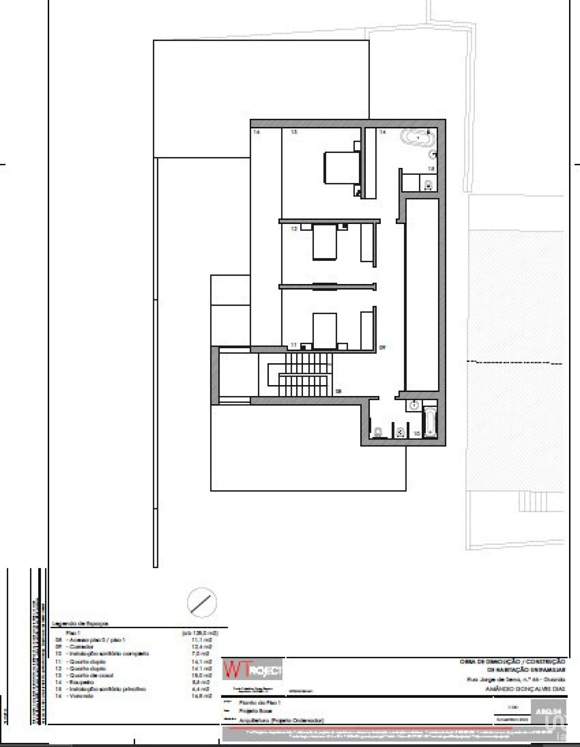
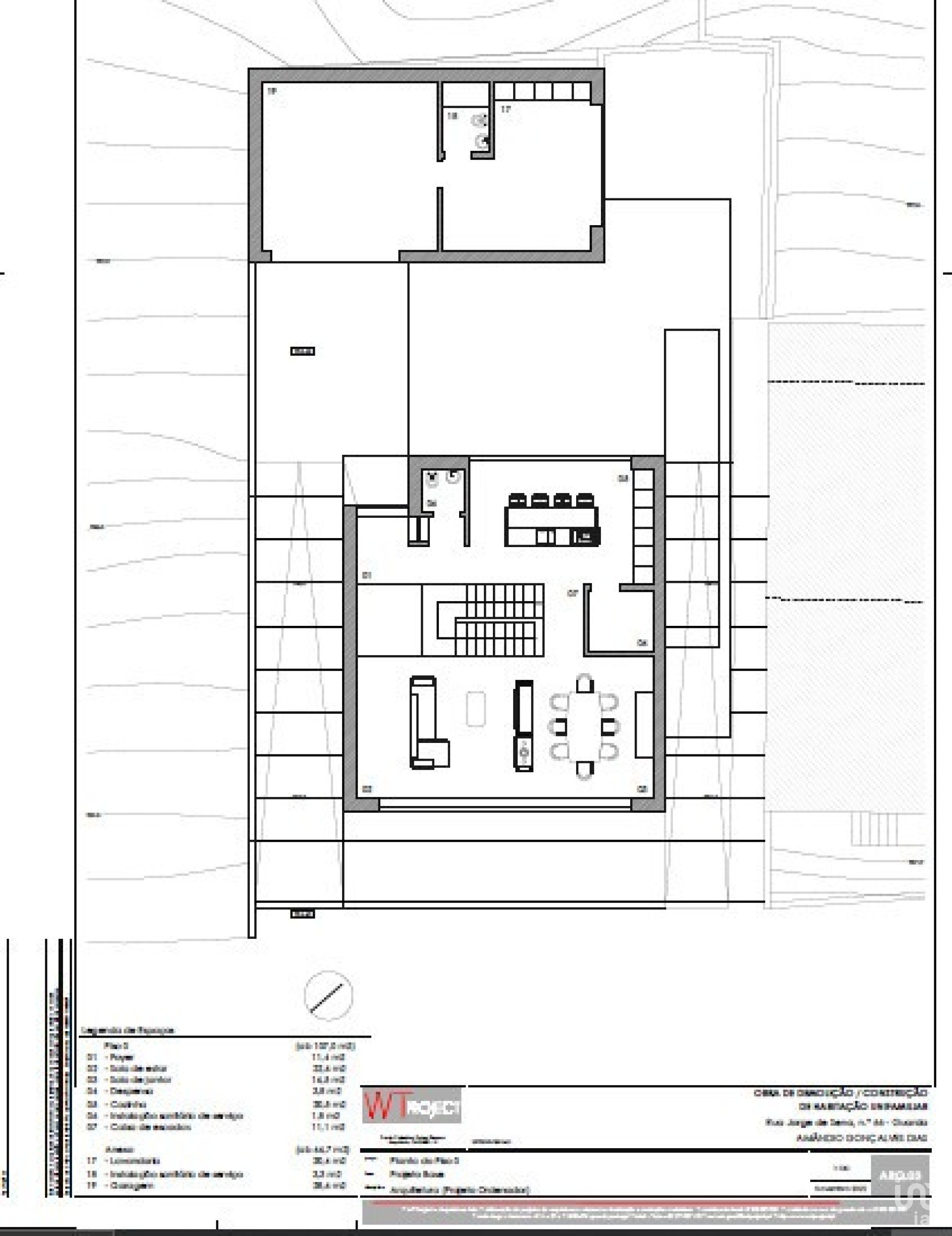
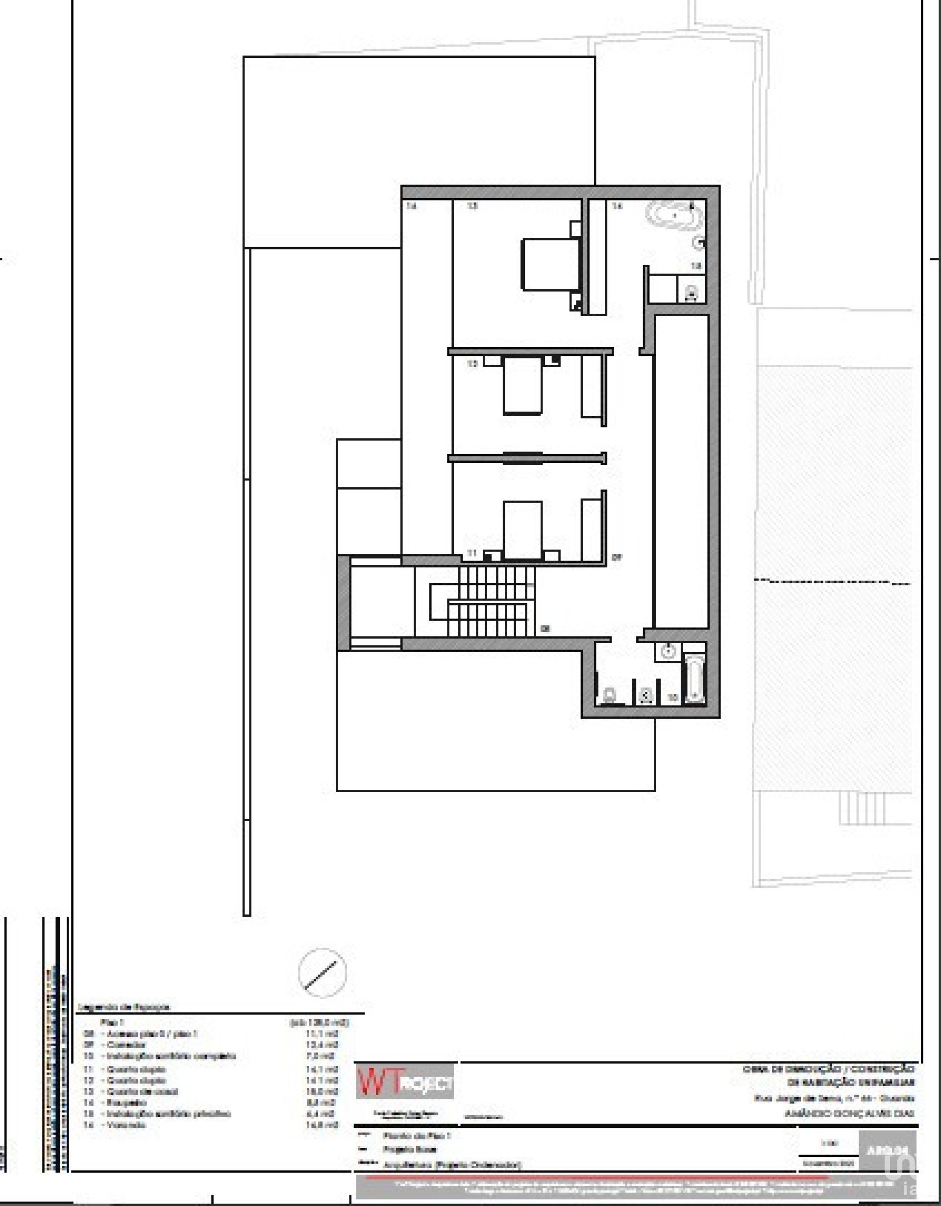
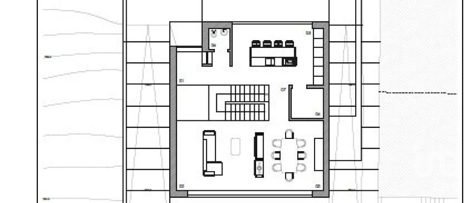
Obra de Demolição / Construção de Habitação Unifamiliar
Projeto de arquitetura já se encontra em fase final de conclusão.
NOTA:
O projeto elaborado será meramente indicativo, podendo ser alterado ou substituído, pelo interessado.
PISO 0: Hall de entrada, sala de estar, sala de jantar, cozinha, despensa e uma instalação sanitária.
PISO 1: área de circulação, 2 quartos duplos, uma suite com closet, w.c. completo e varanda com acesso a todos os quartos.
ANEXOS:
Lavandaria
Instalação sanitária de serviço
Garagem
No exterior, poderão disfrutar de um agradável logradouro com zona verde e lazer, ideal para receber os seus amigos e convidados.
Encontra-se perto de todo o tipo de serviços e comércios locais, nomeadamente escolas, transportes públicos e autoestradas. Inserido em zona residencial tranquila onde se vive e respira o campo.
Não hesite em conhecer e marque já a sua visita!
Excelente oportunidade de negócio!
Equipamentos
Exterior
Este terreno está localizada em Guarda.

