Terreno urbano em Viana do Castelo (Santa Maria Maior e Monserrate) e Meadela de 8 280 m²
Sobre este terreno em Viana do Castelo (Santa Maria Maior e Monserrate) e Meadela, Viana do Castelo (Santa Maria Maior e Monserrate) e Meadela
OPORTUNIDADE ÚNICA DE INVESTIMENTO
Meadela – Viana do Castelo
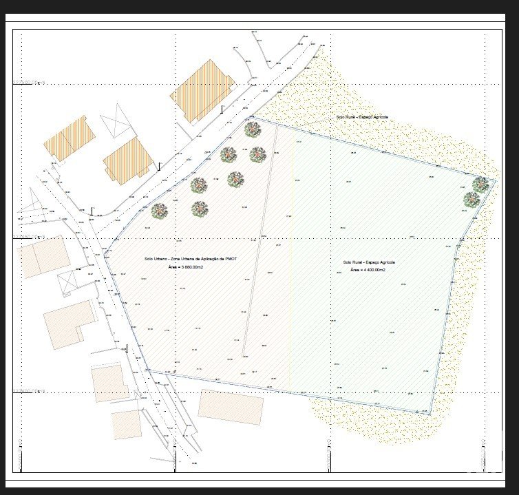
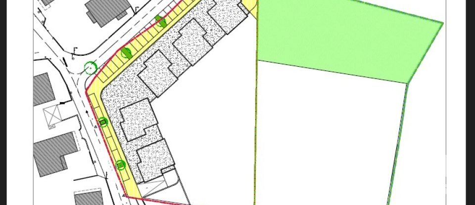
Apresentamos este fantástico terreno para construção com 8.280 m², PIP aprovado para construção de 20 a 24 moradias, localizado numa zona privilegiada da Meadela.
- Área total : 8.280 m²
- Área com viabilidade de construção : 3.880 m²
- Índice de construção : 40%
- Levantamento topográfico realizado
Este terreno é a escolha ideal para promotores imobiliários ou investidores que procuram um projeto sólido com grande potencial de valorização.
Localização estratégica :
- A poucos metros dos acessos à A28 e A27
- Supermercados e serviços nas proximidades
- Apenas 10 minutos do centro de Viana do Castelo
Ideal para construção de vivendas num ambiente calmo, com excelentes acessos e elevado potencial de procura.
Não perca esta excelente oportunidade de investimento!
Contacte-nos para mais informações e marque já a sua visita!
Equipamentos
Exterior
Outros
Este terreno está localizada em Viana do Castelo (Santa Maria Maior e Monserrate) e Meadela.









