Novo Favorito
Terreno urbano em Verdoejo de 2 200 m²
99 500 €
178 €/m²
2 200 m² de terreno
Sobre este terreno em Verdoejo, Verdoejo
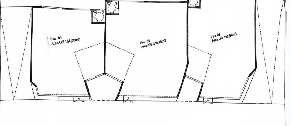
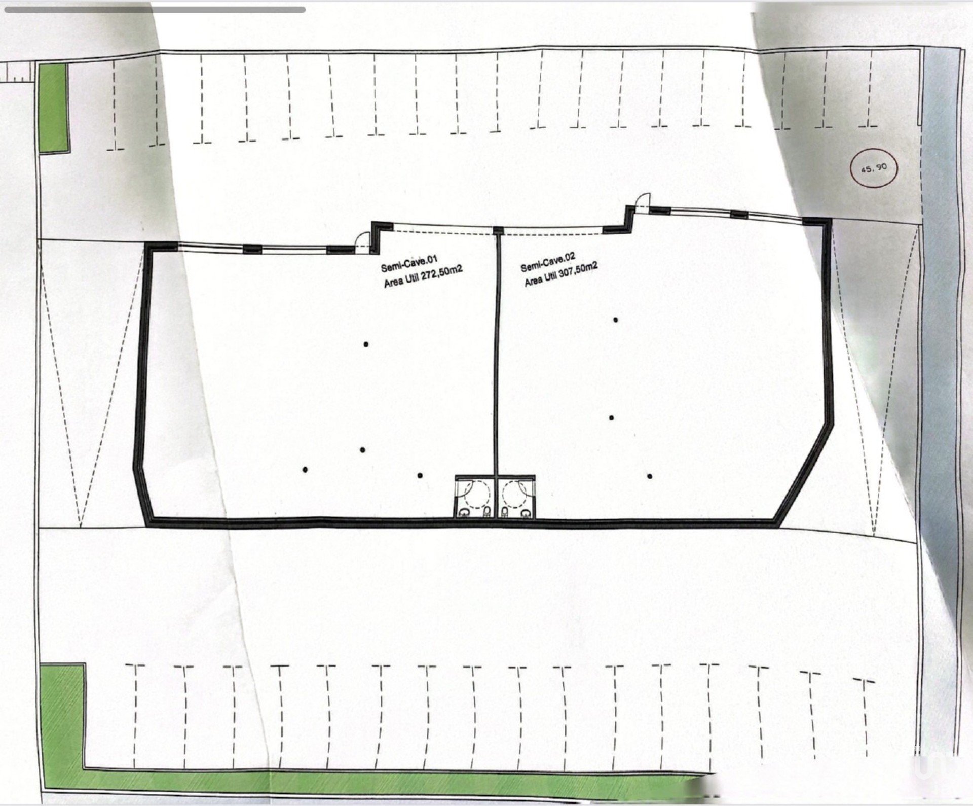
TERRENO PARA CONSTRUÇÃO PARA TRES SUPERFICIES COMERCIAIS
Terreno de construção face com a estrada nacional.
Situado na freguesia de Verdoejo, concelho de Valença. A propriedade tem acesso por uma entrada, estrada interior lateral ao terreno. Encontra-se numa zona com excelentes acessos e ótima exposição solar.
Propriedade com muito potencial devido à sua localização e zona de empresas.
Viabilidade para construção de pavilhões comerciais.
Existe o projeto dos pavilhões conforme imagens no anuncio pronto para aprovação.
Área Total: 2105m2
Necessita de crédito?
Acompanho no processo.
Agende sua visita.
Referência: 105853
Equipamentos
Exterior
Área do terreno : 2 200 m²
Outros
Ano de construção: 2023
Onde está localizado o imóvel?
Este terreno está localizada em Verdoejo.
Anúncio apresentado por
Propriedades semelhantes
Popover 1
Popover 2
Popover 3
Popover 4




