Terreno urbano em Recezinhos (São Mamede) de 3 070 m²
Sobre este terreno em Recezinhos (São Mamede), Recezinhos (São Mamede)
PROCURA UM LUGAR TRANQUILO PARA CONSTRUIR A SUA MORADIA
Não perca mais tempo, agende a sua visita a este fantástico terreno.
Situa-se numa zona muito calma com umas vistas fantásticas.
Sendo o sitio ideal para construir a sua Moradia de Sonho para si e para a sua Família.
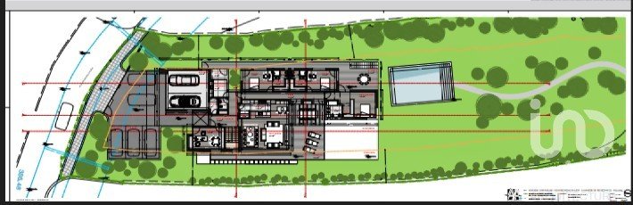
Terreno para construção com uma área de 3 070m2 em São Mamede de Recezinhos no concelho de Penafiel, já com um Projeto Aprovado para uma Moradia Unifamiliar.
Este terreno prima pela sua excelente localização tanta a nível de exposição solar como por estar situado apenas poucos minutos das cidades mais próximas tais como:
10 minutos de Penafiel
11 minutos do nó de acesso a A4
12 minutos de Lousada
15 minutos de Marco de Canaveses,
17 minutos de Paredes
e apenas 38 minutos do Porto
O projeto é de Moradia de rés do chão , sendo que na parte de trás fica uma sub cave, composta por um hall, arrumos, sala de cinema, sala de jogos, copa/adega, casa de banho, ginásio, casa das máquinas e ainda um excelente terraço junto à Piscina.
No rés do chão temos uma garagem para 2 carros, lavandaria, hall, casa de banho, cozinha em open space para a sala de jantar e de estar, 3 suites todos com acesso ao terraço que têm acesso de todas as divisões.
Possuí também um furo de água e já estão plantadas várias árvores de frutos.
Teremos muito gosto em apresentar este projeto único que poderá ser a sua casa de sonhos!
Ou se preferir também pode fazer as suas alterações ao projecto.
Mas se é construtor e procura um terreno para investir em construção de mais de que uma Moradia este terreno pode ser o que procura .
Para obter mais informações, marque já a sua visita
Equipamentos
Exterior
Este terreno está localizada em Recezinhos (São Mamede).



