Terreno urbano em Pinheiro da Bemposta, Travanca e Palmaz de 1 150 m²
Sobre este terreno em Rio Maior, Rio Maior
Terreno Urbano com Projeto Aprovado e Vista Panorâmica Excecional — Rio Maior (1.150 m²)
Preço: €160.000 · Área: 1.150 m² · €139/m² Estado: Terreno urbano com projeto arquitetónico aprovado (pronto a construir) Orientação: Nascente–Poente (sol o dia todo) · Infraestruturas próximas: Eletricidade e água potável
Preço negociável
Porque Este Terreno Se Destaca
Vista aberta e desobstruída sobre a serra e a cidade de Rio Maior — um panorama raro e permanente
Início sem burocracias: projeto moderno e funcional totalmente aprovado, pronto para construção imediata
Rua central e tranquila: privacidade sem comprometer o acesso a escolas, serviços e comodidades diárias
Sol desde o nascer até ao pôr-do-sol: interiores luminosos, eficientes e perfeitos para viver também no exterior
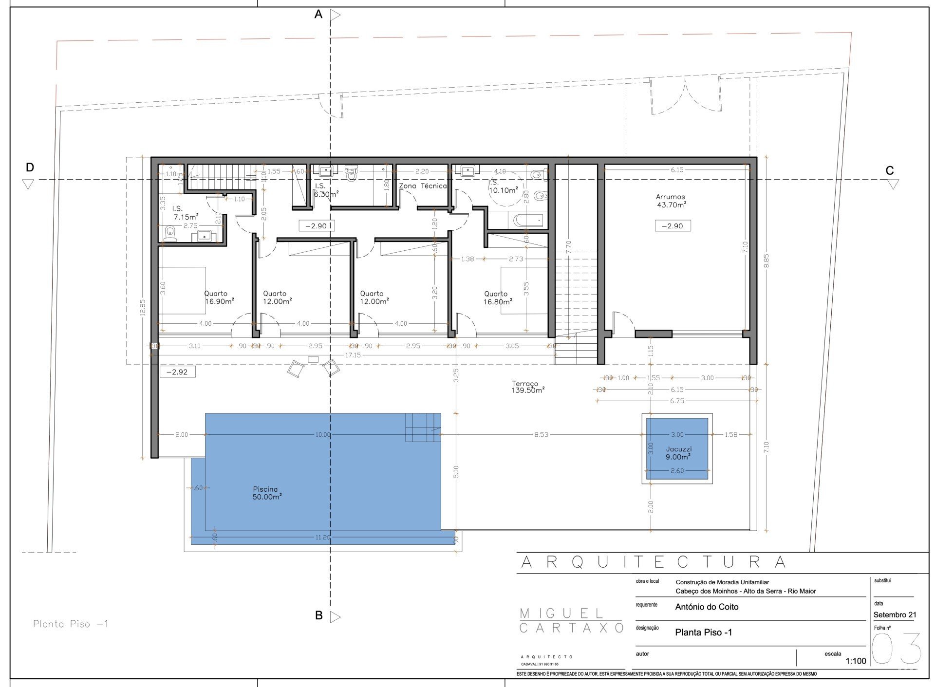
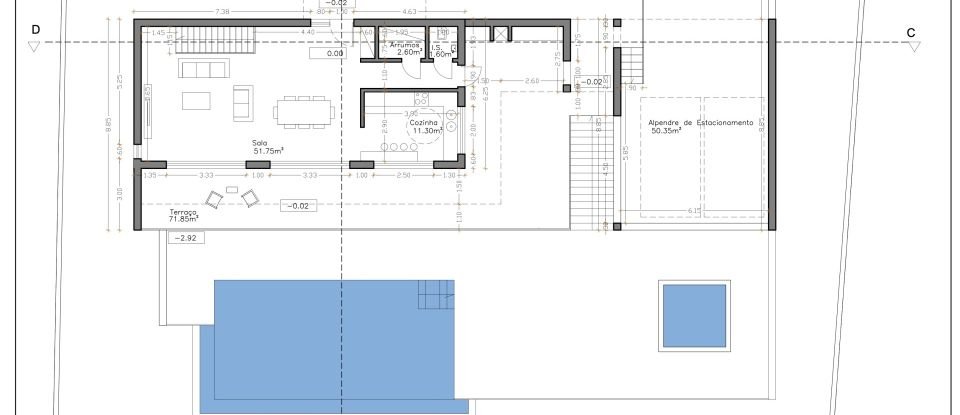
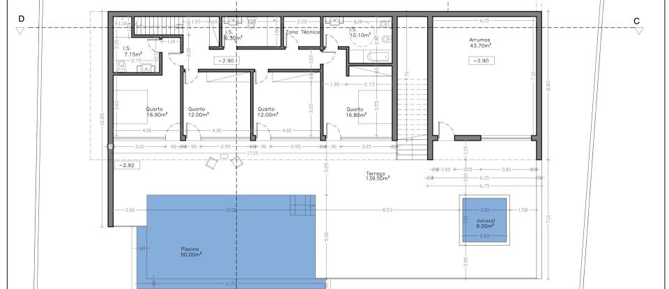
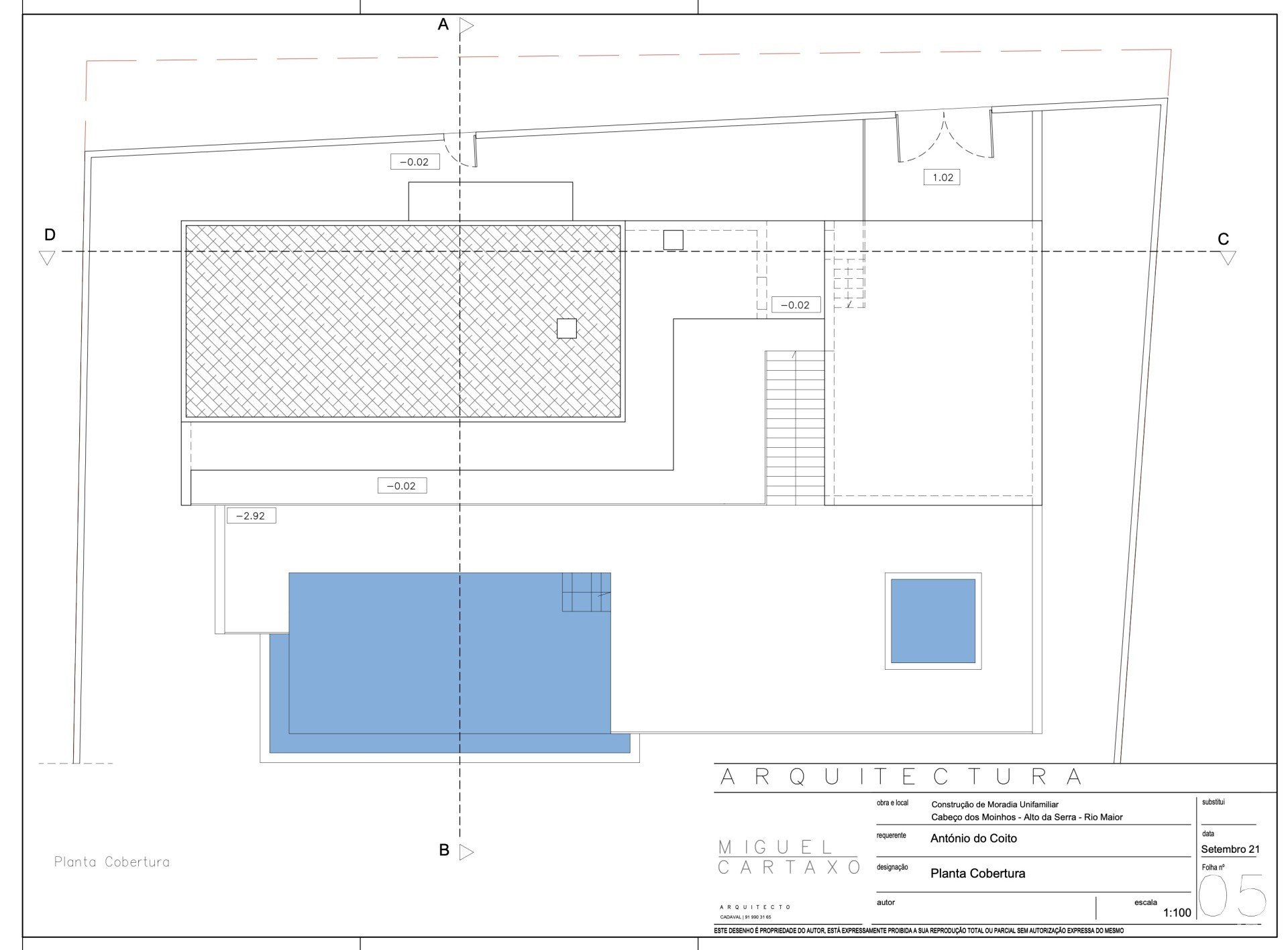
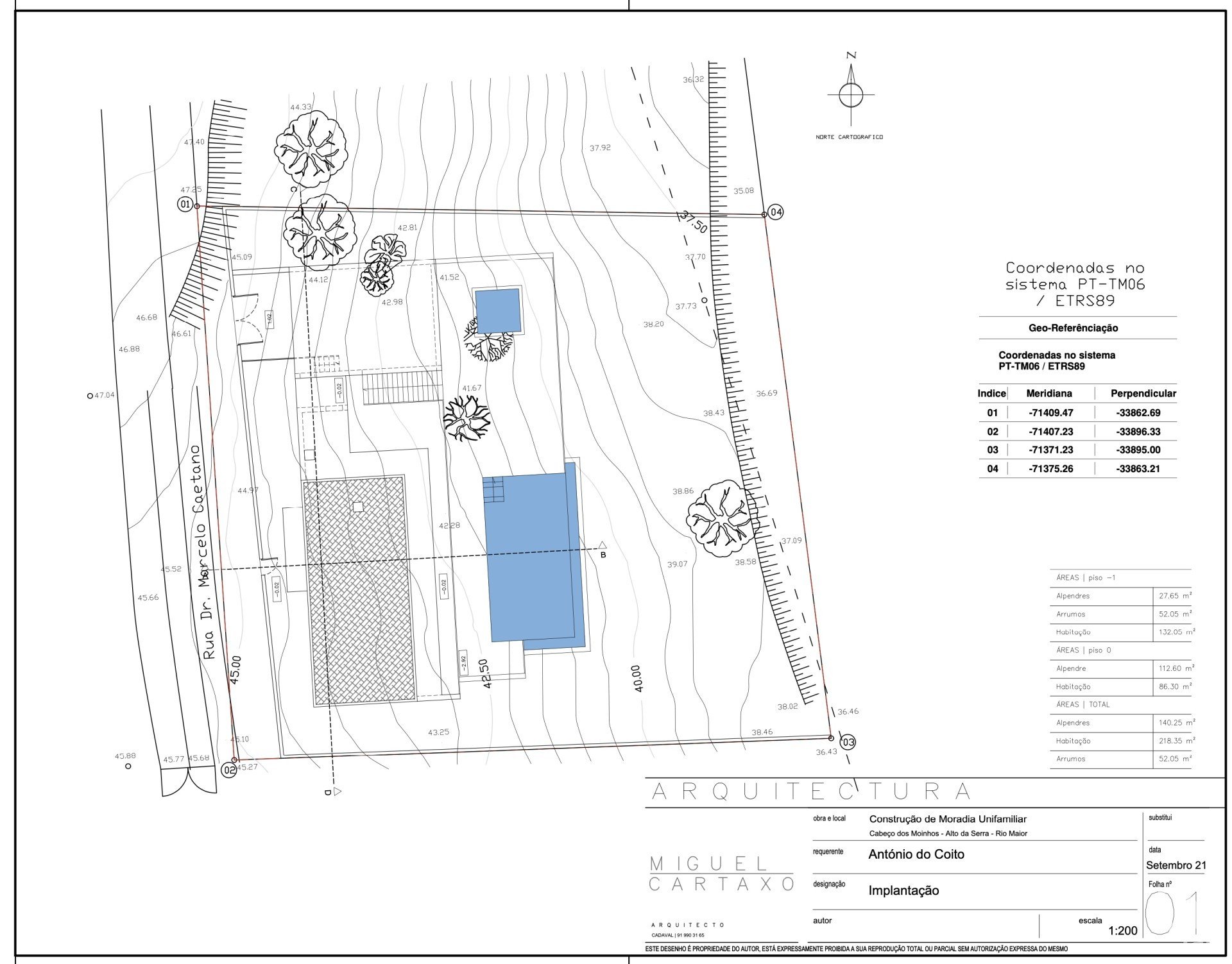
O Projeto Aprovado (Tipologia T4 · Piso térreo + cave)
Habitação: 1 moradia · Tipologia: T4
Pisos: 1 acima do solo + 1 abaixo do solo
Cércea / Altura: 3,05 m
Volumes e Áreas
Área do terreno: 1.150,00 m²
Implantação do edifício: 86,30 m²
Área bruta total de construção: 270,40 m²
Área habitacional: 218,35 m²
Anexo de arrumos: 52,05 m²
Alpendres/pergulas: 140,25 m² (excelente vivência interior–exterior)
Muro de vedação: 99,60 ml
Volumetria: 263,21 m³
Construção & Materiais (conforme descrição técnica aprovada)
Fundações & Estrutura: Betão armado, dimensionado para estabilidade e integração arquitetónica
Cobertura: Plana, com isolamento térmico (XPS 100 mm), impermeabilizada com membrana tipo “imperalum” e acabamento em PVC vulcanizado
Pavimentos: Lajes reforçadas/pré-esforçadas com betonilha; cerâmica nas zonas comuns; flutuante em madeira nos quartos e sala
Tetos: Estucados e pintados de branco
Paredes: Exterior em bloco térmico com isolamento XPS 60 mm; interior em alvenaria de tijolo
Acabamentos em zonas húmidas: Cerâmica até ao teto nas casas de banho e cozinha
Caixilharias: PVC / alumínio lacado com corte térmico e vidros duplos
Carpintarias: Portas interiores em madeira (a definir em obra)
Cores da fachada: Branco e cinzento, com revestimento cerâmico efeito pedra
Resultado: Uma casa sólida, eficiente em termos energéticos, com amplas áreas cobertas para desfrutar plenamente da vista
Estilo de Vida & Localização
~2 km das Salinas de Rio Maior (paisagem natural icónica)
~4 km do centro da cidade (escolas, supermercados, farmácias, instalações desportivas)
A poucos minutos dos melhores destinos da região Oeste: Óbidos, São Martinho do Porto, Nazaré, Peniche & Baleal, Alcobaça, Fátima
Ideal Para
Construir residência principal com vistas superiores
Segunda habitação / moradia de férias perto de praias e vilas históricas
Estratégia de compra para construir e vender com especificações claras e design apelativo
Potencial futuro de arrendamento (sujeito a regulamentos e licenciamento local)
Dados-Chave (Resumo)
Terreno urbano: 1.150 m²
Preço: €160.000 (€139/m²)
Projeto: Aprovado (T4) — pronto a iniciar obras
Exposição solar: Nascente–Poente
Infraestruturas: Eletricidade e água potável no local
Próximos Passos
Marque uma visita ao local para vivenciar a vista aberta pessoalmente
Solicite o pack técnico completo (desenhos do projeto + documentos de licenciamento) para alinhar orçamento e cronograma com confiança
Se desejar, podemos apresentar construtores e estimadores de custos de confiança para acelerar o início da obra
Apoio Profissional em Vários Idiomas
Na iad Portugal, promovemos o seu imóvel em mais de 200 portais nacionais e internacionais e colaboramos com todos os agentes profissionais.
Falamos inglês, alemão, holandês, francês, espanhol, português, italiano e russo.
Acompanhamos os clientes em todo o processo de compra — desde o financiamento e documentação até à mudança. O seu conforto e felicidade são a nossa prioridade.
🤝 Apoio Completo ao Cliente
A nossa equipa multilingual está disponível para o apoiar antes, durante e após a sua compra.
Equipamentos
Exterior
Este terreno está localizada em Rio Maior.







