Prestige
Terreno em Paranhos de 530 m²
725 000 €
1 368 €/m²
530 m² de terreno
Sobre este terreno em Paranhos, Porto
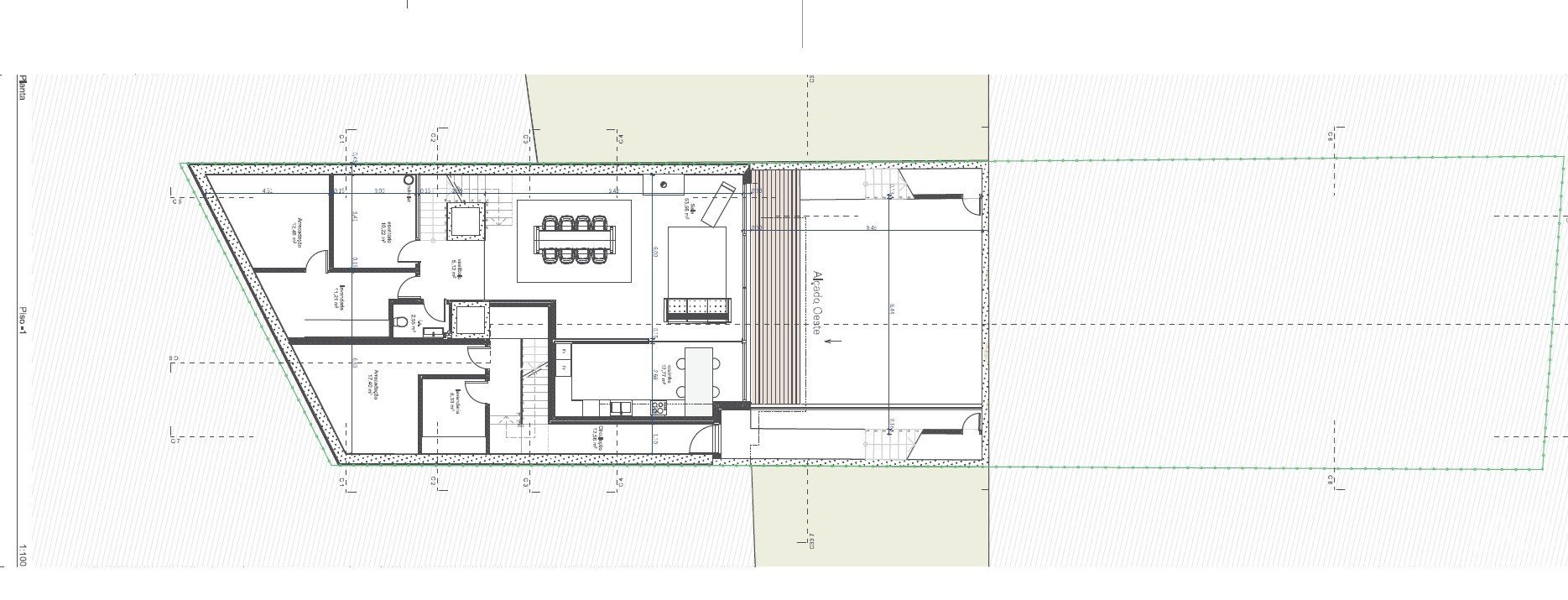
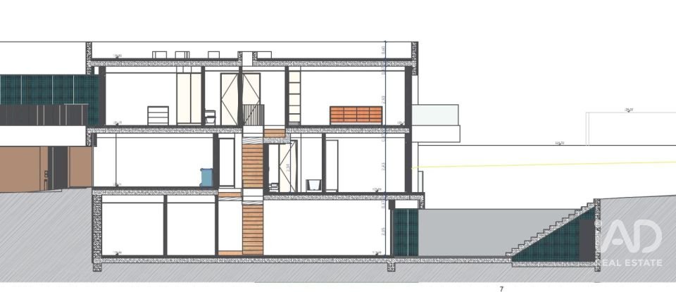
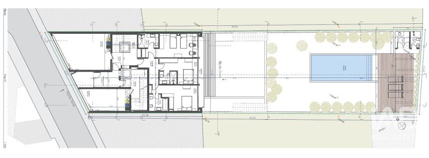
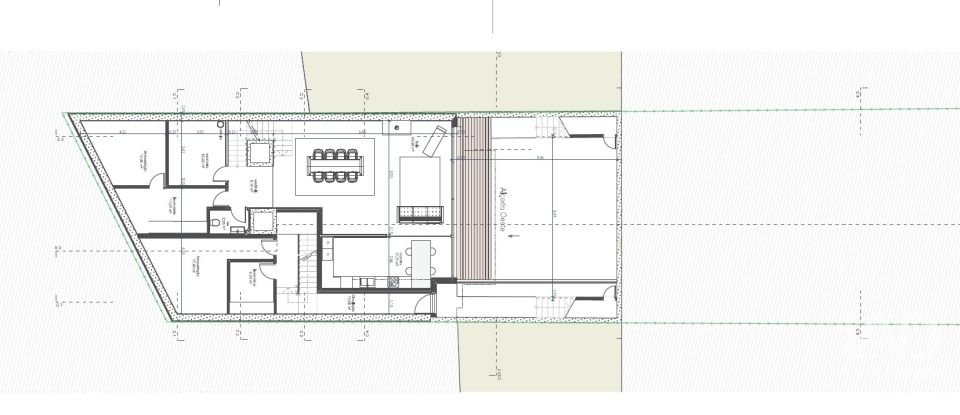
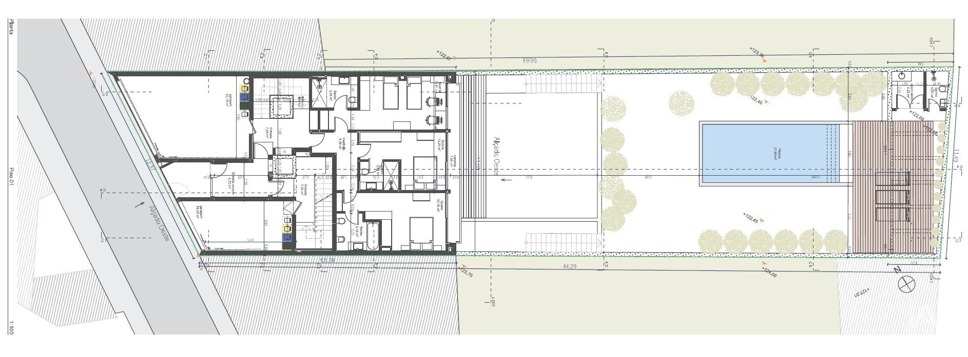
Terreno com 530 m2 e com projeto aprovado para a construção de duas moradias, com piscina e jardim.
O projeto contempla a construção de duas moradias com 280 m2 cada. A licença de construção pode ser levantada a qualquer momento.
A localização é excecional, estando a escassos metros do Jardim de Arca d'Água e da Quinta do Covelo e com fácil acesso à rede de tranapostes.
Referência: 744137
Equipamentos
Exterior
Área do terreno : 530 m²
Onde está localizado o imóvel?
Este terreno está localizada em Paranhos.
Anúncio apresentado por
Propriedades semelhantes
Popover 1
Popover 2
Popover 3
Popover 4










