Prestige
Terreno em Olhão de 2 437 m²
1 065 000 €
1 496 €/m²
2 437 m² de terreno
Sobre este terreno em Olhão, Olhão
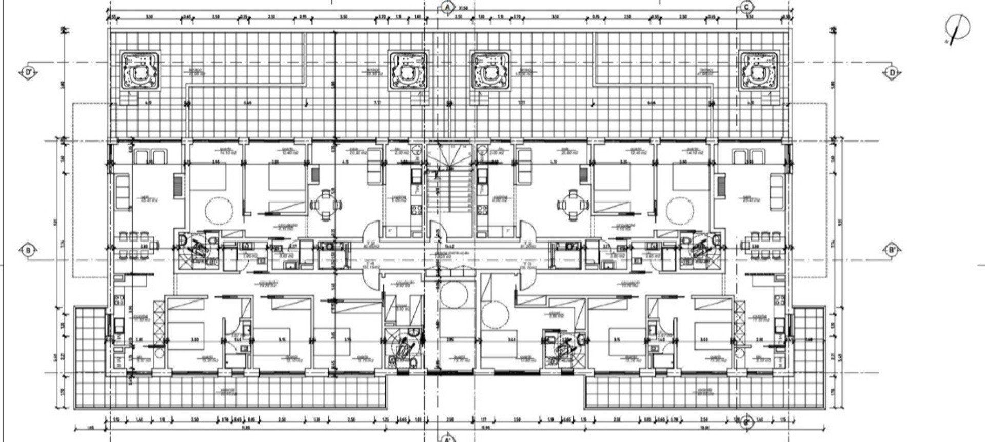
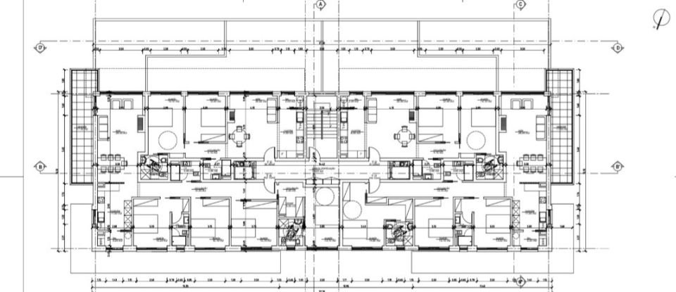
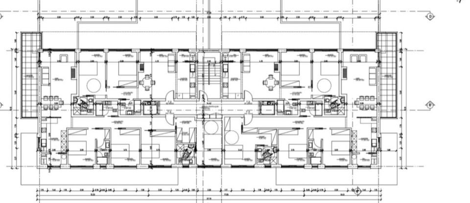
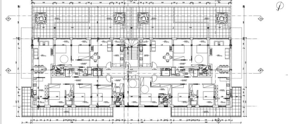
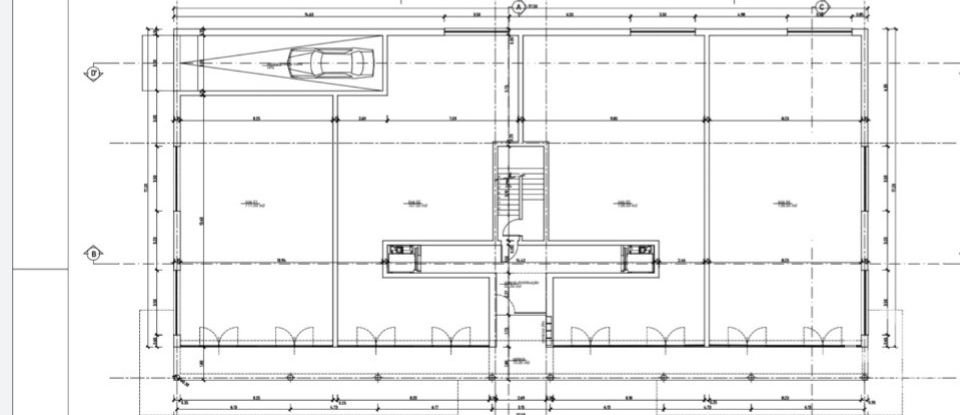
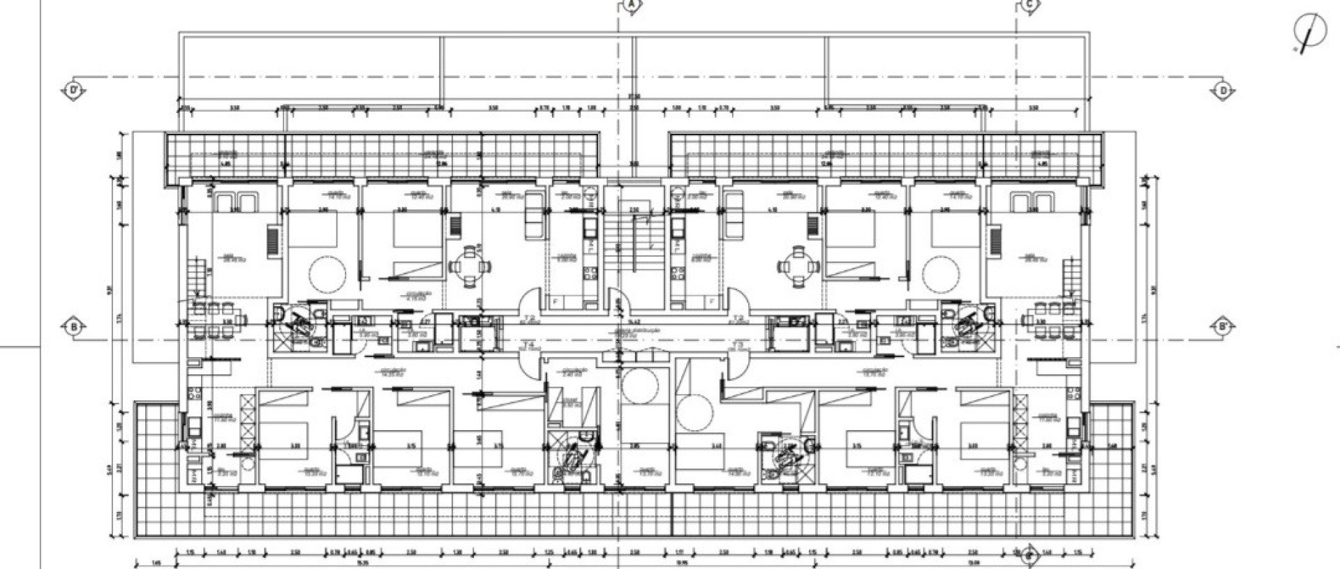
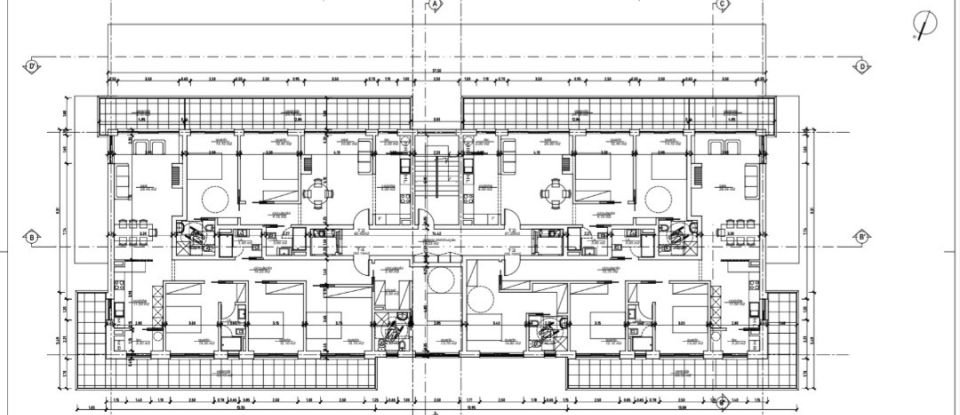
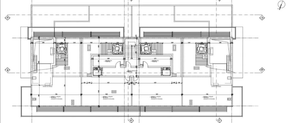
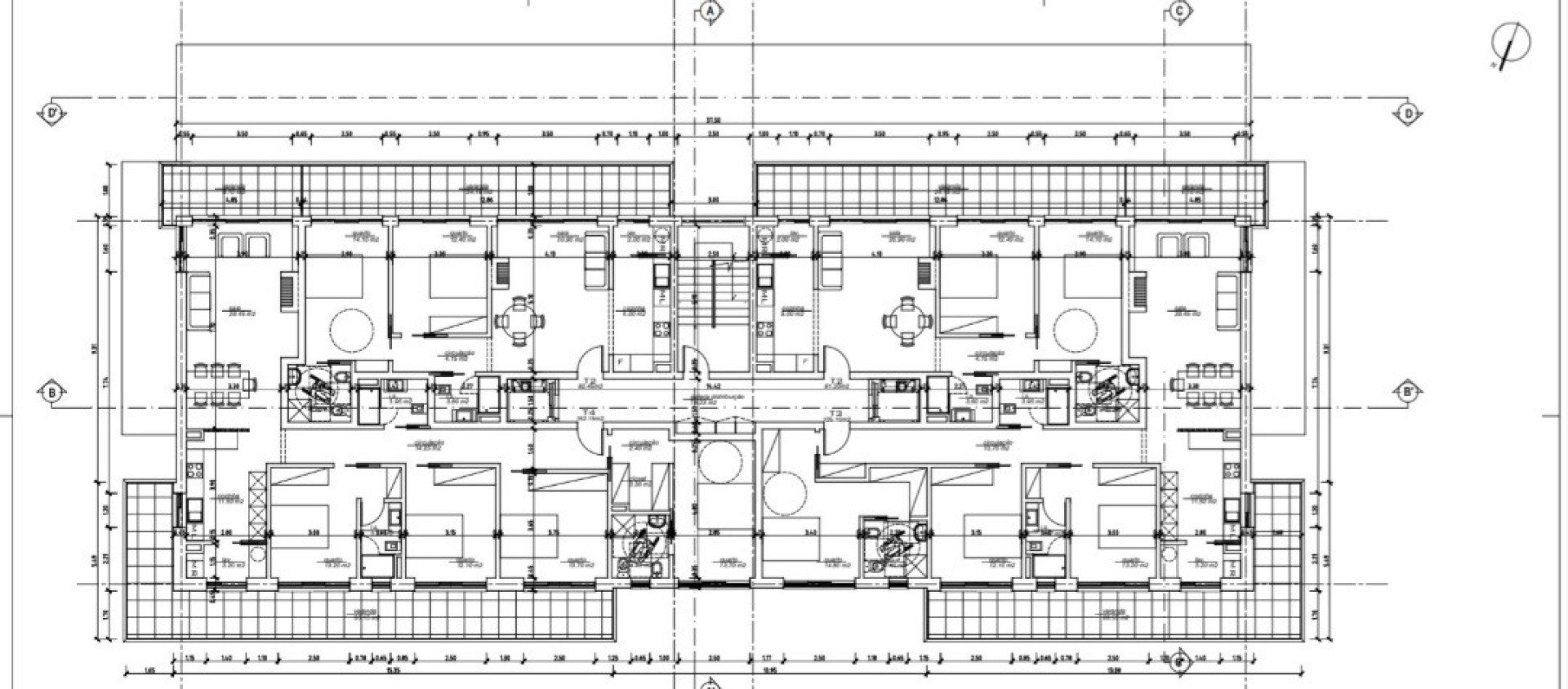
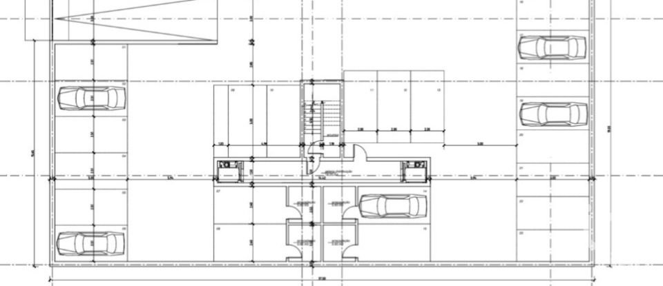
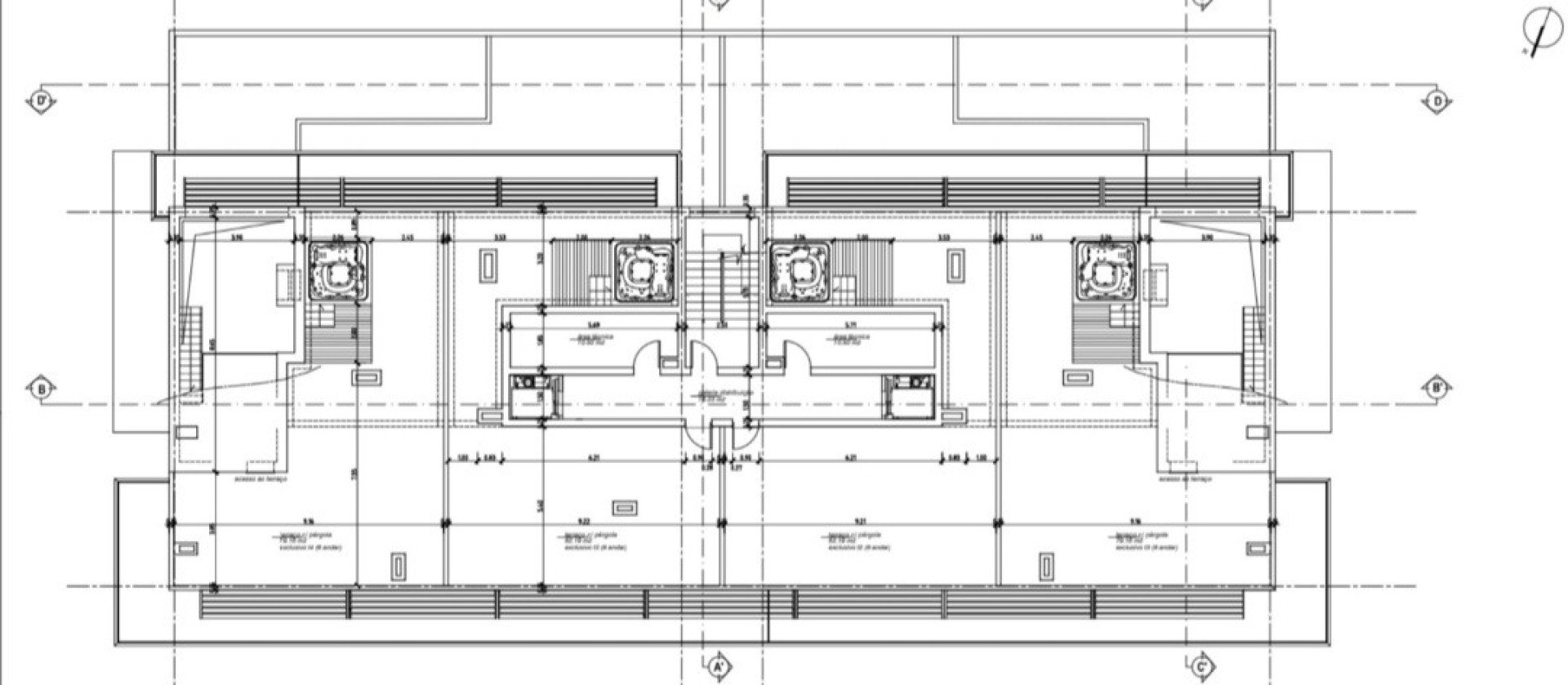
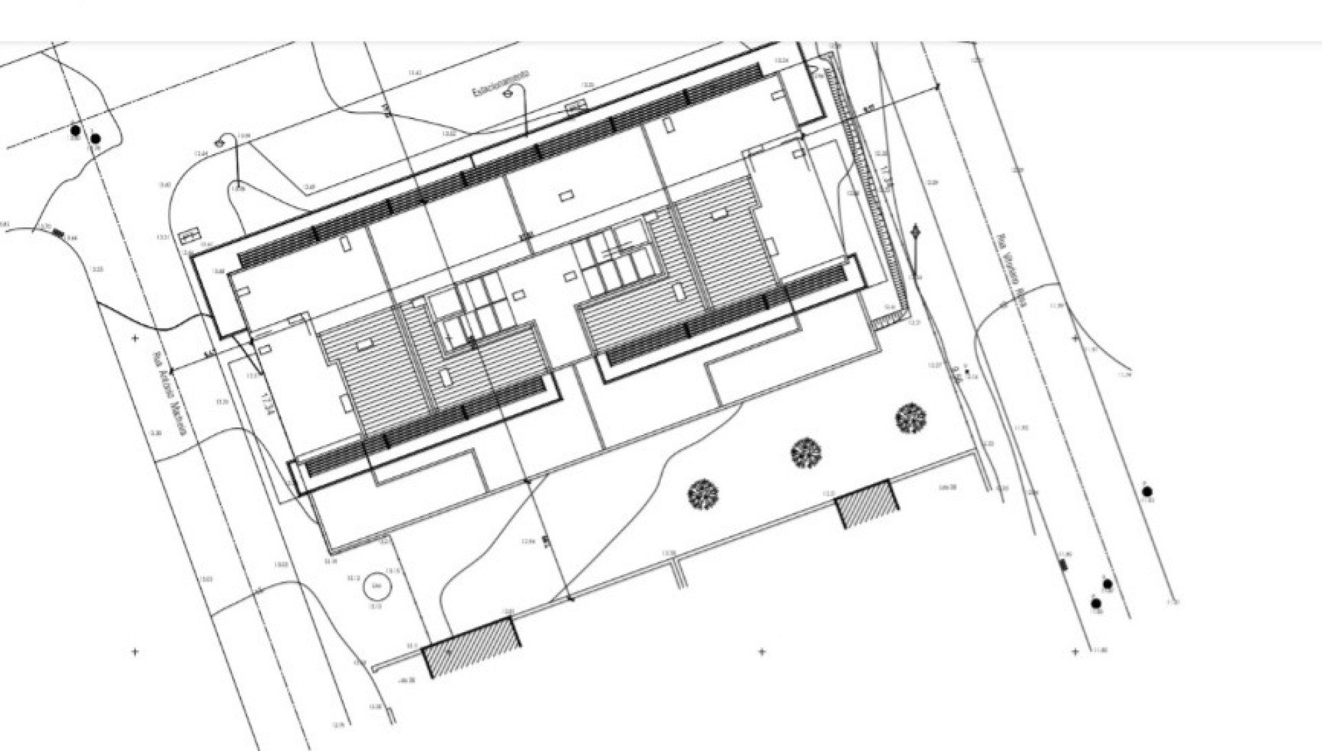
Terreno para construção numa zona central e de crescimento na cidade de Olhão.
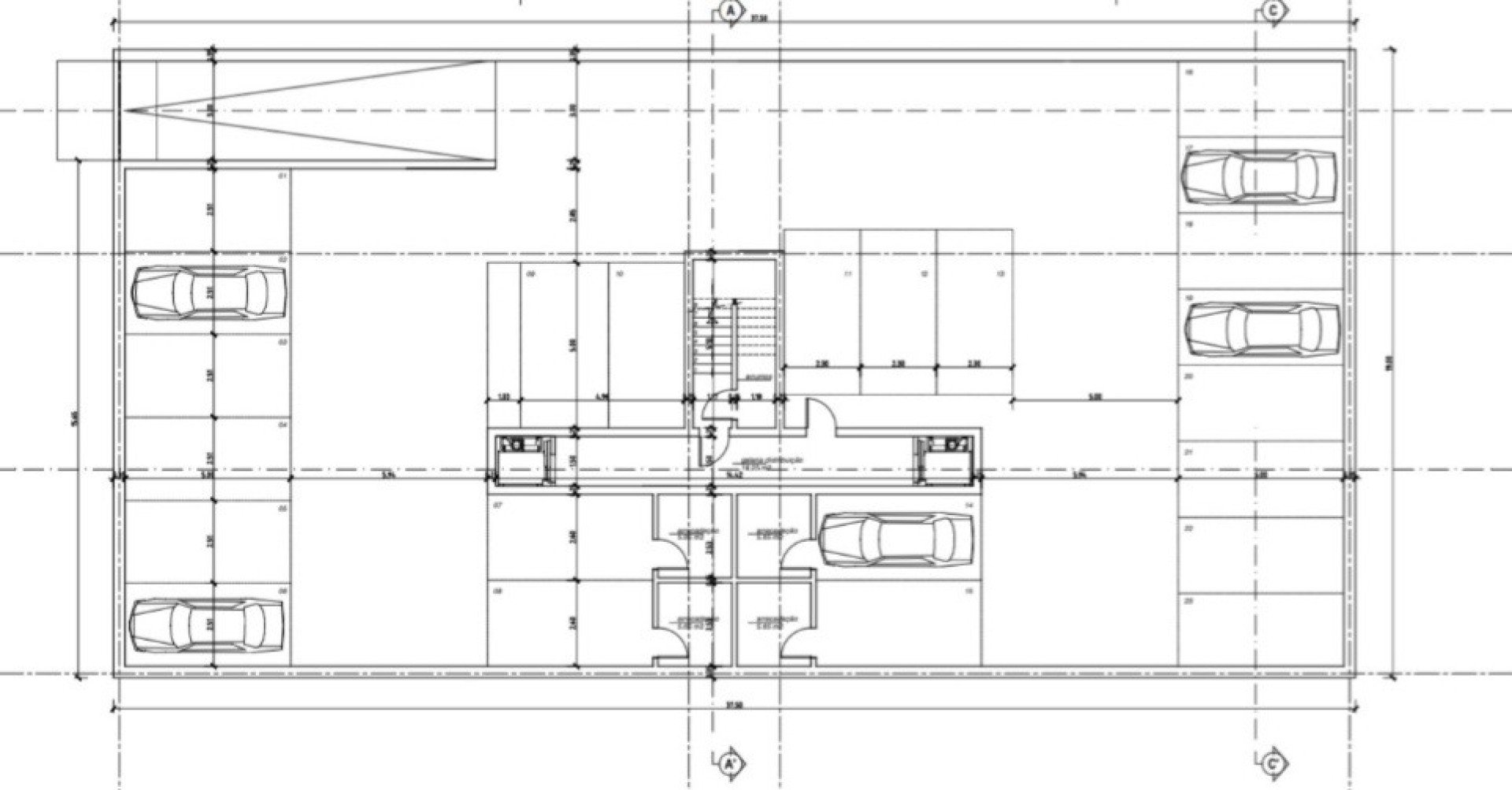
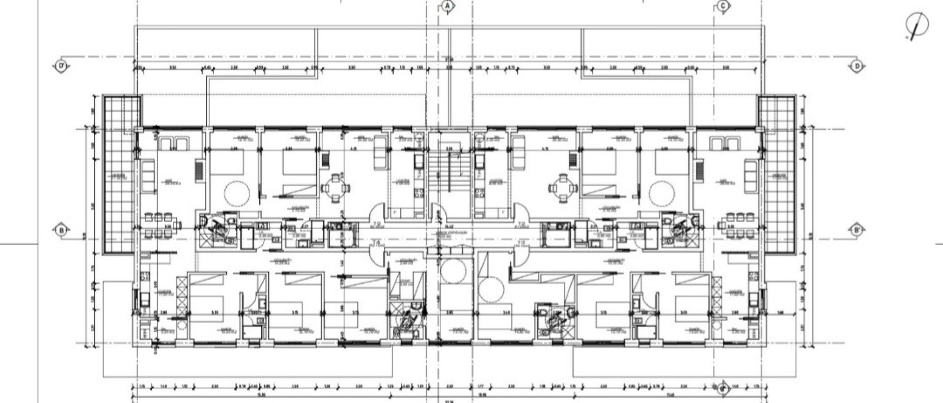
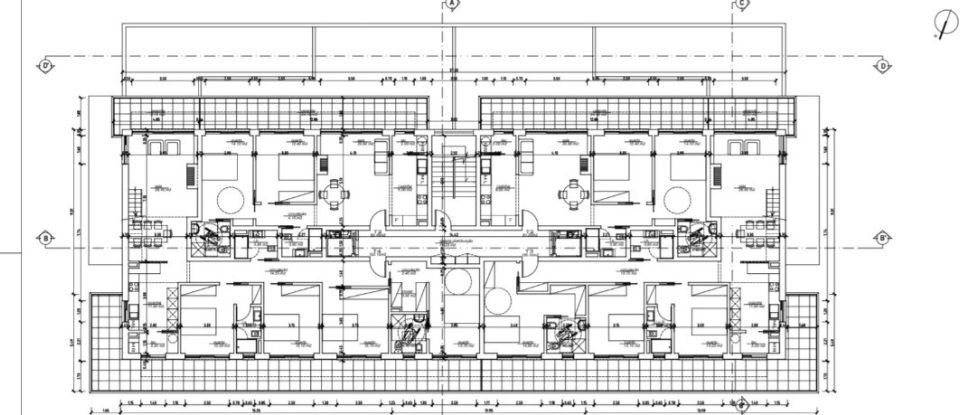
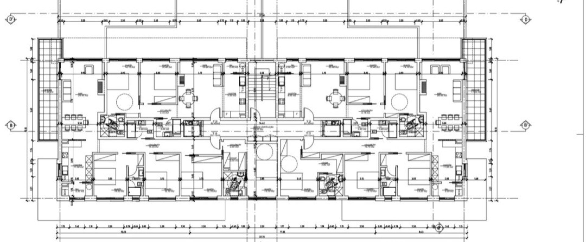
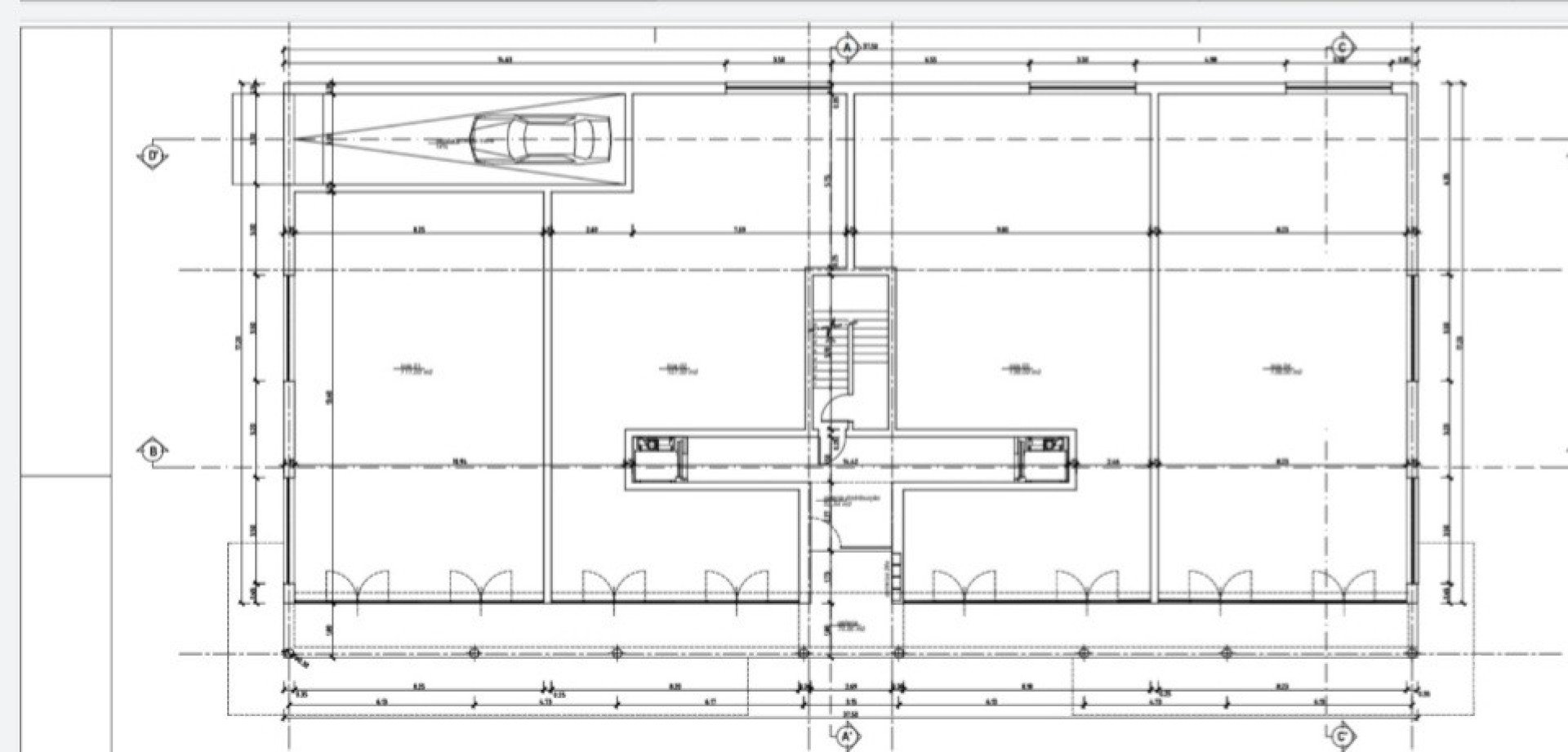
Terreno com viabilidade para construção de prédio de 20 fogos com 6 andares composto por cave com garagem, r/c com lojas e 5 andares de apartamentos. Cada andar é composto por um T4, um T3 e dois T2.
Para qualquer informação/questão adicional não hesite e contacte-me!
Referência: 93493
Equipamentos
Exterior
Área do terreno : 2 437 m²
Onde está localizado o imóvel?
Este terreno está localizada em Olhão.
Anúncio apresentado por
Propriedades semelhantes
Popover 1
Popover 2
Popover 3
Popover 4



