Terreno urbano em Loulé (São Clemente) de 3 981 m²
Sobre este terreno em Loulé (São Clemente), Loulé (São Clemente)
Nora de Apra - Terreno com projeto aprovado perto de Loulé
Terreno para construção urbana com 3981 m2, localizado na Nora de Apra, numa das zonas mais procuradas do Concelho Louletano.
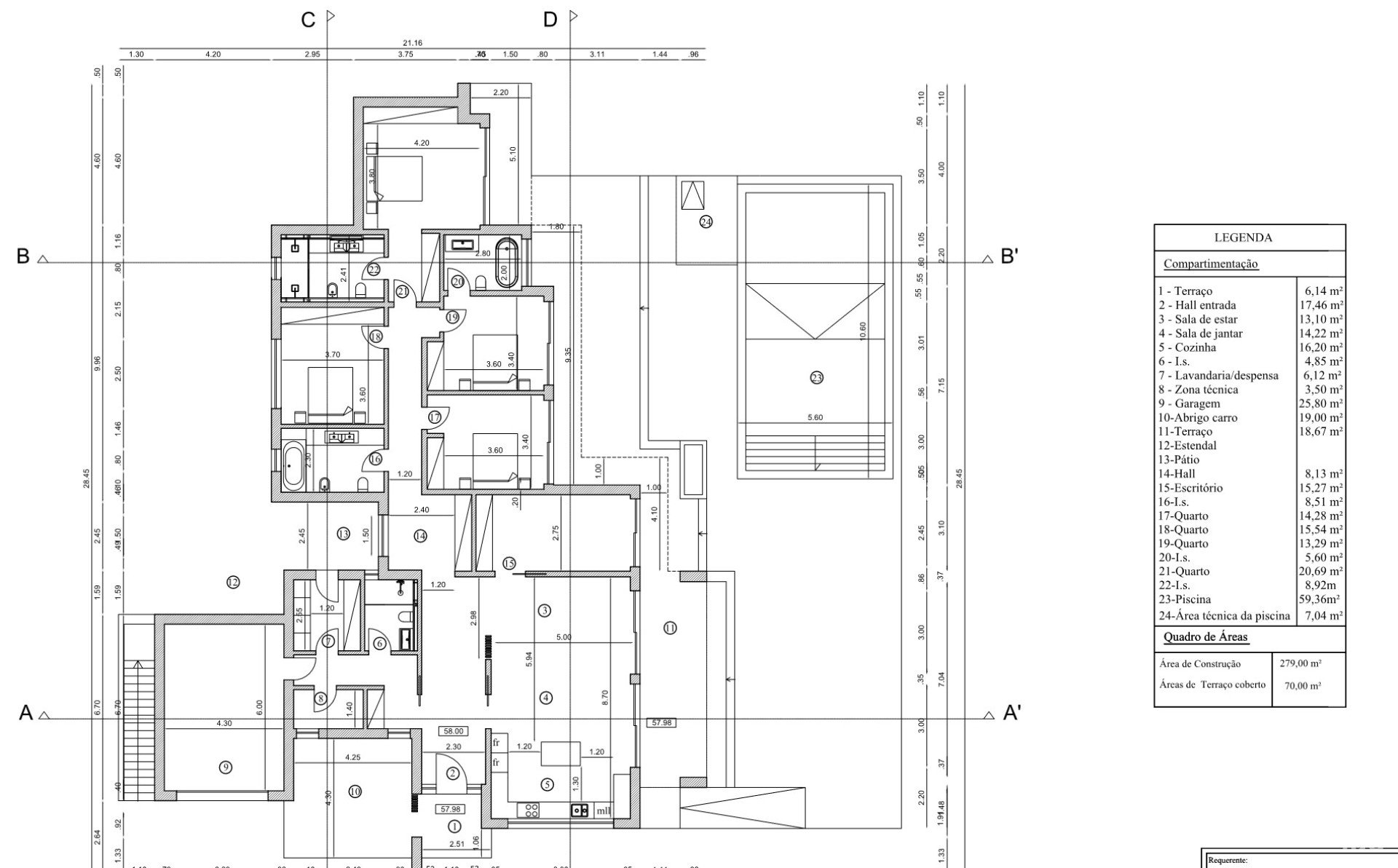
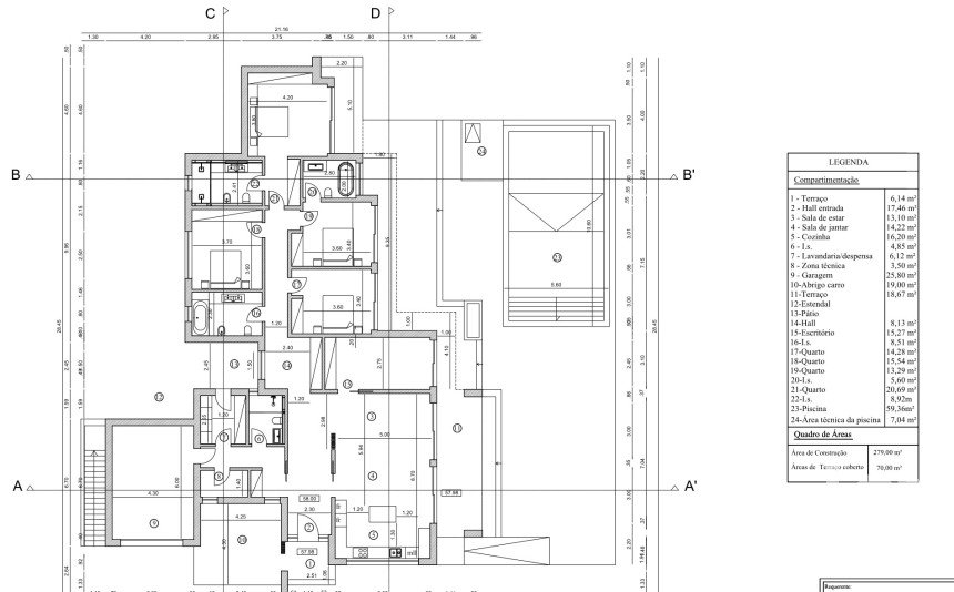
Este terreno conta com um Projeto aprovado para a construção de uma moradia unifamilar com piscina e muro de vedação. Conta com uma área de implantação de 279m2 e uma área de construção com 291m2.
O projeto corresponde a uma moradia Térrea, T4+1 , com 4 casas de banho. Conta ainda com uma Garagem de 25.8 m2 e piscina com 59.36m2.
Os acessos são feitos por estrada alcatroada, que contorna o terreno a Norte , Poente e a Sul.
O terreno encontra-se virado a Este tendo uma vista bastante desafogada, sem hipótese de obstrução da sua vista campo.
Área do terreno: 3981 m2
Área de implantação: 279m2
Área bruta de construção: 291 m2
Existe a possibilidade de fazer destaque e construir outra moradia, visto a área de construção no total ronda os 800m2.
Características da Propriedade:
-Piscina,
-Garagem
-Centralidade Regional
- Proximidade: Serra, Praia, Restaurantes, Todos os serviços e comunidades
-Vistas panorâmicas: Vista campo , Vista montanha, Vista piscina, Vista jardim
-Água da rede e rede elétrica no próprio terreno.
Construa a sua moradia de sonho neste magnífico terreno Cerca de 5 minutos de distância do centro de Loulé e a 20 minutos do aeroporto internacional de Faro.
Excelente Terreno para construir a sua moradia de sonho, não perca esta oportunidade. Marque já a sua visita!
Equipamentos
Exterior
Este terreno está localizada em Loulé (São Clemente).
















