Habitação T4 em Estômbar e Parchal de 168 m²
Sobre esta casa / moradia de 4 quartos em Estômbar e Parchal, Estômbar e Parchal
Moradia geminada T3+1 com área bruta de construção de 172m2.
Está localizada em Vale Talegas na bela vila de Estômbar e Parchal, Algarve a poucos minutos das belas praias de Ferragudo, Portimão, Carvoeiro e Armação de Pera.
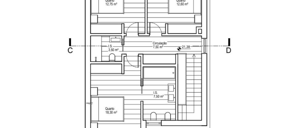
É constituída por r/c e 1º andar, com acabamentos de alta qualidade.
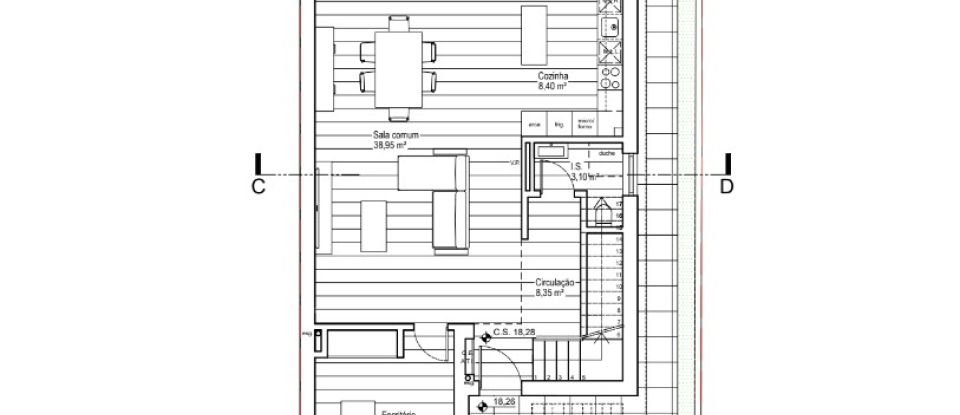
No R/c; sala e cozinha em open-space com design moderno, totalmente equipada, com grandes janelas, despensa e escritório que poderá ser utilizado como quarto, casa de banho social.
1º andar 3 quartos (1 em suite) todos com roupeiros, casa de banho completa e todos com varanda.
No exterior, espaço para carro e zona verde.
Características;
-Ar condicionado
-Painéis solares
-Vidros duplos
-Isolamento térmico acústico
Está prevista a conclusão da construção no final de 2024.
(Possibilidade de alterar materiais na construção )
Nas proximidades;
Na região de Lagoa, temos parques aquáticos bastante populares no Algarve, Campos de golfe, desportos náuticos, Escola Internacional e um programa variado de diversão com espetáculos de musica.
Se procura viver próximo de todos estes serviços, mas usufruir de tranquilidade e qualidade de vida, esta é casa que procura!
Equipamentos
Exterior
Outros
Esta casa / vila está localizada em Estômbar e Parchal.












