Moradia T3 em Atouguia da Baleia de 130 m²
Sobre esta casa / moradia de 3 quartos em Atouguia da Baleia, Atouguia da Baleia
Fantástica moradia em construção com vista de mar e com vista desafogada para a natureza, com piscina e jardim, junto ás maravilhosas praias do Baleal
Área total da casa 285.60 m2
Composta por:
Exterior:
- Box para estacionamento do carro com ligação para carregamento de carro elétrico. Esta box pode ser mais tarde fechada e transformada em garagem
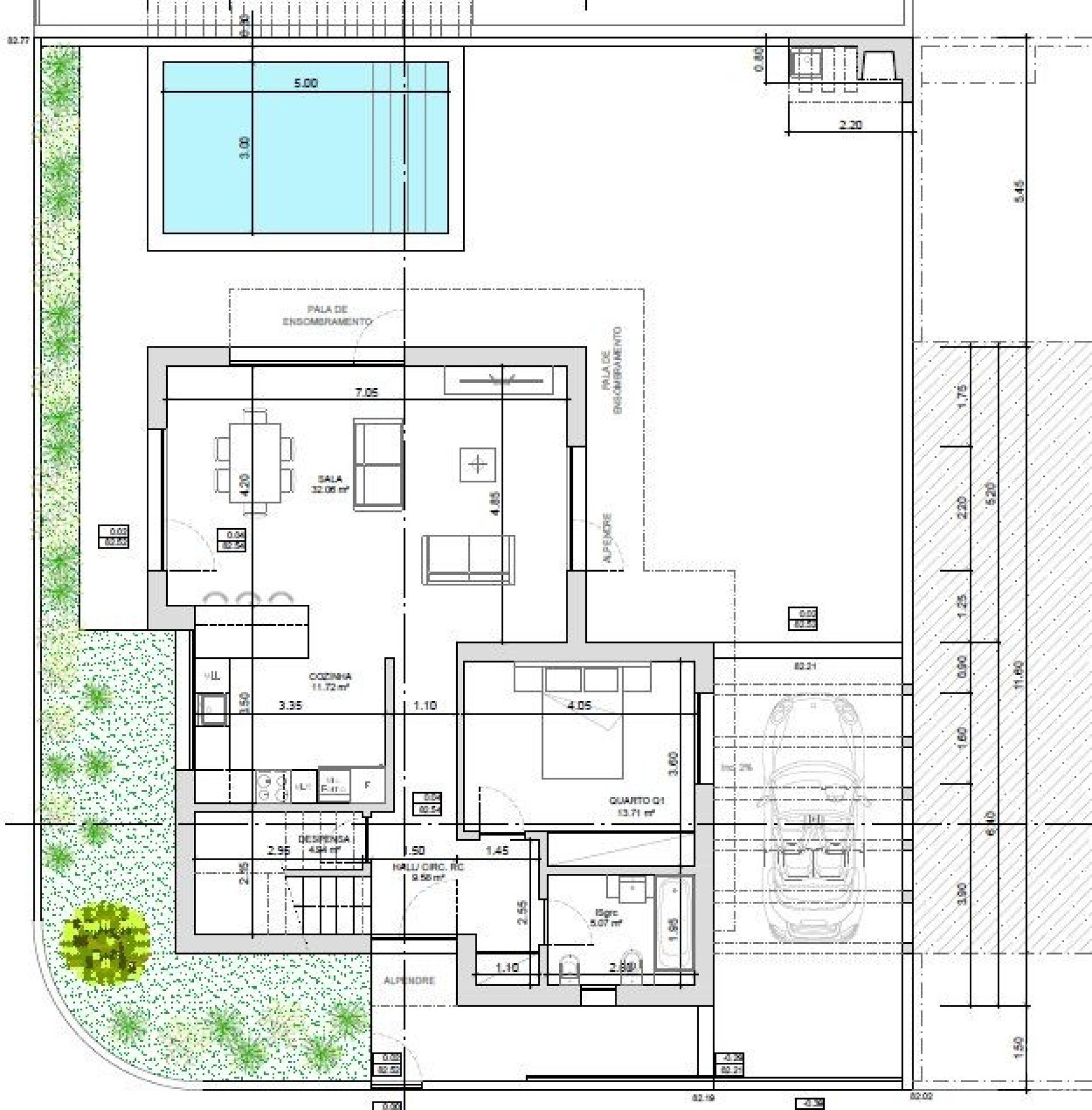
- Logradouro de 182.70m2 com Piscina, churrasqueira e jardim. Tem ainda uma zona de relaxamento para aproveitar o sol da costa de prata e refrescar as ideias após um dia de trabalho e um pequeno jardim ou horta para desfrutar da sua casa ao máximo. Este espaço exterior apanha sol o dia todo.
No interior:
-Piso o:
Quarto amplo com 14.22m2. Janelão grande com excelente entrada de luz e acesso ao logradouro com piscina. Este quarto pode ser transformado em escritório.
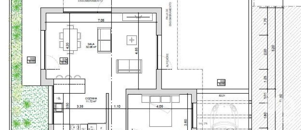
- Sala e Cozinha de 44.32m2 em conceito open space, com áreas excelentes e com muita arrumação, com dispensa com boas dimensões para que possa armazenar os produtos alimentares. Tem ainda vista e acesso para o logradouro com piscina e churrasqueira e jardim, com muita privacidade. Este pátio é um excelente espaço para refeições no exterior e desfrutar da companhia entre família e amigos. Um espaço fabuloso para desfrutar da sua casa ao máximo.
ideal para quem quer estar no conforto enquanto controla as brincadeiras das crianças na piscina.
- Casa de banho de 5.07m2, com duche muito perto da entrada principal, ideal para quem vem molhado da piscina ou praia, para não sujar a casa.
Piso 1:
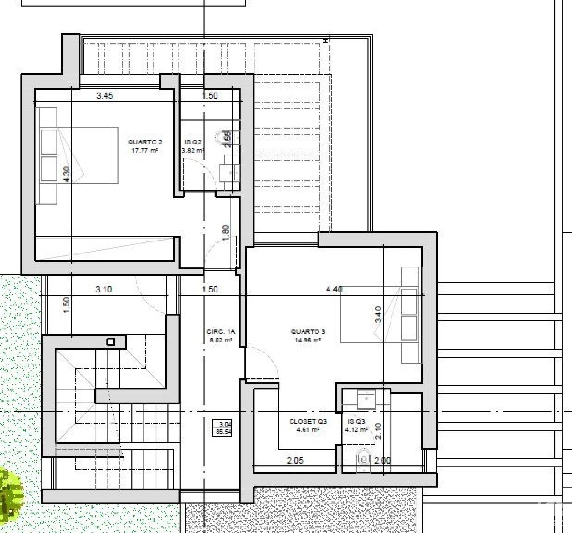
-Quarto suite de 17.77m2 + 3,82m2, com excelentes áreas, com roupeiro grande com muito espaço de arrumação e muito bem organizado no seu interior, com portas de correr. O quarto tem um janelão para entrada de luz natural e uma pequena varanda com vista sobre a natureza circundante.
- Quarto suite de 14,96m2 + 4,12m2, com excelentes áreas, com closet grande e com muito espaço de arrumação e muito bem organizado no seu interior, com portas de correr. Tem uma varanda com acesso a um terraço enorme com zona de relaxamento e vista sobre a serra com excelente exposição solar, espaço abrigado com vidros panorâmicos que lhe permite desfrutar da vista. Espaço Ideal também para colocação das roupas a secar.
Acesso ao roof top com uma vista espetacular sobre o mar, com uma área muito boa de relaxamento. terá ligações caso um dia opte por colocar um jacúzi.
Esta moradia encontra-se em construção. Tem a oportunidade de escolher os materiais, tais como, pavimentos, loiças de casa de banho e móveis de cozinha. Excelente oportunidade de fazer uma escolha personalizada ao seu estilo.
Esta moradia localiza-se num bairro residencial calmo numa zona pacata. Ideal para quem quer tranquilidade no seu dia a dia, longe da confusão, mas perto o suficiente da praia, campos de golf, pinhal. Ideal para quem tem crianças. Podem jogar tranquilamente á bola na rua ou andar de bicicleta sem perigo.
Fica a 5 minutos da praia do baleal e dos melhores surf spots. A 5 a 7 minutos de um dos melhores campos de golf da Europa e a 10 minutos da autoestrada A8. Bem perto da casa encontra-se a barragem da Atouguia para quem é amante de passeios ou corridas com uma vista deslumbrante sobre a barragem ou para quem é amante de canoagem. Tem também muito perto da casa um maravilhoso pinhal com espaço preparado para piqueniques e para quem gosta de fazer caminhadas e corridas.
Ficarei muito grata em receber o vosso contacto e será com enorme prazer que lhe posso facultar mais informações ou visita à casa.
Inês Caiado IAD Portugal
Equipamentos
Exterior
Outros
Esta casa / vila está localizada em Atouguia da Baleia.











