Moradia T2 em Porto de Mós - São João Baptista e São Pedro de 112 m²
Características
Sobre esta casa / moradia de 2 quartos em Porto de Mós - São João Baptista e São Pedro, Porto de Mós - São João Baptista e São Pedro
Moradia de Pedra Totalmente Reconstruída — Charme, Conforto e Natureza a 5 Minutos de Porto de Mós
Se procura tranquilidade, conforto e um espaço com história, esta é a casa ideal para si.
Localizada na aldeia de Fonte do Oleiro, a apenas 5 minutos de Porto de Mós e 10 minutos da vila histórica da Batalha, esta encantadora moradia de pedra foi totalmente reconstruída, aliando o charme rústico à funcionalidade moderna.
Características da Moradia Principal:
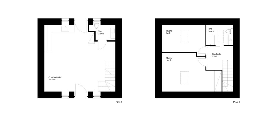
Sala e cozinha em open-space, com excelente aproveitamento da luz natural;
Casa de banho de serviço no piso térreo;
Dois quartos no primeiro piso, sendo um deles com roupeiro embutido;
Casa de banho completa no piso superior.
Anexo com 32m²:
Espaço versátil com parede de pedra à vista;
Preparado para instalação de casa de banho, lavandaria e sala polivalente — ideal como estúdio, escritório ou espaço de lazer.
Garagem espaçosa com 48m², perfeita para dois carros e arrumação adicional.
Conta ainda com uma construção antiga, outrora um celeiro, agora ideal para arrumos ou reabilitação criativa.
Terreno com 1.808m²:
Um verdadeiro refúgio natural com diversas árvores de fruto e espécies autóctones: carvalhos, oliveiras, figueira, nogueira, laranjeira, limoeiro, anoneira e pereira.
Localização e Acessos:
Aeroporto do Porto (OPO): aprox. 1h45 de distância (180 km)
Aeroporto de Lisboa (LIS): aprox. 1h30 de distância (135 km)
A moradia tem bons acessos rodoviários, com ligação rápida à A19, IC9 e A1, permitindo deslocações fáceis em direção ao norte ou sul do país.
Serviços e Comércio nas Proximidades:
A poucos minutos encontra:
Supermercados, farmácias, bancos, cafés, restaurantes e todos os serviços essenciais em Porto de Mós;
Escolas e centros de saúde nas localidades vizinhas;
A cidade de Leiria fica a apenas 25 minutos, com oferta completa de comércio, serviços, centros comerciais e hospitais.
Pontos de Interesse nas Redondezas:
Castelo de Porto de Mós
Mosteiro da Batalha (Património Mundial da UNESCO)
Grutas de Mira de Aire
Parque Natural das Serras de Aire e Candeeiros (ideal para caminhadas, escalada e turismo de natureza)
Santuário de Fátima a cerca de 25 minutos
Praias da Nazaré e São Martinho do Porto a aproximadamente 40 minutos
Equipamentos incluídos:
Ar condicionado;
Placa, exaustor e máquina de lavar loiça (embutidos);
Caldeira.
Com excelente exposição solar, um espaço exterior generoso e envolvente natural, esta propriedade é ideal tanto para residência permanente como para projeto de turismo rural ou casa de férias.
Equipamentos
Interior
Exterior
Outros
Consumo de energia
Classe energética :
Esta casa / vila está localizada em Porto de Mós - São João Baptista e São Pedro.





