Moradia T0 em Maceira de 205 m²
Sobre esta casa / moradia de 0 quartos em Maceira, Maceira
Prédio para investimento ou habitação própria em Maceira, Leiria.
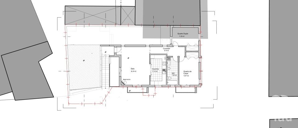
Com projeto para T2 no R/C + T2 no 1º Piso.
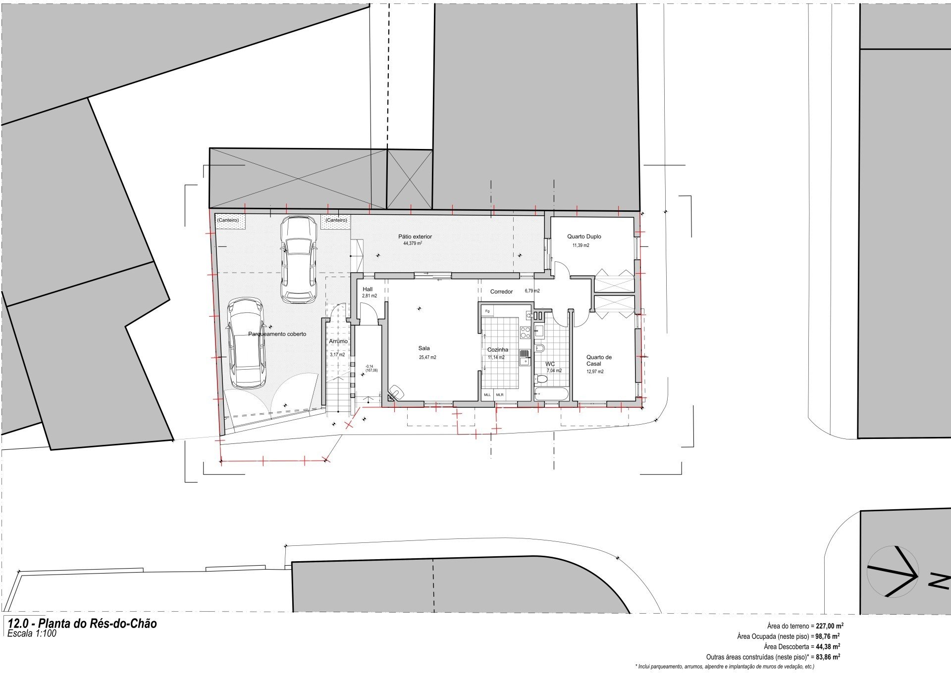
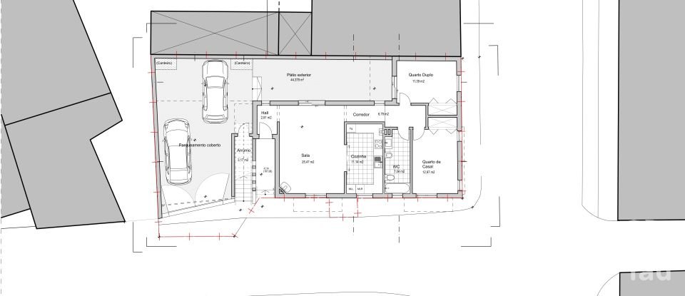
R/C com área de 98,76 m2, constituído por Hall de entrada (2,81 m2), Sala de Estar/Jantar (25,47 m2), Cozinha (11,14 m2), Quarto de Casal (12,97 m2), Quarto Duplo (11,39 m2) e WC (7,04 m2).
Abrigo privativo para dois carros.
No 1º Piso, área de 96,34 m2, constituído por Sala de Estar/Jantar (26,30 m2), Cozinha (11,14 m2), Quarto de Casal (12,97 m2), Quarto Duplo (11,39 m2) e WC (7,04 m2).
Localização envolvente:
Acesso fácil pedonal e automóvel,
Existem serviços de: Café/Pastelaria, Talho, Supermercado, Mercado semanal, Bombeiros, Farmácia, Banco e Escolas.
Proximidades:
- A 07 Km de Batalha
- A 12 Km de Leiria
- A 27 Km de Fátima
- A 138 Km de Lisboa
- A 197 Km de Porto
- A 08 Km acesso A8
- A 16 Km acesso A1
Excluído do SCE, ao abrigo da alínea g) do n.º 2 do artigo 18.º do Decreto-Lei n.º 101-D/2020, de 7 de dezembro
Confiança!
Garantimos total acompanhamento ao longo de todas as etapas do seu projeto imobiliário, seja para comprar , vender ou arrendar um imóvel.
Eficácia!
O nosso know-how e o nosso profissionalismo estão ao seu serviço para o ajudar a concretizar o seu projeto.
Proximidade!
Dominamos perfeitamente a sua zona geográfica e temos um profundo conhecimento do mercado local.
Personalização!
Porque cada projeto de vida é único, adaptamo-nos às suas necessidades para o ajudar a concretizar o seu sonho.
Equipamentos
Exterior
Esta casa / vila está localizada em Maceira.





