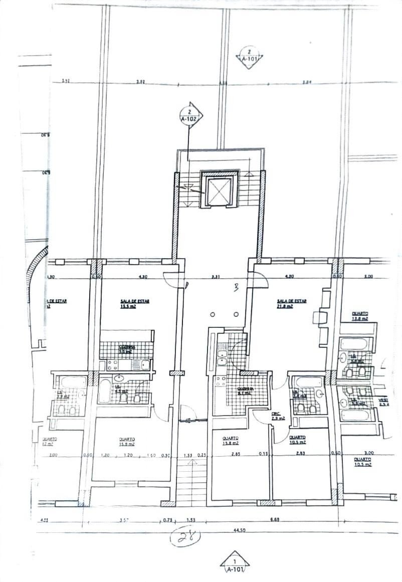
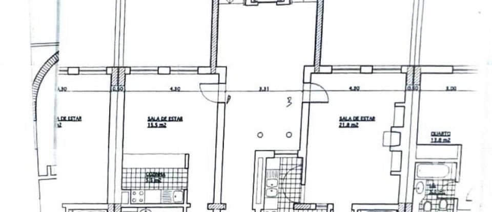
Apartamento T1 em Costa da Caparica de 55 m²
Características
Sobre este apartamento de 1 quarto em Costa da Caparica, Costa da Caparica
Apartamento T1 com Terraço Privativo e Piscina a 5 Min da Praia.
Condomínio Fechado | Costa da Caparica
Apartamento T1, situado num condomínio privado com piscina e ginásio, na desejada Costa da Caparica, a escassos minutos das suas belas praias e vibrante ambiente costeiro.
Uma Habitação que Proporciona Qualidade de Vida, Lazer e Proximidade ao Mar.
Habitação Própria, Casa de Férias ou Investimento Imobiliário
CARACTERÍSTICAS PRINCIPAIS DO IMÓVEL
• Tipologia: T1
• Espaço exterior: Terraço privativo com excelente exposição solar
• Condomínio: Fechado, com Piscina, Ginásio e Áreas comuns de lazer
• Cozinha: Totalmente equipada em Open-Space, Moderna e Funcional
• Sala: Luminosa, com Acesso Direto ao Terraço
• Quarto: Acolhedor, com roupeiro embutido
• Casa de banho: Com acabamentos contemporâneos
• Construção recente, com Bons Materiais e Design Cuidado
• Arrecadação
• Possibilidade de recolha de mota/bicicleta na garagem do prédio
INSTALAÇÕES E EQUIPAMENTOS
• Ar Condicionado
• Som Ambiente
• Alarme de Fumos
• Estores Elétricos
LOCALIZAÇÃO E ZONA ENVOLVENTE
Situado numa das zonas mais procuradas da Costa da Caparica, este apartamento encontra-se a apenas 5 minutos a pé da praia, num ambiente tranquilo e seguro.
A poucos metros poderá usufruir de:
• Praias icónicas: Praia da Rainha, Praia do Tarquínio-Paraíso, Praia de São João e Praia do Castelo
• Atividades de lazer: Surf, caminhadas à beira-mar, ciclismo e passeios ao pôr-do-sol
• Comércio e restauração: Cafés, restaurantes típicos, mercados locais e espaços culturais
ACESSOS E TRANSPORTES
• A 20 minutos de Lisboa (via Ponte 25 de Abril)
• A 25 minutos do Aeroporto Humberto Delgado
• Excelentes acessos à A33, A2 e IC20, permitindo ligação rápida a todo o país
• Transporte público frequente para Lisboa (Cacilhas, Almada, Marquês de Pombal) e zonas vizinhas
VANTAGENS E ESTILO DE VIDA
Viva o Equilíbrio Perfeito entre Mar, Natureza e a proximidade da Cidade.
Na Costa da Caparica encontra um Ambiente Cosmopolita e Descontraído, ideal para quem aprecia o Surf, o Sol, a Gastronomia e a Vida ao Ar Livre.
A poucos minutos encontra ainda o Parque Urbano da Costa da Caparica, escolas, supermercados e todos os serviços essenciais.
Equipamentos
Interior
Outros
Consumo de energia
Classe energética :
Este apartamento está localizado em Costa da Caparica.

