Apartamento T2 em Santo António de 98 m²
Características
Sobre este apartamento de 2 quartos em Santo António, Santo António
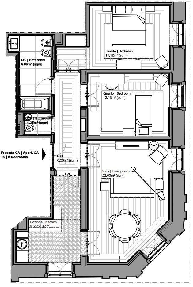
Este é um apartamento T2 de luxo com ar-acondicionado, dois quartos e duas casas de banho, localizado na Avenida Duque de Loulé, perto da Praça Marquês de Pombal, no centro de Lisboa. O edifício Sottomayor Residências foi totalmente renovado, sendo moderno mas mantendo os atrativos aspetos tradicionais. O apartamento está localizado no quarto andar deste edifício, que dispõe de elevador e áreas comuns, incluindo um jardim e uma piscina. Existe 2 lugares de garagem no prédio e também arrecadação.
A entrada principal do imóvel abre para um corredor e, em frente, está a entrada para a espaçosa e luminosa sala de estar, com duas grandes janelas que deixam entrar bastante luz natural e oferecem vistas desafogadas para a rua abaixo. Este espaço está elegantemente decorado e mobilado com TV, sofá confortável e poltrona, mesa de jantar, cadeiras e candeeiros de leitura. Há uma porta de um lado que dá diretamente para a cozinha totalmente equipada, com frigorífico, congelador, forno, fogão, micro-ondas, máquina de lavar louça, máquina de lavar roupa e todos os utensílios de cozinha necessários.
A cozinha tem ainda uma porta para o corredor, que dá para os quartos e casas de banho. Ambos os quartos têm janelas e roupeiros para arrumação. O quarto principal tem uma cama de casal grande e confortável, e inclui uma televisão, mesas de cabeceira, candeeiros e uma cómoda.
O segundo quarto tem uma cama individual, roupeiro, mesa de cabeceira e candeeiro.
Existem duas casas de banho, e a principal tem um espaçoso chuveiro, toalheiro aquecido, armário e espelho, lavatório, bidé e sanita, além de TV encastrada. O segundo quarto de banho tem lavatório, espelho e vaso sanitário.
Existe ar condicionado em todas as divisões e aquecimento central (chão radiante) em todo o apartamento, e as áreas comuns incluem uma garagem com carregador para veículos elétricos, arrecadação e jardins e piscina. Há segurança 24 horas no edifício. Esta localização é muito central, com acesso a lojas, restaurantes e outros comércios, e tem boas ligações de transportes com as estações de metro Marquês de Pombal e Picoas a 5 minutos a pé.
Equipamentos
Exterior
Outros
Consumo de energia
Classe energética :
Este apartamento está localizado em Santo António.





